Brompton Hill, Chatham, Kent. ME4
Summary:
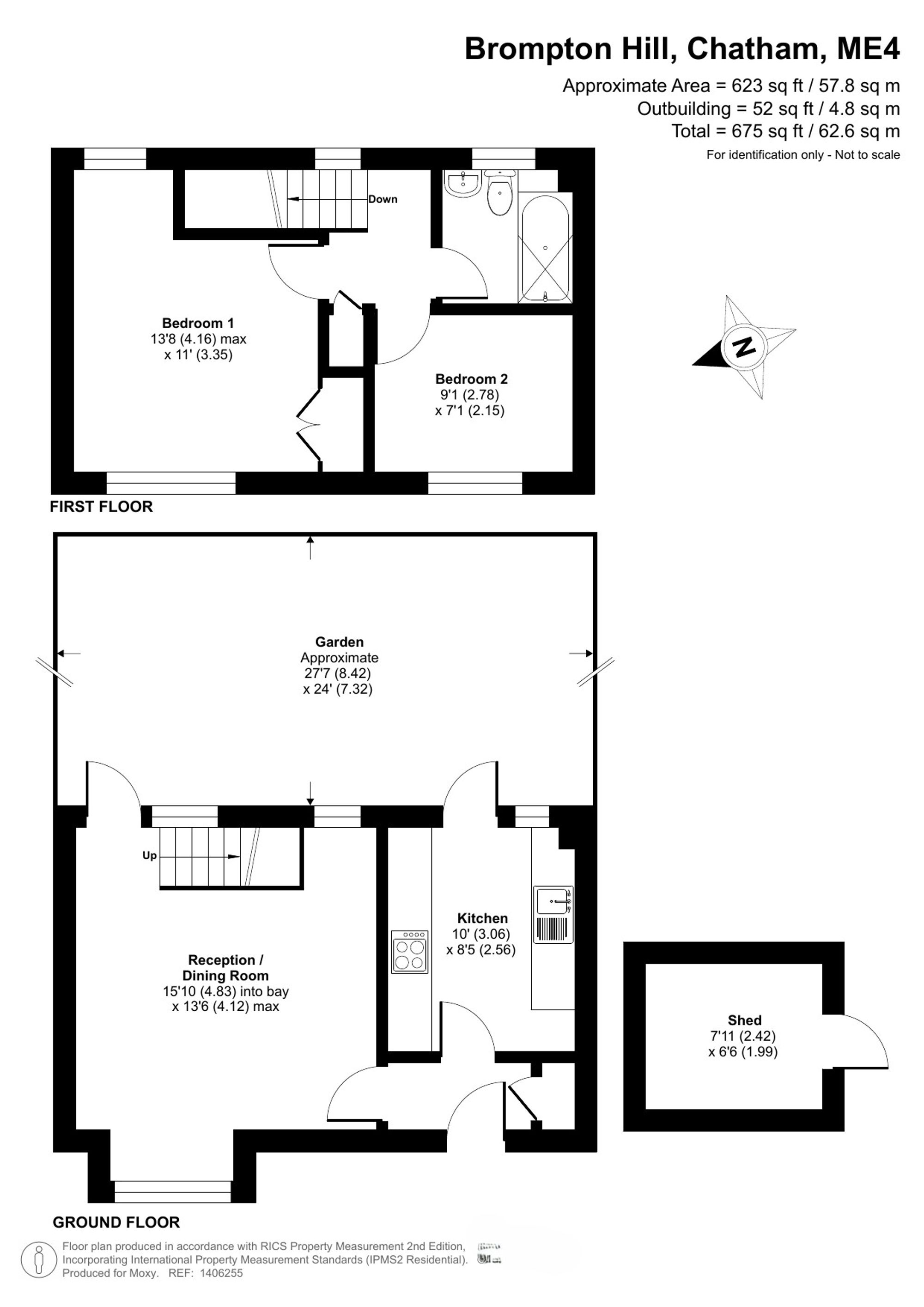
A two bedroom, semi-detached home in a conservation area near the Historic Dockyard. Lounge/diner, kitchen and bathroom, garden, parking, and walkable access to riverside, shops, and train station.
Key Features:
- Two bedroom, semi-detached house
- Allocated parking
- Low maintenance rear garden with artifical grass
- Dual aspect living/dining room
- Kitchen with garden aspect
- First floor bathroom
- Upgraded boiler with existing warranty
- Local shops, schools and great transport links
- High speed rail from chatham to london in just 40 minutes
- Walking distance to riverside, shopping centre, restaurants, cinema and marina
Full Details:
This two bedroom, semi-detached home is set within a conservation area near the Chatham Historic Dockyard and offers a comfortable and well connected place to live.
Inside, the dual-aspect living and dining room feels light and generous, with space to unwind as easily as it accommodates friends and family.
The separate kitchen looks out over the rear garden and is sensibly laid out, combining everyday practicality with a smart finish.
Upstairs, two well proportioned bedrooms are served by a modern bathroom, creating a layout that works equally well for couples, small families, or those looking to simplify without compromise.
Allocated parking adds everyday convenience, while nearby transport links make commuting straightforward, with high-speed services reaching London from Chatham in around 40 minutes.
Outside, the house continues to impress. A front garden area provides a welcoming sense of separation from the road, while the enclosed rear garden offers a private retreat and with artificial lawn it also provides a low maintenance space to enjoy all year round.
For added peace of mind there has been a new boiler installed in 2024 which is still within it’s warranty period.
The riverside, marina, shops, restaurants, cinema, and shopping centre are all within walking distance, making it easy to enjoy both quiet moments and entertainment whenever you fancy.
Medway Council Tax Band C | EPC Grade C | Freehold
A transfer of the land in this title dated 1 November 1985 contains restrictive covenants, light and air boundaries and rights of drainage. All property details are provided by the Vendor and should be verified by the buyer’s solicitor and surveyor. Tenure and material information is based on the Vendor’s input and must be confirmed independently. Fixtures, fittings, and appliances have not been tested, and no assurances are given. Buyers should not rely solely on this information when making a decision and should review the full title documents, local planning applications and seek independent legal advice for a full understanding of rights, covenants, and restrictions prior to exchange of contracts.
EPC Rating: C
Parking - Allocated Parking
Viewing & Disclaimer:
Please contact us on 01634 326036 if you wish to arrange a viewing appointment for this property, or require further information.
Energy Performance Certificate
Click here to view the Energy Efficiency Rating and Environmental Impact Rating for this property.
Moxy Property Consultants endeavour to maintain accurate depictions of properties in Virtual Tours, Floor Plans and descriptions, however, these are intended only as a guide and purchasers must satisfy themselves by personal inspection.
