Holcombe Road, Chatham, Kent. ME4
Summary:
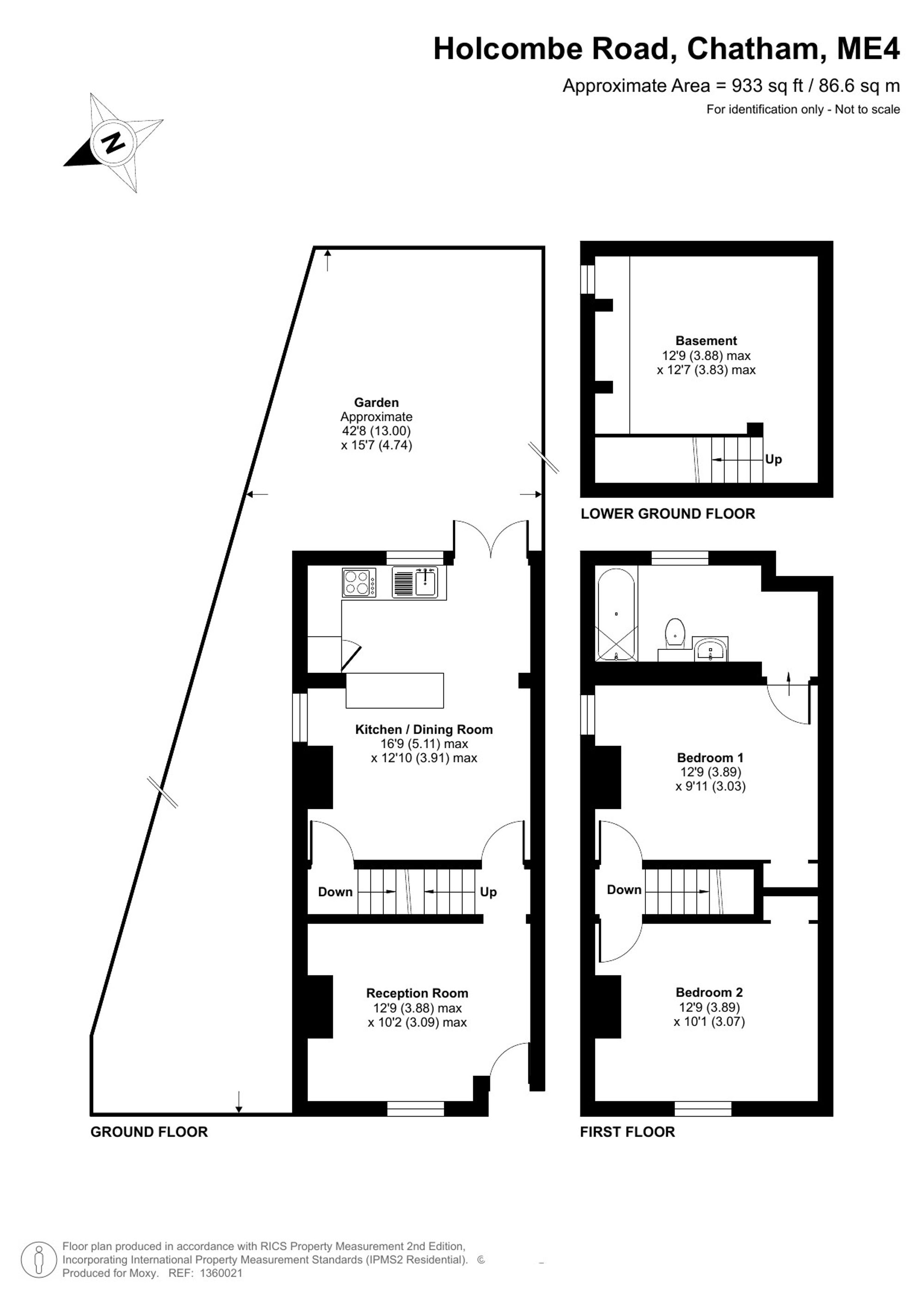
Two bed, end of terrace home with lounge and open-plan kitchen/diner, garden, driveway. Close to schools, town centre and train station with direct links to London in just 40 minutes.
Key Features:
- End of terrace corner plot with front driveway
- Two double bedroom house
- Front living room
- Open plan kitchen/diner with garden access
- Rear and side garden spaces
- Walking distance to several schools and town centre
- Easy access to chatham train station with direct links to london in just 36 minutes
- First floor bedrooms and bathroom
- Cellar
- Contact moxy to arrange your viewing
Full Details:
This two double bedroom, end of terrace house sits on a generous corner plot with a block paved front driveway for added convenience.
Step inside to discover a welcoming front living room and then through into the heart of the home which lies at the rear of the property and boast a spacious open plan kitchen/diner, offering seamless access to the garden area.
The first floor provides the two generous double bedrooms with the bathroom leading of the principal bedroom.
There is also a cellar which offers further potential and now a great space for storage and outside, the additional rear and side garden spaces provide great areas to enjoy.
Conveniently situated within walking distance to several schools and the bustling town centre, this home offers a prime location for families or professionals alike.
With easy access to Chatham train station, residents can enjoy direct high speed links to St Pancras in just 40 minutes, making commuting a breeze.
Whether you're looking to settle down or embark on a new chapter, this house presents a great opportunity to create lasting memories in a central location.
Reach out to Moxy today to arrange your exclusive viewing and discover the endless possibilities that await in this home.
EPC Grade D l Medway Council Tax Band B
Please note - Conveyance of the land in this title dated 1956 shows the right for the Purchasers and their successors in title to use the passageway on the South side coloured brown on the said plan in common with the owners and occupiers for the time being of the premises Numbers 3 and 5 paying a proportionate part of the cost of maintaining. All property details are provided by the Vendor and should be verified by the buyer’s solicitor and surveyor. Tenure and material information is based on the Vendor’s input and must be confirmed independently. Fixtures, fittings, and appliances have not been tested, and no assurances are given. Buyers should not rely solely on this information when making a decision and should review the full title documents, local planning applications and seek independent legal advice for a full understanding of rights, covenants, and restrictions prior to exchange of contracts.
EPC Rating: D
Viewing & Disclaimer:
Please contact us on 01634 326036 if you wish to arrange a viewing appointment for this property, or require further information.
Energy Performance Certificate
Click here to view the Energy Efficiency Rating and Environmental Impact Rating for this property.
Moxy Property Consultants endeavour to maintain accurate depictions of properties in Virtual Tours, Floor Plans and descriptions, however, these are intended only as a guide and purchasers must satisfy themselves by personal inspection.
 
                        