Victoria Road, Chatham, Kent. ME4
Summary:
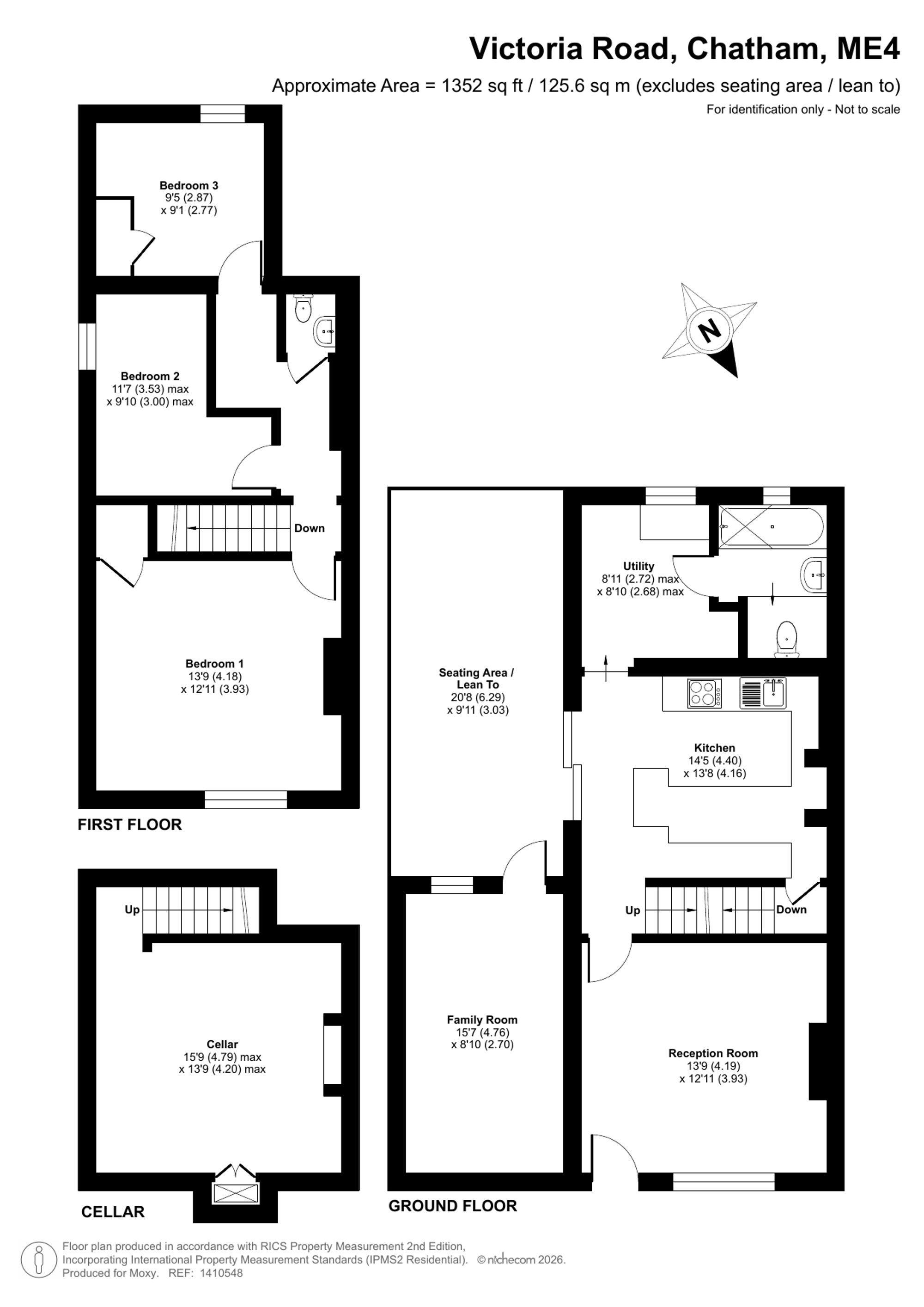
Offered chain free is this beautifully balanced, three bedroom, end of terrace home spanning in excess of 1300 sqft that offers a generous living space, flexible rooms, and a garden designed for both sunshine and simplicity.
Key Features:
- End of terrace
- Three bedrooms
- Ground floor family bathroom with separate utility area
- Sizeable south facing garden
- Versatile converted garage
- Flexible basement space
- Fantastic access to amenities, schooling and transport connections
- Chain free
- Must view
Full Details:
Offered chain free is this beautifully balanced, three bedroom, end of terrace home spanning in excess of 1300 sqft that offers a generous living space, flexible rooms, and a garden designed for both sunshine and simplicity.
Step inside to a welcoming reception room, perfect for relaxed evenings or lively gatherings. To the rear, the spacious eat-in kitchen forms the heart of the home, offering ample room for dining, conversation, and everyday family life.
Practicality is woven seamlessly into the layout, with a large utility room providing excellent additional storage and workspace, alongside a well-appointed ground floor family bathroom.
Downstairs, the adaptable cellar presents exciting possibilities. Whether you envision a home office, games room, creative studio, or even a potential fourth bedroom, this flexible space is ready to evolve with your needs.
Upstairs, you’ll find three generously sized bedrooms, each offering comfortable proportions and natural light, complemented by the convenience of an additional upstairs toilet.
Outside, the property truly shines. The large south-westerly facing garden enjoys all day sun, complete with artificial lawn for effortless maintenance. An enclosed lean-to creates an inviting sheltered seating area, ideal for year-round relaxation. The converted garage adds yet another versatile space, suitable for a home gym, workshop, studio, or additional storage.
Offered chain free, this is a superb opportunity to secure a well-proportioned, adaptable home with space to grow, work, and unwind.
With excellent transport links this home offers quick and efficient transport options, with Chatham just a stone's throw away and a high-speed line providing direct access to London in just 35 minutes. This prime location is ideal for commuters or those looking to explore the cultural offerings of the capital. With a variety of schooling options and amenities, Victoria Road is ideal for all the family.
Call Moxy Property Consultants to arrange your private tour!
Freehold
medway council tax
council tax band B
chain free
EPC Rating: D
Viewing & Disclaimer:
Please contact us on 01634 326036 if you wish to arrange a viewing appointment for this property, or require further information.
Energy Performance Certificate
Click here to view the Energy Efficiency Rating and Environmental Impact Rating for this property.
Moxy Property Consultants endeavour to maintain accurate depictions of properties in Virtual Tours, Floor Plans and descriptions, however, these are intended only as a guide and purchasers must satisfy themselves by personal inspection.
