Stopford Road, Gillingham, Kent. ME7
Summary:
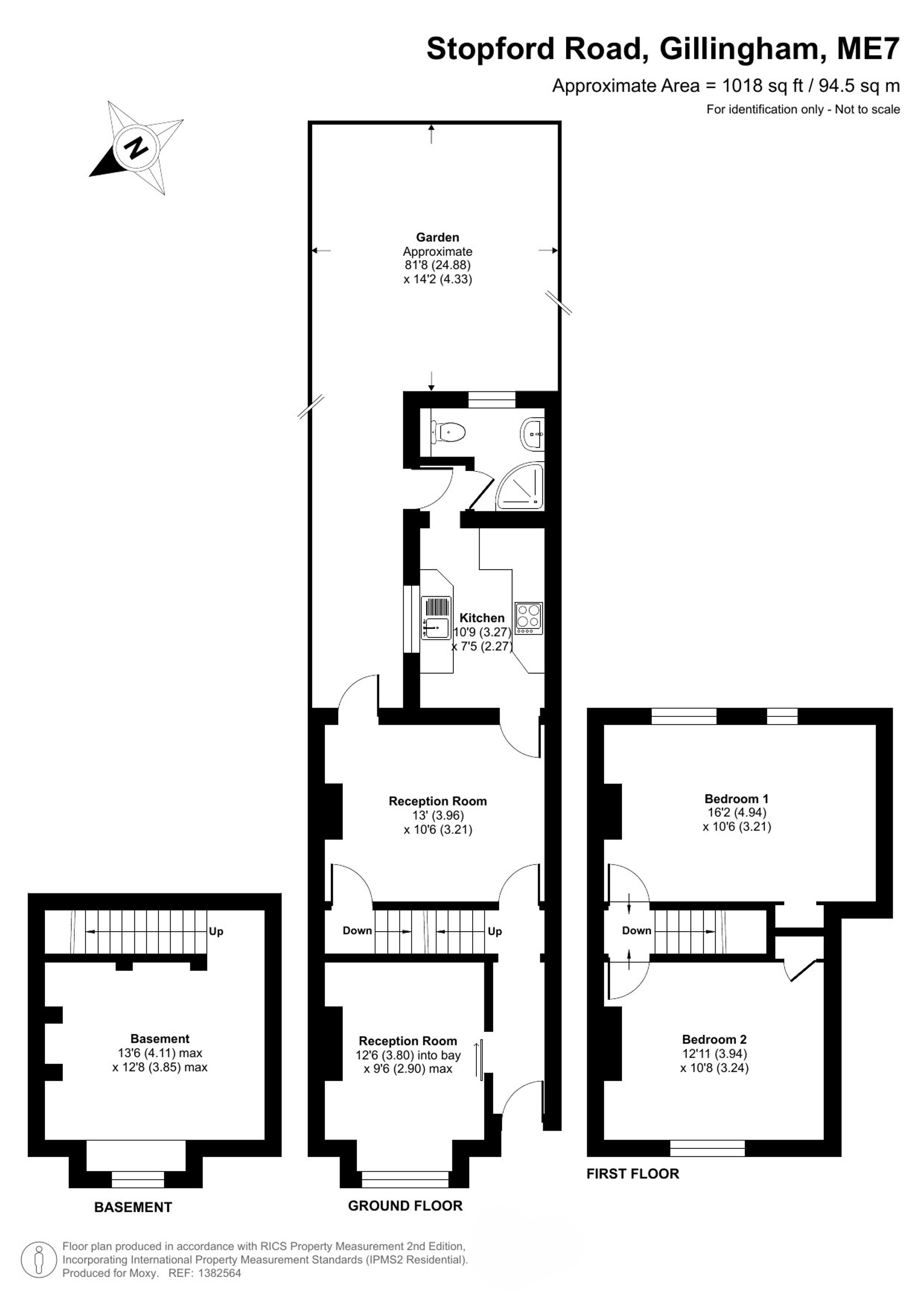
Centrally located two double bedroom home with two receptions, fitted kitchen, and ground floor shower room. Features a 80ft + rear garden and is close to the station, schools and Medway Hospital.
Key Features:
- Two double bedroom freehold home
- Two reception rooms
- Fitted kitchen
- Ground floor shower room
- Generous double bedrooms
- Deceptively large terrace house
- 80ft + east facing rear garden with side access and code locked gate
- Walking distance to train station and medway hospital
- Central area ideal for commuters just 40 mins to london - high speed direct
- Existing ground floor extension and front courtyard set back from road
Full Details:
This spacious, mid-terraced house presents a prime opportunity for buyers seeking a two bedroom freehold home in a central location.
Boasting two generous double bedrooms and two reception rooms - one recently renovated to a high spec as well as a basement, this property effortlessly blends functionality with comfort. Adding to the comfort and appeal of the living room, the fireplace has a stone surround and marble hearth and has been reinforced with fireproof render making it ready for installation of a log burner if desired.
The extended fitted kitchen and ground floor shower room provides convenience for every-day living.
Head to the first floor to discover the generous first floor bedrooms, offering ample space for rest and relaxation.
Deceptively large, this terrace house surprises with its spacious layout, ensuring there is no shortage of room to personalise and make it your own.
A standout feature of this property is the expansive 80ft+ east facing rear garden with side access via a locked gate, providing a peaceful retreat amidst the urban bustle. Ideal for both unwinding after a long day and hosting gatherings with loved ones, this outdoor space offers endless possibilities for enjoyment.
Convenience is key with this property's location, as it is within walking distance to both the train station and Medway Hospital. For those commuting to London, the property's central area makes the daily journey a breeze, with a mere 40-minute direct and high speed train ride to the heart of the city.
In summary, this two bedroom, mid terraced house is a rare find in today's market, offering a blend of comfort, convenience, and potential.
Whether you are a first-time buyer looking to enter the property market or a seasoned investor seeking a valuable addition to your portfolio, this property ticks all the boxes.
Don't miss out on the opportunity to make this house your home and experience all that it has to offer. Book a viewing with moxy today to see for yourself the endless possibilities that await in this charming home.
Freehold | Medway Council Tax Band B | EPC Grade E | Benefits From A Current Gas Safety Certificate
A Conveyance of the land dated 24 November 1880 contains restrictive covenants and easements. Property details are provided by the Vendor and should be verified by the buyer’s solicitor and surveyor. Tenure and material information is based on the Vendor’s input and must be confirmed independently. Fixtures, fittings, and appliances have not been tested, and no assurances are given. Buyers should not rely solely on this information when making a decision and should review the full title documents, local planning applications and seek independent legal advice for a full understanding of rights, covenants, and restrictions prior to exchange of contracts.
EPC Rating: E
Parking - Permit
Viewing & Disclaimer:
Please contact us on 01634 326036 if you wish to arrange a viewing appointment for this property, or require further information.
Energy Performance Certificate
Click here to view the Energy Efficiency Rating and Environmental Impact Rating for this property.
Moxy Property Consultants endeavour to maintain accurate depictions of properties in Virtual Tours, Floor Plans and descriptions, however, these are intended only as a guide and purchasers must satisfy themselves by personal inspection.
