Woodlands Road, Gillingham ME7
Summary:
New to the market is this beautiful, three bedroom, end of terrace residence situated on the outskirts of Gillingham town. With the opportunity to be chain free, this would make an ideal home for first time buyers looking for a smooth transaction.
Key Features:
- End of terrace residence
- Three bedrooms
- Contemporary kitchen
- Two reception rooms
- Sizeable rear garden
- Opportunity to be chain free
- Fantastic access and transport links
- Must view
- Situated within the outskirts of gillingham town
- Ideal first time buyer property
Full Details:
New to the market is this beautiful, three bedroom, end of terrace residence situated on the outskirts of Gillingham town. With the opportunity to be chain free, this would make an ideal home for first time buyers looking for a smooth transaction.
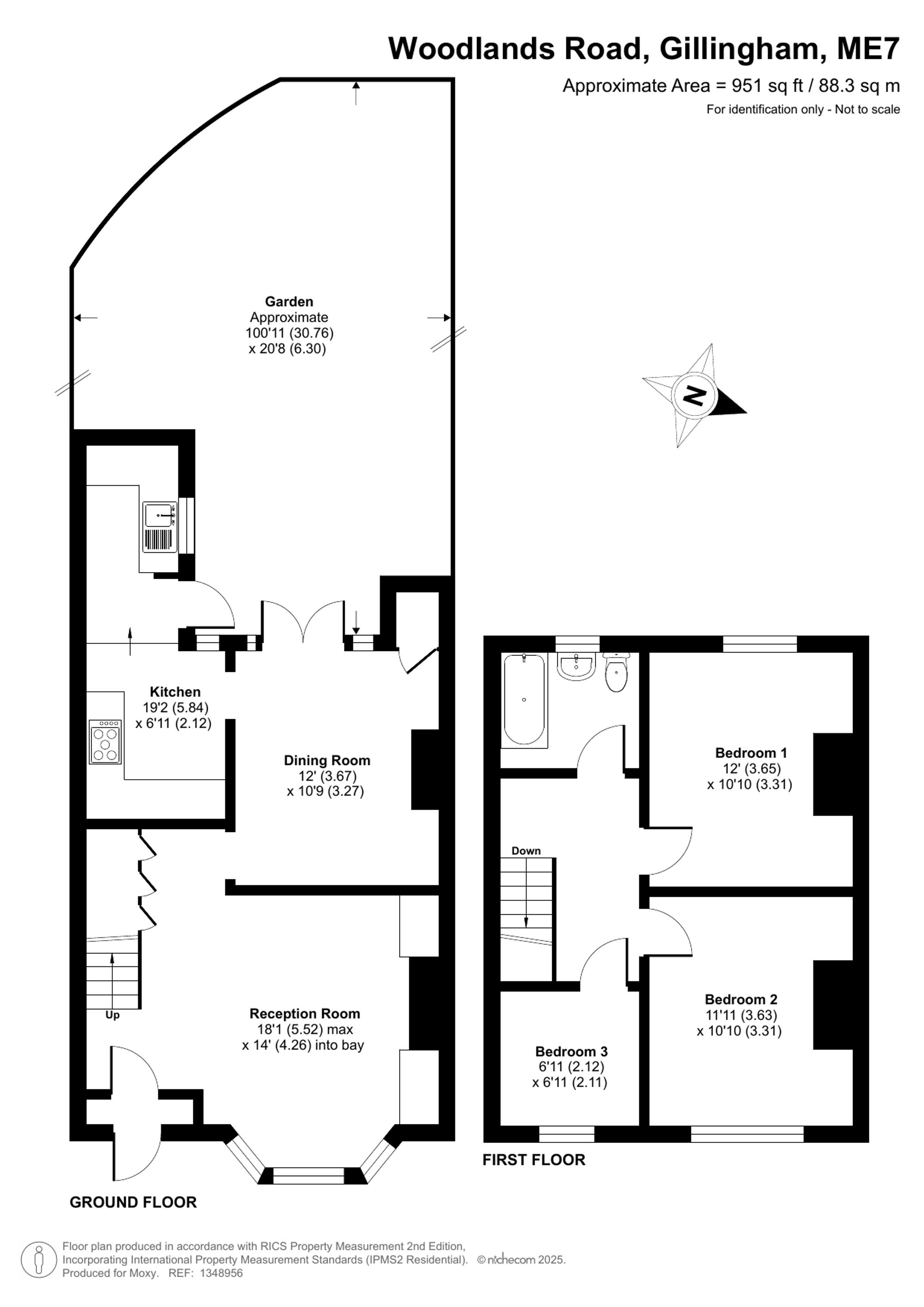
Upon entering the property you are welcomed by the inviting living room. With character and charm the property offers the perfect blend between period features and modern décor. The kitchen is located at the rear of the property and is finished to a contemporary specification making it the ideal spot to unleash your culinary creations. A second, versatile reception room can be found off the kitchen which makes the ideal formal dining area for those that like to entertain and host.
As you ascend to the top floor you will find three bedrooms all offering an abundance of natural light. The modern family bathroom services all three bedrooms and benefits from a three-piece suite.
Step outside to discover a sizeable rear garden, offering potential for outdoor leisure activities and al fresco dining.
The property presents an opportunity to be chain-free, providing ease and convenience for potential purchasers.
The property's fantastic location offers easy access to a host of amenities, including shops, restaurants, schools, and recreational facilities, providing everything needed for comfortable day-to-day living. With excellent transport links nearby, commuting is a breeze.
Call Moxy Property Consultants to arrange your private tour !
Freehold
medway council tax
council tax band C
opportunity to be chain free
EPC Rating: D
Viewing & Disclaimer:
Please contact us on 01634 326036 if you wish to arrange a viewing appointment for this property, or require further information.
Energy Performance Certificate
Click here to view the Energy Efficiency Rating and Environmental Impact Rating for this property.
Moxy Property Consultants endeavour to maintain accurate depictions of properties in Virtual Tours, Floor Plans and descriptions, however, these are intended only as a guide and purchasers must satisfy themselves by personal inspection.
 
                        