Thistledown, Gravesend, Kent. DA12
Summary:
A beautifully, refurbished, two-bedroom, terrace residence that boasts a south-facing landscaped rear garden and en-bloc garage! A home that blends contemporary comfort with practical living. Perfectly suited for first-time buyers, this stylish property is ready to move straight into and enjoy.
Key Features:
- Terrace residence
- Two bedrooms
- South facing landscaped garden
- Separate kitchen
- En-bloc garage
- Move in ready
- Ideally positioned for commuting links
- Short drive to ebbsfleet international and bluewater shopping center
- Ideal ftb home
- Must view
Full Details:
A beautifully, refurbished, two-bedroom, terrace residence! A home that blends contemporary comfort with practical living. Perfectly suited for first-time buyers, this stylish property is ready to move straight into and enjoy.
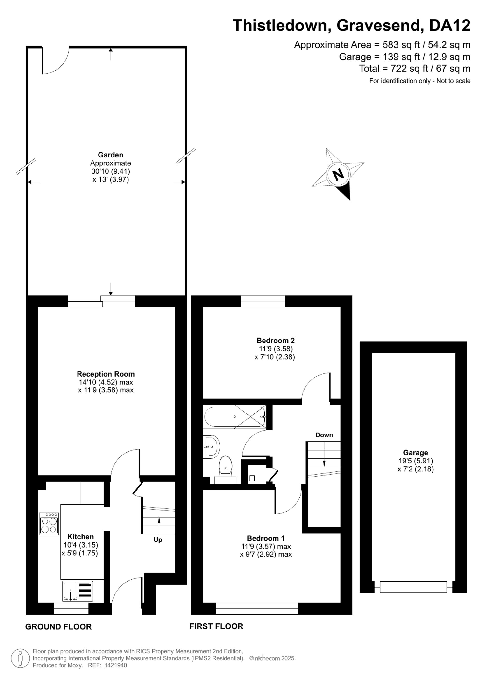
The ground floor welcomes you with a cosy lounge area, thoughtfully designed as the heart of the home. Bathed in natural light, it provides a relaxing space to unwind while offering direct access to the landscaped south-facing rear garden, ideal for summer evenings, entertaining guests, or simply enjoying a quiet morning coffee.
A separate contemporary kitchen sits alongside the living space, finished with modern fittings and offering a practical layout for culinary enthusiasts.
Upstairs, the property features two double bedrooms, both offering comfortable proportions and versatility for sleeping, working from home, or additional storage. The accommodation is complemented by a stylish family bathroom fitted with a sleek three-piece suite, providing a fresh and modern feel.
Outside, the south-facing landscaped rear garden creates a private outdoor retreat with plenty of sunlight throughout the day. The property also benefits from an en-bloc garage, providing secure parking or valuable additional storage.
Fully refurbished throughout, this attractive home combines modern finishes with a convenient layout, making it an ideal choice for first-time buyers or anyone seeking a low-maintenance, move-in-ready property.
Thistledown is a quiet residential area within the Singlewell/Hever Farm development in Gravesend, Kent. Popular with families and commuters, it offers a suburban setting while remaining within easy reach of Gravesend town centre and its amenities.
The area is well served by a number of nearby schools. Primary options include Singlewell Primary School and St. Joseph’s Catholic Primary School, while secondary education is available at Thamesview School. Their close proximity makes the area convenient for families with school-age children.
Residents have access to local shops and convenience stores nearby, with a wider range of supermarkets, cafés, restaurants and retail outlets available in Gravesend town centre. Larger shopping and leisure facilities can be found at Bluewater Shopping Centre. The area also benefits from nearby recreational spaces such as Cyclopark, Cascades Leisure Centre and Jeskyns Community Woodland.
Thistledown is well connected for commuters, with regular bus services providing access to Gravesend town centre and surrounding areas. The A2 is easily accessible, linking to the M2, M20 and M25 for travel across Kent and into London. Gravesend railway station offers high-speed services to London St Pancras in around 22–25 minutes, while Ebbsfleet International is also a short drive away.
Overall, Thistledown offers a convenient and family-friendly location with good schools, local amenities and strong transport links.
Call Moxy Property Consultants to arrange your private tour!
Freehold
gravesham council tax
council tax band C
EPC Rating: D
Viewing & Disclaimer:
Please contact us on 01634 326036 if you wish to arrange a viewing appointment for this property, or require further information.
Energy Performance Certificate
Click here to view the Energy Efficiency Rating and Environmental Impact Rating for this property.
Moxy Property Consultants endeavour to maintain accurate depictions of properties in Virtual Tours, Floor Plans and descriptions, however, these are intended only as a guide and purchasers must satisfy themselves by personal inspection.
