Allington Drive, Strood, Rochester, Kent. ME2
Summary:
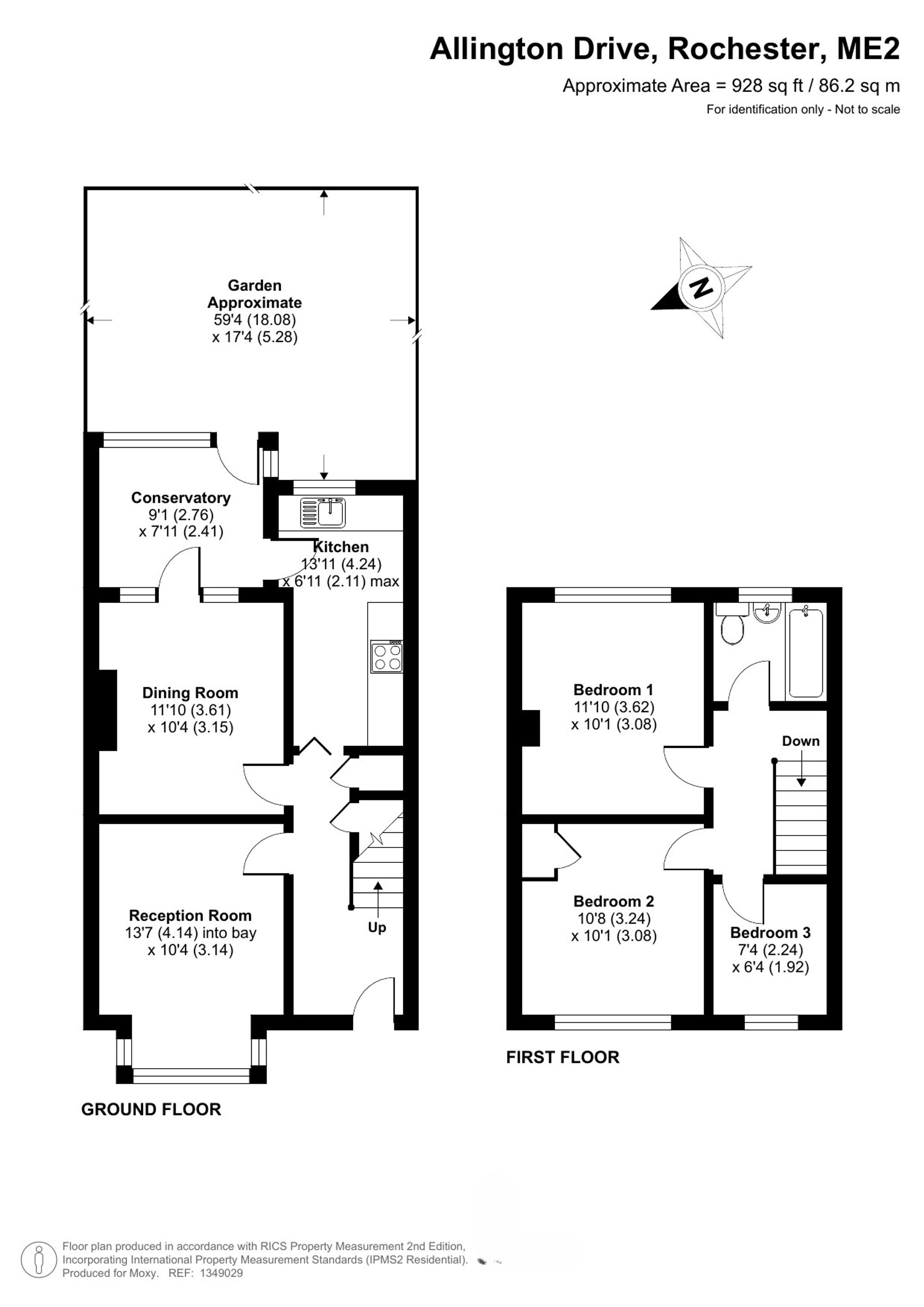
No forward chain! Three-bed terraced home with driveway, living and dining rooms, kitchen, conservatory, east-facing garden. Huge potential to modernise in a great location near transport & schools.
Key Features:
- No forward chain
- Three bedroom terraced home
- Front driveway
- Living room and separate dining room
- Kitchen and conservatory
- First floor bathroom
- East facing approx. 60ft garden
- In need of modernisation with potential
- Popular locatoin - excellent road and rail links and near to schools
- EPC grade C
Full Details:
No forward chain - Presenting an excellent opportunity to transform into your dream home, this three bedroom terraced house boasts vast potential for modernisation.
The property features a front driveway and inside there is a charming living room to the front aspect and separate dining room to the rear creating two spaces perfect for hosting family gatherings or relaxing evenings. Upstairs, the first floor bathroom caters to the needs of the household, completing the traditional layout of this inviting home. The kitchen provides an existing functional space overlooking the garden while the conservatory offers further potential for a garden view room ideal for all year round.
Externally, the property showcases an impressive outdoor space that is sure to delight gardening enthusiasts wanting to create their own oasis. The east-facing garden presents a great space for outdoor entertaining or simply enjoying the tranquillity of the surroundings.
Situated in a popular location known for its excellent road and rail links, as well as proximity to schools, this residence offers both convenience and potential. With no forward chain seize the opportunity to make this property your own and create a bespoke living space tailored to your vision and lifestyle.
EPC Grade C l Medway Council Tax C
A Conveyance dated 1959 contains covenants. Property details are provided by the Vendor and should be verified by the buyer’s solicitor and surveyor. Tenure and material information is based on the Vendor’s input and must be confirmed independently. Fixtures, fittings, and appliances have not been tested, and no assurances are given. Buyers should not rely solely on this information when making a decision and should review the full title documents, local planning applications and seek independent legal advice for a full understanding of rights, covenants, and restrictions prior to exchange of contracts.
EPC Rating: C
Garden (18.08m x 5.18m)
Parking - Driveway
Viewing & Disclaimer:
Please contact us on 01634 326036 if you wish to arrange a viewing appointment for this property, or require further information.
Energy Performance Certificate
Click here to view the Energy Efficiency Rating and Environmental Impact Rating for this property.
Moxy Property Consultants endeavour to maintain accurate depictions of properties in Virtual Tours, Floor Plans and descriptions, however, these are intended only as a guide and purchasers must satisfy themselves by personal inspection.
