Bill Street, Strood, Rochester, Kent. ME2
Summary:
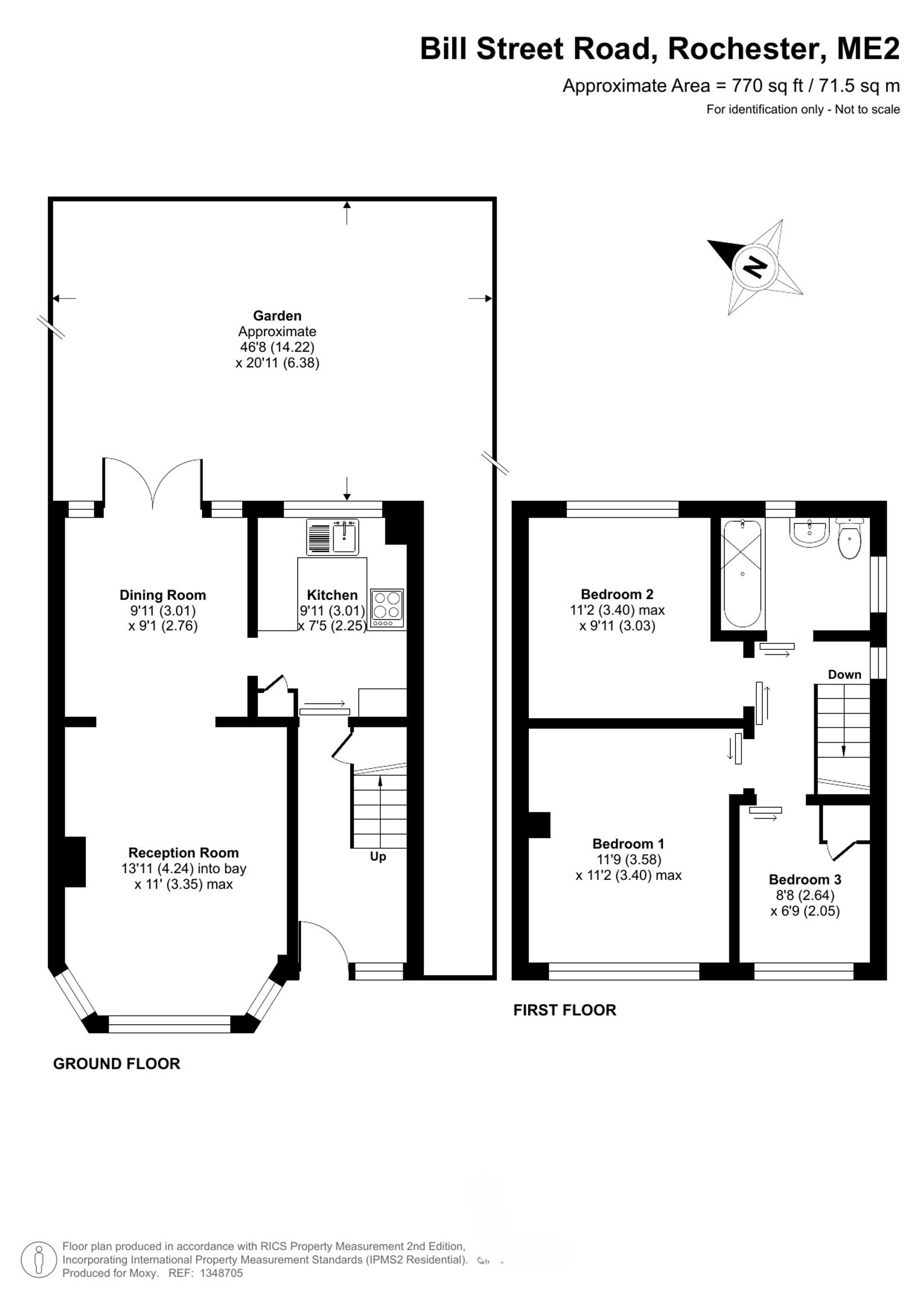
Three bedroom, end of terrace home with front driveway and rear garden with potential for further parking at the rear. Close to Hilltop Primary, Strood Station, just 32 mins to London. Call moxy now!
Key Features:
- Three bedrooms
- End of terrace home
- Front driveway for two cars and potential rear off road parking
- Living room and separate kitchen
- Sunny aspect rear garden - landscaped with lawn and sandstone seating areas
- First floor bathroom
- Close to hilltop primary school and walking distance to strood train station
- High speed direct train -strood to london in just 32 minutes
Full Details:
Discover this inviting three bedroom, end of terrace home perfectly positioned in a central location close to schools, shops, train station and main road links.
From the moment you arrive, the practicality and charm of this property are evident. A private driveway offers space for two cars, and there’s even potential for additional parking at the rear.
Step inside to find a bright and inviting living space designed for both relaxation and entertaining. The separate kitchen provides a dedicated area to create and enjoy family meals.
Upstairs, three bedrooms offer flexibility for growing families, guests, or that much-needed home office. A well-appointed bathroom completes the first floor, ensuring comfort and convenience for everyday living.
Outside, the garden is a true highlight—bathed in sunlight, with a manicured lawn, artwork and sandstone seating areas that set the stage for summer barbecues, al fresco dining, or simply unwinding in peace.
Perfectly placed for modern life, the property is just moments from Hilltop Primary School and within walking distance of Strood Train Station, where high-speed links will have you in London in just 32 minutes.
With space, style, and superb connectivity, this home offers everything you need for a vibrant and practical lifestyle.
Book your viewing today and imagine the possibilities.
EPC Grade D l Medway Council Tax Band B
Please note - Parking potential at the rear of the property would be accessed via a shared access track at the back of the property. All property details are provided by the Vendor and should be verified by the buyer’s solicitor and surveyor. Tenure and material information is based on the Vendor’s input and must be confirmed independently. Fixtures, fittings, and appliances have not been tested, and no assurances are given. Buyers should not rely solely on this information when making a decision and should review the full title documents, local planning applications and seek independent legal advice for a full understanding of rights, covenants, and restrictions prior to exchange of contracts.
EPC Rating: D
Parking - Driveway
Viewing & Disclaimer:
Please contact us on 01634 326036 if you wish to arrange a viewing appointment for this property, or require further information.
Energy Performance Certificate
Click here to view the Energy Efficiency Rating and Environmental Impact Rating for this property.
Moxy Property Consultants endeavour to maintain accurate depictions of properties in Virtual Tours, Floor Plans and descriptions, however, these are intended only as a guide and purchasers must satisfy themselves by personal inspection.
