Carnation Road, Rochester, Kent. ME2
Summary:
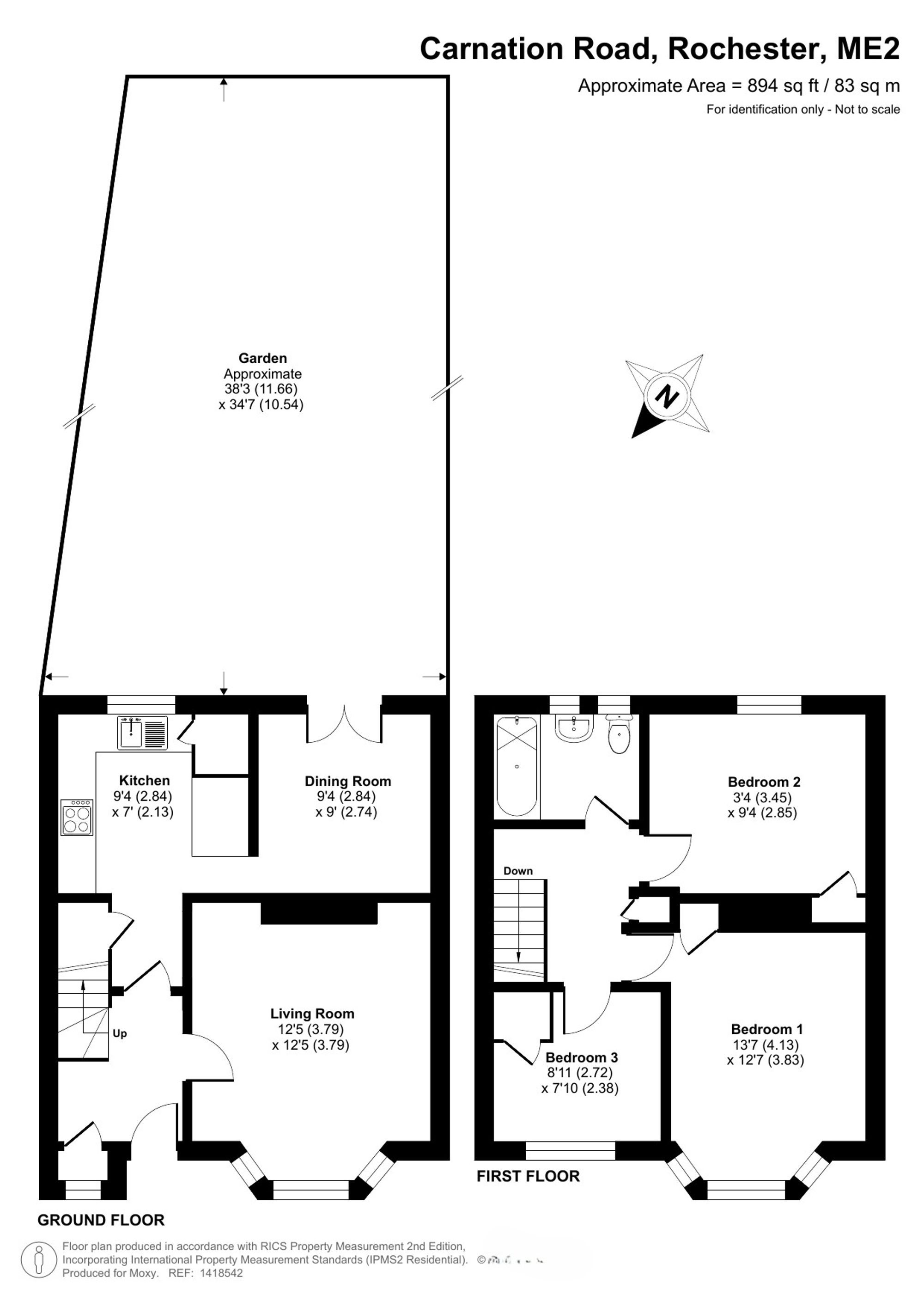
Three bedroom, semi with driveway, bright bay-fronted living room and open kitchen/diner and garden, Overlooks a green and close to schools, links and Strood railway station for high-speed commuting.
Key Features:
- Three bedroom semi-detached home
- Front driveway + EV charging point
- 38ft X 34ft rear garden
- Living room with bay window
- Open plan kitchen/diner with garden access
- First floor bathroom
- Principal bedroom with bay window
- Positioned over looking green
- Close to schools, bus routes and main road links
- Easy access to strood train station
Full Details:
Set back from the road over looking a large green and behind a private driveway, this three bedroom semi-detached house feels tucked away while remaining well connected. There’s space to park off the road with an EV charging point and a clear sense of arrival as you step inside.
The entrance hall opens into a bright living room, where a bay window draws in plenty of daylight and gives the room a relaxed, open feel. It’s an easy space to arrange and settle into, whether that’s for quiet evenings or time with friends.
To the rear, the kitchen and dining area runs as one sociable space - practical for day to day life but equally suited to hosting. Units and workspaces keeps things streamlined, and there’s direct access outside, making it simple to spill into the south east facing garden when the weather allows.
Upstairs are three well-sized bedrooms. The main bedroom benefits from its own bay window, looking out over a communal green and the bathroom positioned conveniently off the landing is finished in a clean, contemporary style.
Double glazing and gas central heating provide year-round comfort, while built-in storage helps keep everything organised.
The location adds to the appeal. Well regarded schools, regular bus routes and major road links are all nearby, and Strood railway station is within easy reach, offering direct services into London and surrounding areas, a real advantage for commuters.
For buyers seeking the great outdoors, access to Rede Common Nature Reserve just across the green and provides a wonderful setting to enjoy whatever the season without getting in the car.
Medway Council Tax Band C | EPC Grade D | Freehold
A transfer of the land in this title in 1980 contains restrictive covenants. All property details are provided by the Vendor and should be verified by the buyer’s solicitor and surveyor. Tenure and material information is based on the Vendor’s input and must be confirmed independently. Fixtures, fittings, and appliances have not been tested, and no assurances are given. Buyers should not rely solely on this information when making a decision and should review the full title documents, local planning applications and seek independent legal advice for a full understanding of rights, covenants, and restrictions prior to exchange of contracts
EPC Rating: D
Parking - Driveway
Viewing & Disclaimer:
Please contact us on 01634 326036 if you wish to arrange a viewing appointment for this property, or require further information.
Energy Performance Certificate
Click here to view the Energy Efficiency Rating and Environmental Impact Rating for this property.
Moxy Property Consultants endeavour to maintain accurate depictions of properties in Virtual Tours, Floor Plans and descriptions, however, these are intended only as a guide and purchasers must satisfy themselves by personal inspection.
