Cooling Road, Rochester, Kent. ME2
Summary:
A three bedroom home just six years old and with off road parking for two cars. Central location nearby to schools, main road links and train station with direct links to London in just 35 minutes.
Key Features:
- Three bedroom house just 5 years old
- Newly built in 2020
- Two allocated off road parking spaces
- Central location for schools, road links and train station
- 30ft east facing rear garden
- Open plan kitchen/diner
- Kerb appeal and beautifully presented interior
- First floor bathroom with under floor heating
- Living room with garden access
- EPC grade B
Full Details:
Step into this stunning three bedroom terraced home, built in 2020 and beautifully presented throughout, perfect for those seeking contemporary living in a highly convenient central location.
From the moment you arrive, the property impresses with its attractive kerb appeal and stylish, move-in-ready interior designed with both comfort and practicality in mind.
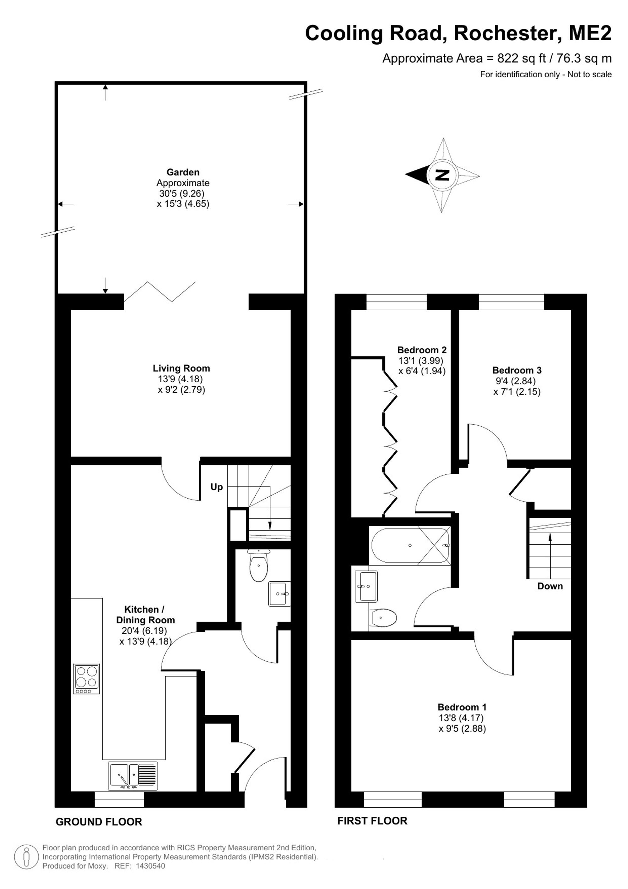
Inside, a welcoming hallway leads you into a bright hallway and then into a sleek open-plan kitchen and dining area, thoughtfully designed for modern living. With quality fittings, integrated appliances and ample worktop space this area creates a sociable layout that leads into the living room that sits at the rear of the property and is a lovely bright room with direct access to the rear garden. For extra comfort the ground floor has under floor heating.
Upstairs, you’ll find three bedrooms offering flexible living arrangements. There are two double rooms and one single that would work well as home office/hobby room, dressing room or nursery. A contemporary bathroom with underfloor heating and finished to a high standard, completes the upper floor.
Throughout the home, neutral décor creates a calm and elegant backdrop, ready for you to make your own.
The rear garden is 30ft x 15ft and is East facing with a lawn and patio area as well as side access.
Outside, the property continues to deliver with two allocated parking spaces, offering everyday convenience and added peace of mind.
Centrally located, the home provides easy access to local schools, main road links, and the train station, making commuting simple offering direct line into London in just 35 minutes.
A variety of shops and amenities are just a short distance away with Bluewater just a short drive while nearby woodland, parks and countryside walks offer the perfect escape for fresh air and relaxation.
Combining the benefits of a modern build with a sought-after location, this exceptional home is perfect for buyers looking for style, comfort, and convenience. Early viewing is highly recommended to truly appreciate everything on offer.
Freehold | Medway Council Tax Band C | EPC Grade B | Managed Common Areas Approx. £25 per month subject to review
The Transfer dated February 2021 contains provisions as to light or air and boundary structures and restrictive covenants. The land tinted yellow on the title plan showing the car park spaces is subject to rights to use the channels drains pipes wires and cables therein. The vendors of the row of four properties are directors of an appointed Management Company who apportion shared costs for the upkeep of the common areas on a mutual agreement basis. All property details are provided by the Vendor and should be verified by the buyer’s solicitor and surveyor. Tenure and material information is based on the Vendor’s input and must be confirmed independently. Fixtures, fittings, and appliances have not been tested, and no assurances are given. Buyers should not rely solely on this information when making a decision and should review the full title documents, local planning applications and seek independent legal advice for a full understanding of rights, covenants, and restrictions prior to exchange of contracts.
EPC Rating: B
Parking - Allocated Parking
Viewing & Disclaimer:
Please contact us on 01634 326036 if you wish to arrange a viewing appointment for this property, or require further information.
Energy Performance Certificate
Click here to view the Energy Efficiency Rating and Environmental Impact Rating for this property.
Moxy Property Consultants endeavour to maintain accurate depictions of properties in Virtual Tours, Floor Plans and descriptions, however, these are intended only as a guide and purchasers must satisfy themselves by personal inspection.
