Fairlead Road, Rochester, Kent. ME1
Summary:
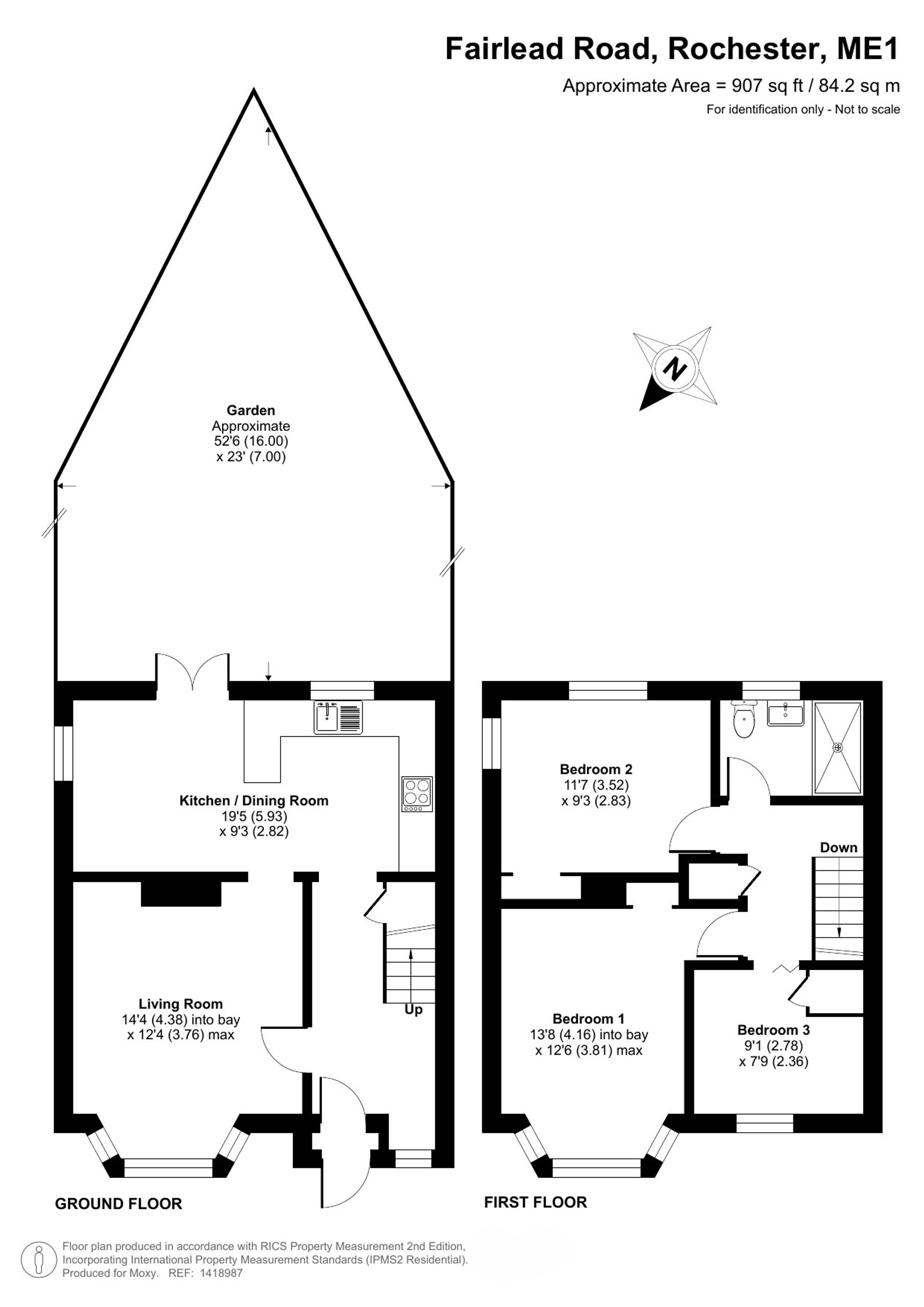
A three bedroom, semi-detached home in Rochester with bay windows, log burner, open-plan kitchen/dining, modern shower room on an elevated plot. Close to great schools and excellent commuter links.
Key Features:
- Semi-detached home
- Three bedrooms
- First floor shower room
- Bay windows in lounge and principal bedroom
- Log burner in lounge
- Renovated throughout
- Open plan kitchen and diner with garden access
- Elevated postion with generous front grass area
- Walking distane to schools including grammars
- Excellent road links and bus routes - central rochester location
Full Details:
No forward chain - Step inside this beautifully decoratively renovated three-bedroom, semi-detached home in the heart of central Rochester. Sunlight floods the spacious lounge and principal bedroom through elegant bay windows, highlighting characterful touches like a cosy log burner and contemporary flooring.
The rear of the home opens into a stunning open-plan kitchen and dining area, designed for modern family life and effortless indoor-outdoor flow. Upstairs, three generously sized bedrooms offer flexible living, while a sleek, high-spec shower room adds a touch of luxury.
Set on an elevated plot with a welcoming front lawn, this home offers a great location. Families will love the proximity to a selection of top schools, including well regarded grammar schools, while commuters benefit from excellent road links, frequent bus services and Rochester Train Station within walking distance providing a many routes into London and the South Coast as well as a direct high-speed service into St Pancras in just 36 minutes
With its mix of original charm, on-trend updates, and a prime central ME1 location, this move-in-ready home is a standout choice in Rochester. Contact moxy to arrange your viewing today.
Please note the rear garden is undergoing work and a photo will follow.
Freehold | Medway Council Tax Band C | EPC Grade D
A Conveyance of the land in this title dated 12 February 1964 contains restrictive covenants. All property details are provided by the Vendor and should be verified by the buyer’s solicitor and surveyor. Tenure and material information is based on the Vendor’s input and must be confirmed independently. Fixtures, fittings, and appliances have not been tested, and no assurances are given. Buyers should not rely solely on this information when making a decision and should review the full title documents, local planning applications and seek independent legal advice for a full understanding of rights, covenants, and restrictions prior to exchange of contracts
EPC Rating: D
Viewing & Disclaimer:
Please contact us on 01634 326036 if you wish to arrange a viewing appointment for this property, or require further information.
Energy Performance Certificate
Click here to view the Energy Efficiency Rating and Environmental Impact Rating for this property.
Moxy Property Consultants endeavour to maintain accurate depictions of properties in Virtual Tours, Floor Plans and descriptions, however, these are intended only as a guide and purchasers must satisfy themselves by personal inspection.
