Rochester Riverside, Corys Road, Rochester, Kent. ME1
Summary:
Corner plot in Rochester Riverside. Two bed, two bath apartment with open-plan living, private balcony with river views and parking. Close to Rochester train station, High Street and riverside walks.
Key Features:
- Two double bedroom apartment
- First floor with lift access
- Residents allocated parking space
- Open plan living room and kitchen with river views
- Generous balcony with direct river views
- Bathroom and en-suite shower room
- Walking distance to rochester train station - 36 minutes to st pancras
- Riverside walks, close to historic high street and onsite shops and costa
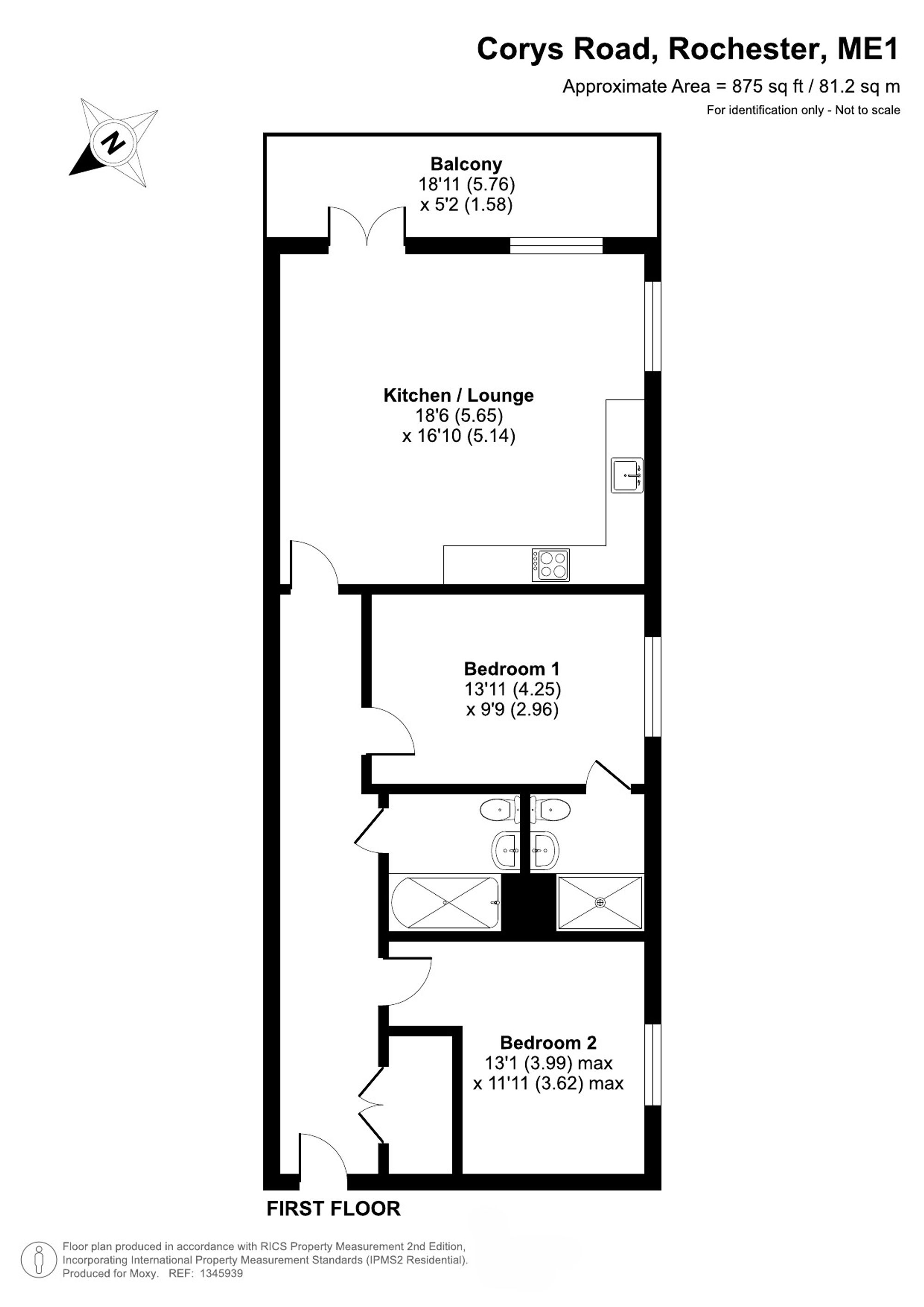
- 875 sq ft corner apartment + 18ft x 5ft balcony
Full Details:
Commuters paradise! Just a few minutes walk to Rochester Train Station and with high speed, direct links into London in just 35 minutes, this two double bedroom, two bathroom apartment has allocated parking space and boasts direct river views from the 18ft x 5ft private and covered balcony.
Positioned on a desirable corner plot on the first floor, it is flooded with natural light and finished with contemporary touches throughout. The spacious layout begins with an inviting entrance hall, complete with a large storage room and a separate utility cupboard for your washer/dryer keeping everyday essentials neatly tucked away so your living areas stay calm and clutter-free.
Both double bedrooms are airy and bright, with the principal bedroom enjoying its own private ensuite shower room.
The open-plan living space is thoughtfully designed, featuring a sleek kitchen equipped with integrated appliances such as oven, hob, fridge freezer, and dishwasher. This space flows effortlessly to a dedicated dining area and onward to the main living area, which opens through double doors to the balcony.
The standout feature is the covered balcony with views stretching towards the River Medway. Ideal for that first cup of coffee or an evening glass of wine, it’s your own outdoor escape to unwind and watch the world go by whatever the weather.
Location wise, it doesn’t get better. Rochester Train Station and the bustling High Street are just steps away, putting London within a 36-minute direct high speed train ride. Outside your door, riverside walks and beautifully landscaped communal gardens offer a peaceful contrast to the lively town centre-a green oasis for strolls, picnics, or simply soaking up the calm.
Historic Rochester High Street is moments away, brimming with independent boutiques, coffee shops, acclaimed restaurants, and beauty spots-all under the watchful eye of Rochester Castle and within earshot of the Cathedral bells.
Parking is simple with an allocated residents’ permit space, and if you’re heading further afield, you’re perfectly placed for the A2/M2. Bluewater shopping centre is just 25 minutes away, while Whistable’s charming coastline can be reached in under an hour.
EPC Grade B l Medway Council Tax Band C l 250 year lease from January 2019 l Service charge £2289.72 per annum - paid monthly at approximately £190 subject to review. Peppercorn ground rent. 1 x allocated residents parking space.
Property details are provided by the Vendor and should be verified by the buyer’s solicitor and surveyor. Tenure and material information is based on the Vendor’s input and must be confirmed independently. Fixtures, fittings, and appliances have not been tested, and no assurances are given. Buyers should not rely solely on this information when making a decision and should review the full title documents, local planning applications and seek independent legal advice for a full understanding of rights, covenants, and restrictions prior to exchange of contracts.
EPC Rating: B
Balcony (5.49m x 1.52m)
River views
Parking - Permit
Parking - Allocated Parking
Viewing & Disclaimer:
Please contact us on 01634 326036 if you wish to arrange a viewing appointment for this property, or require further information.
Energy Performance Certificate
Click here to view the Energy Efficiency Rating and Environmental Impact Rating for this property.
Moxy Property Consultants endeavour to maintain accurate depictions of properties in Virtual Tours, Floor Plans and descriptions, however, these are intended only as a guide and purchasers must satisfy themselves by personal inspection.
