Fulmar Road, Strood, Rochester, Kent. ME2
Summary:
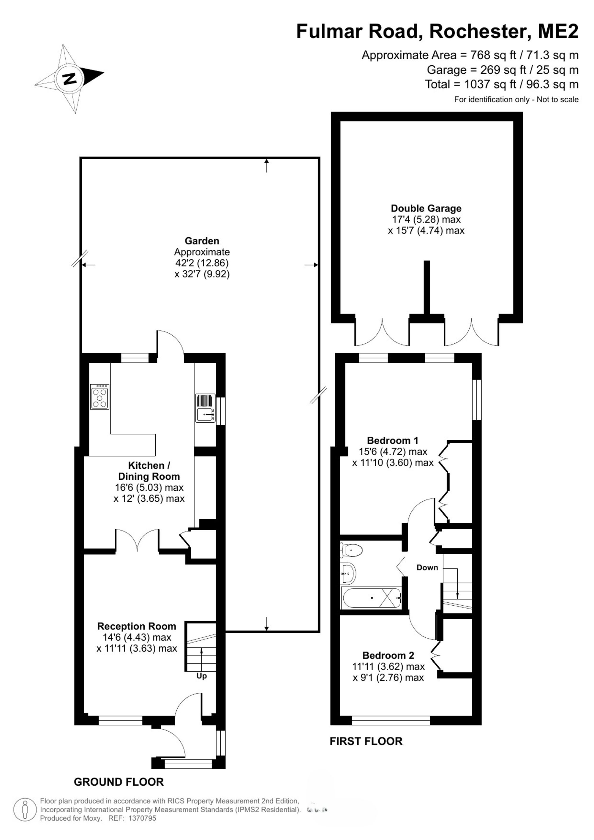
Two double bed end of terrace with two-storey extension and double garage on a corner plot. Features a large kitchen/diner, west-facing garden, and great potential. Prime location near amenities.
Key Features:
- Two double bedroom end of terrace home
- Double garage and rear access
- Deceptively large - step inside to see for yourself!
- Two storey extension and positioned on A generous corner plot
- First floor bathroom
- Front living room
- Spacious kitchen/diner with garden access
- West facing garden
Full Details:
Introducing an exceptional opportunity to acquire this larger than average two bedroom, end of terraced home that is truly deceptive with a two storey extension and double garage!
Perfectly positioned on a generously proportioned corner plot, this property offers a great deal of potential (stpp)
The ground floor comprises a welcoming front living room, perfect for relaxing and unwinding after a long day. Flowing seamlessly from the living area is the spacious kitchen/diner, featuring garden access - an ideal setting for hosting gatherings or enjoying intimate family meals.
The first floor has the two bedrooms and bathroom and here you can further see the full benefit of the two storey extension.
The west-facing wrap around garden contains the double garage and rear access.
Situated in a sought-after location, this property benefits from close proximity to local amenities, schools, and transport links, providing utmost convenience for day-to-day living.
Contact moxy today to book a viewing today and unlock the full potential of this remarkable property.
EPC Grade D | Medway Council Tax B
A transfer of the title dated 1964 contains covenants and restrictions. Historic extension registered 1989. All property details are provided by the Vendor and should be verified by the buyer’s solicitor and surveyor. Tenure and material information is based on the Vendor’s input and must be confirmed independently. Fixtures, fittings, and appliances have not been tested, and no assurances are given. Buyers should not rely solely on this information when making a decision and should review the full title documents, local planning applications and seek independent legal advice for a full understanding of rights, covenants, and restrictions prior to exchange of contracts.
EPC Rating: D
Parking - Double Garage
Viewing & Disclaimer:
Please contact us on 01634 326036 if you wish to arrange a viewing appointment for this property, or require further information.
Energy Performance Certificate
Click here to view the Energy Efficiency Rating and Environmental Impact Rating for this property.
Moxy Property Consultants endeavour to maintain accurate depictions of properties in Virtual Tours, Floor Plans and descriptions, however, these are intended only as a guide and purchasers must satisfy themselves by personal inspection.
