Goodwin Road, Cliffe Woods, Kent. ME3
Summary:
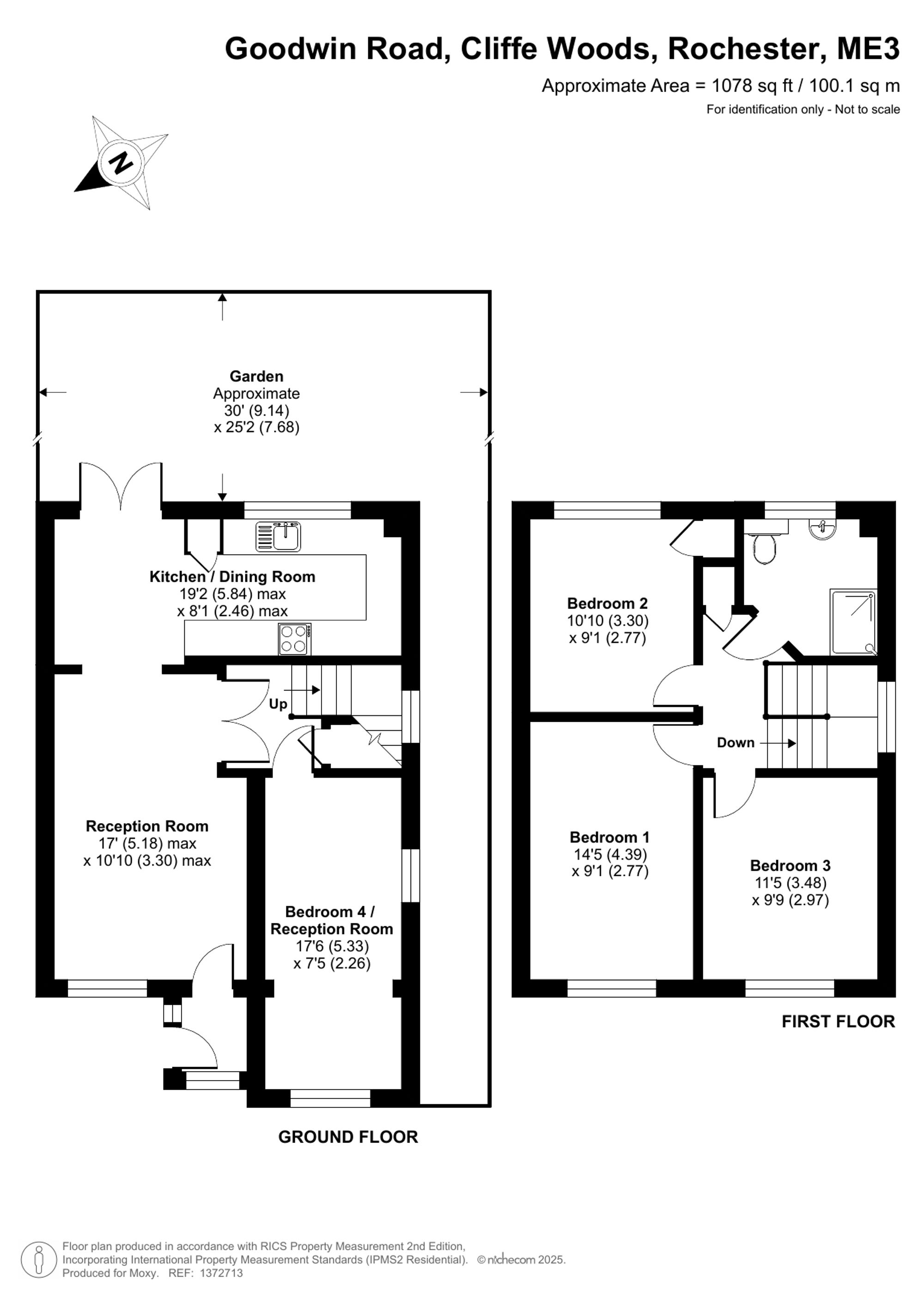
Moxy are delighted to present this beautifully maintained, versatile, three/four double bedroom, semi-detached residence, ideally located on the sought-after Goodwin Road in Cliffe Woods. This impressive home offers versatile and spacious accommodation, perfectly suited to modern family living, all within a peaceful village setting.
Key Features:
- Semi-detached residence
- Three/four versatile bedrooms
- Eat-in kitchen/diner
- Low maintenance rear garden
- Private drive
- Converted garage
- Move in ready
- No chain
- Semi-rural village location
- Must view
Full Details:
Moxy are delighted to present this beautifully maintained, versatile, three/four double bedroom, semi-detached residence, ideally located on the sought-after Goodwin Road in Cliffe Woods. This impressive home offers versatile and spacious accommodation, perfectly suited to modern family living, all within a peaceful village setting.
The property opens into a welcoming entrance porch leading to a cosy, well-proportioned lounge, providing the ideal space for relaxation and family time. To the rear, a stylish eat-in kitchen/diner forms the heart of the home, boasting modern fittings and ample room for both cooking and entertaining, with direct access to the rear garden. The garage has been converted to create a fourth ground floor bedroom, offering flexibility for growing families or even a second reception room to serve as a much needed home office.
Upstairs, the property features three generous double bedrooms. The contemporary family shower room is elegantly designed with high-quality fixtures and finishes
Externally, this home benefits from a low-maintenance rear garden, ideal for relaxing, entertaining, or enjoying summer evenings. To the front, a private driveway provides convenient off-road parking.
The property is offered to the market with no onward chain, allowing for a smooth and stress-free purchase.
Set within the popular and well-established village of Cliffe Woods, this property enjoys a tranquil yet well-connected location.
Families will appreciate the excellent educational options, including Cliffe Woods Primary School, which is highly regarded locally, and several outstanding secondary schools in nearby Rochester, such as Sir Joseph Williamson’s Mathematical School and Rochester Grammar School.
For commuters, Strood Train Station is just a short drive away, providing high-speed services to London St Pancras in under 40 minutes. The property also offers easy access to major road links, including the A228, A289, and M2 motorway, connecting you swiftly to Rochester, Maidstone, and London.
Cliffe Woods is surrounded by beautiful countryside and woodland walks, making it ideal for those who love the outdoors. The nearby Hoo Peninsula and Cliffe Pools Nature Reserve provide scenic spots for walking, cycling, and birdwatching, while still being only a short drive from larger shopping and leisure facilities in Strood and Rochester.
This exceptional property combines modern comfort, flexible living space, and the peaceful charm of village life, making it a perfect choice for families, professionals, or those seeking a more relaxed pace without sacrificing convenience.
Call Moxy Property Consultants to arrange your private tour!
Freehold
medway council tax
council tax band C
chain free
EPC Rating: D
Viewing & Disclaimer:
Please contact us on 01634 326036 if you wish to arrange a viewing appointment for this property, or require further information.
Energy Performance Certificate
Click here to view the Energy Efficiency Rating and Environmental Impact Rating for this property.
Moxy Property Consultants endeavour to maintain accurate depictions of properties in Virtual Tours, Floor Plans and descriptions, however, these are intended only as a guide and purchasers must satisfy themselves by personal inspection.
