Graveney Close, Cliffe Woods, Kent. ME3
Summary:
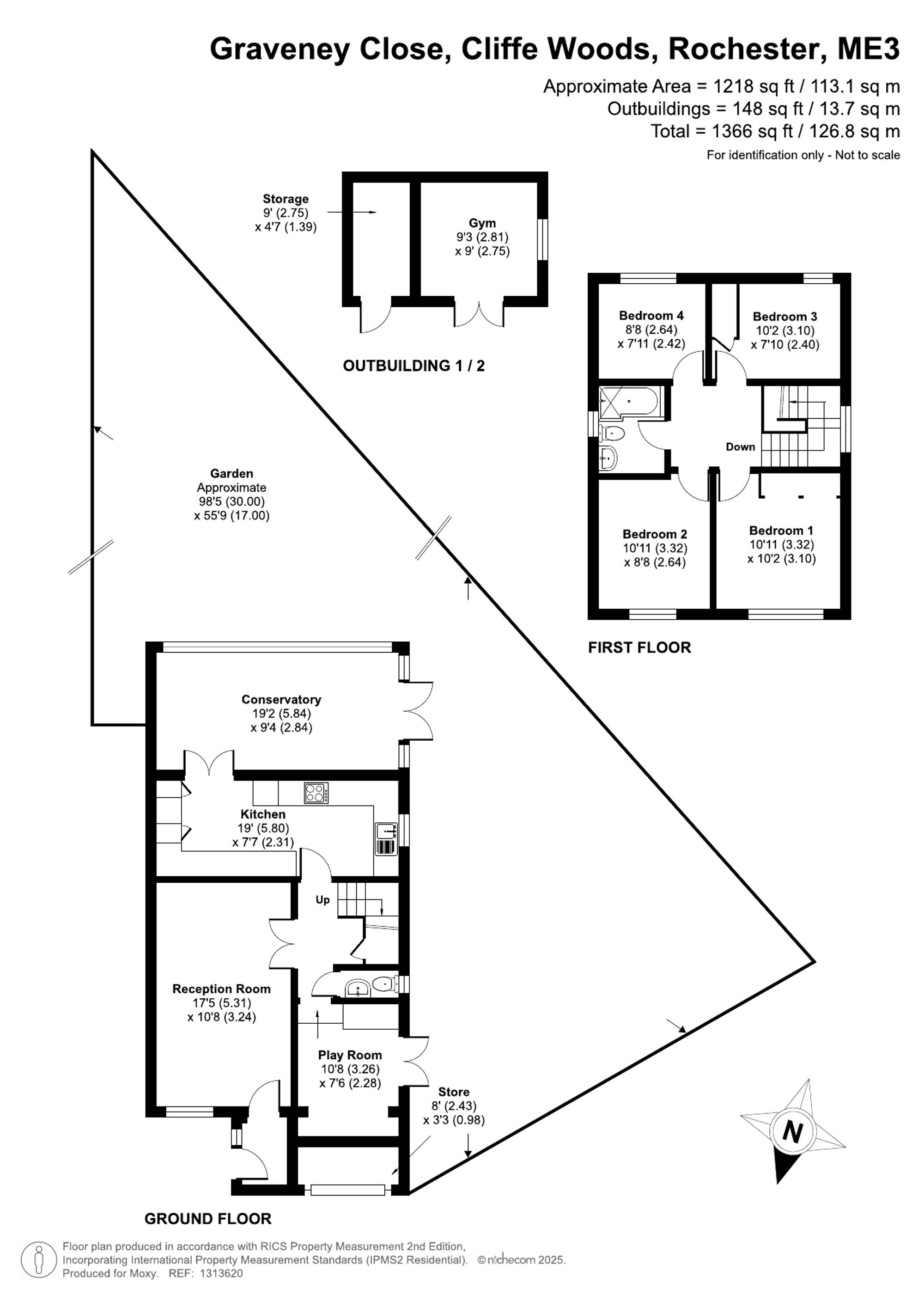
Nestled in a tranquil cul-de-sac within a semi-rural village location, this exceptional 4-bedroom detached residence presents a unique opportunity for those seeking a spacious and versatile family home. The property offers a perfect blend of comfortable living spaces, modern amenities, and potential for further enhancement, subject to obtaining the necessary planning permissions.
Key Features:
- Detached residence
- Four bedrooms
- Sizeable south facing rear garden
- Versatile home office/play room
- Flexible out-building and outdoor pergola
- Private drive and garage
- Opportunity to extend STPP
- Tranquil cul-de-sac location backing onto the woods
- Semi-rural village location
- Chain free
Full Details:
Nestled in a tranquil cul-de-sac within a semi-rural village location, this exceptional 4-bedroom detached residence presents a unique opportunity for those seeking a spacious and versatile family home. The property offers a perfect blend of comfortable living spaces, modern amenities, and potential for further enhancement, subject to obtaining the necessary planning permissions.
Upon entering this detached residence, one is greeted by a welcoming ambience that flows throughout the well-appointed rooms. The cosy lounge with fitted projector makes the ideal spot to relax and unwind with the family to a film after a long day. The contemporary kitchen is located at the rear of the property and offers an array of storage options. The garden room with a feature log-burner is flexible in its use and offers fantastic views to the rear, an ideal spot for those that like to bring the outdoors in. With an additional reception room the property offers versatility for a playroom/home office. If that wasn’t enough the property benefits from a ground floor W/C.
As you ascend to the top-floor you will find four versatile bedrooms that suit a growing family. All four bedrooms are serviced by the neutrally decorated family bathroom with three-piece suite.
Externally and the wow factor of this home, the property features a south-facing rear garden, offering a tranquil outdoor space to enjoy the fresh air and relax in a peaceful setting. Mainly laid to lawn with both patio and decking area the property caters for all the family. Additionally, a private drive provides convenient ensuring practicality and parking for all the family. The flexible out-building and outdoor pergola offer additional possibilities for customisation or storage, catering to a range of lifestyle and leisure needs.
Positioned in a serene enclave backing onto the woods, residents can enjoy the tranquillity of nature while still benefiting from easy access to nearby amenities and transport links.
Convenience is key with a private drive and garage providing secure parking and storage options.
Those with a discerning eye for potential will appreciate the opportunity to extend the property further, subject to the appropriate planning permissions, enabling the creation of a truly bespoke living space tailored to individual requirements.
The property's chain-free status adds to its appeal, offering a straightforward transaction process for prospective buyers.
Being at the heart of Cliffe Woods Village this property gives perfect balance between rural living and the convenience of larger surrounding towns with the backup of motorway access. All the peace, quiet and tranquillity you would expect from a village lifestyle but just a short journey in the car is Strood town centre offering a selection of major brand supermarkets, convenience stores and a main line train station with the high speed option.
Call Moxy Property Consultants to arrange your private tour!
Freehold
medway council tax
council tax band D
chain free
EPC Rating: D
Viewing & Disclaimer:
Please contact us on 01634 326036 if you wish to arrange a viewing appointment for this property, or require further information.
Energy Performance Certificate
Click here to view the Energy Efficiency Rating and Environmental Impact Rating for this property.
Moxy Property Consultants endeavour to maintain accurate depictions of properties in Virtual Tours, Floor Plans and descriptions, however, these are intended only as a guide and purchasers must satisfy themselves by personal inspection.
