Higham Road, Cliffe, Kent. ME3
Summary:
Chain free! Moxy are delighted to present this exquisite, two double bedroom, mid-terrace residence situated in a semi-rural village location, boasting a serene and picturesque setting. This property offers an ideal opportunity for first-time buyers or investors looking to expand their property portfolio.
Key Features:
- Mid-terrace residence
- Two double bedrooms
- Two reception rooms
- Low maintenance, south-facing rear garden
- Meticulously maintained through-out
- Extended
- Garage to the rear
- Chain free
- Semi-rural village location
- Must view
Full Details:
Chain free! Moxy are delighted to present this exquisite, two double bedroom, mid-terrace residence situated in a semi-rural village location, boasting a serene and picturesque setting. This property offers an ideal opportunity for first-time buyers or investors looking to expand their property portfolio.
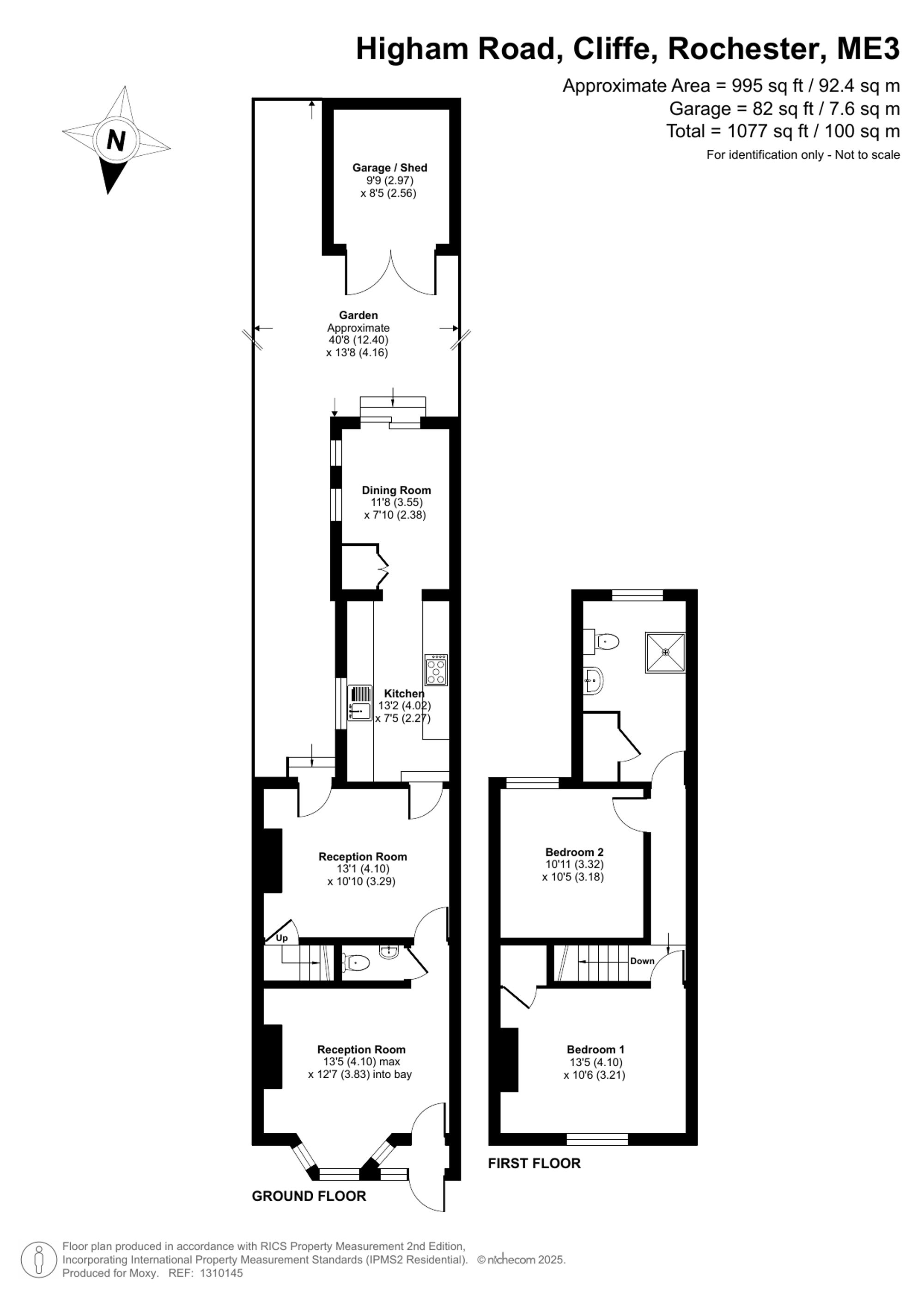
Upon entering the property, you are greeted by the convenance of a porch, ideal storage for all your coats and shoes. The separate lounge and dining room exude warmth whilst providing a perfect space for relaxation, dining and entertainment. A well-appointed separate kitchen featuring modern appliances can be located at the rear of the property. If that wasn’t enough the property has been extended at the rear and offers the convenience of a further third, versatile, reception room making an ideal office area or even somewhere to sit and enjoy your morning coffee. If that wasn’t enough the property has the added benefit of a ground floor W/C.
Ascending to the first floor you will find two generously sized bedrooms, offering ample space for comfort and privacy. The contemporary family bathroom with it a three-piece shower suite has been tastefully upgraded and services both bedrooms.
Additionally, a sizeable, south-facing, low-maintenance rear garden offers a sanctuary for outdoor activities, providing a perfect space for relaxation and alfresco dining. Enhancing the appeal of this property is a garage located at the rear of the property, perfect for storage options.
The property's location in a semi rural village provides a peaceful and picturesque setting, offering a sense of escape from the hustle and bustle of city life. With stunning views and tranquil walks, residents can truly enjoy the beauty of the surrounding countryside.
Cliffe is a thriving rural village with local facilities, doctor and a local outstanding Ofsted primary school up the road. The City of Rochester and town of Strood offer further shopping facilities together with high speed trains into major London Railway Stations with good road links to the A2/M2 and the M25 motorways.
In summary, this 2-bedroom mid-terrace property represents a unique opportunity to own a stunning residence in a sought-after location. Offering comfort, style, and convenience, this property is an ideal choice for both first-time buyers and investors alike.
Call Moxy Property Consultants to arrange your private tour!
Freehold
medway council tax
council tax band B
EPC Rating: D
Viewing & Disclaimer:
Please contact us on 01634 326036 if you wish to arrange a viewing appointment for this property, or require further information.
Energy Performance Certificate
Click here to view the Energy Efficiency Rating and Environmental Impact Rating for this property.
Moxy Property Consultants endeavour to maintain accurate depictions of properties in Virtual Tours, Floor Plans and descriptions, however, these are intended only as a guide and purchasers must satisfy themselves by personal inspection.
