Higham Road, Wainscott, Rochester, Kent. ME3
Summary:
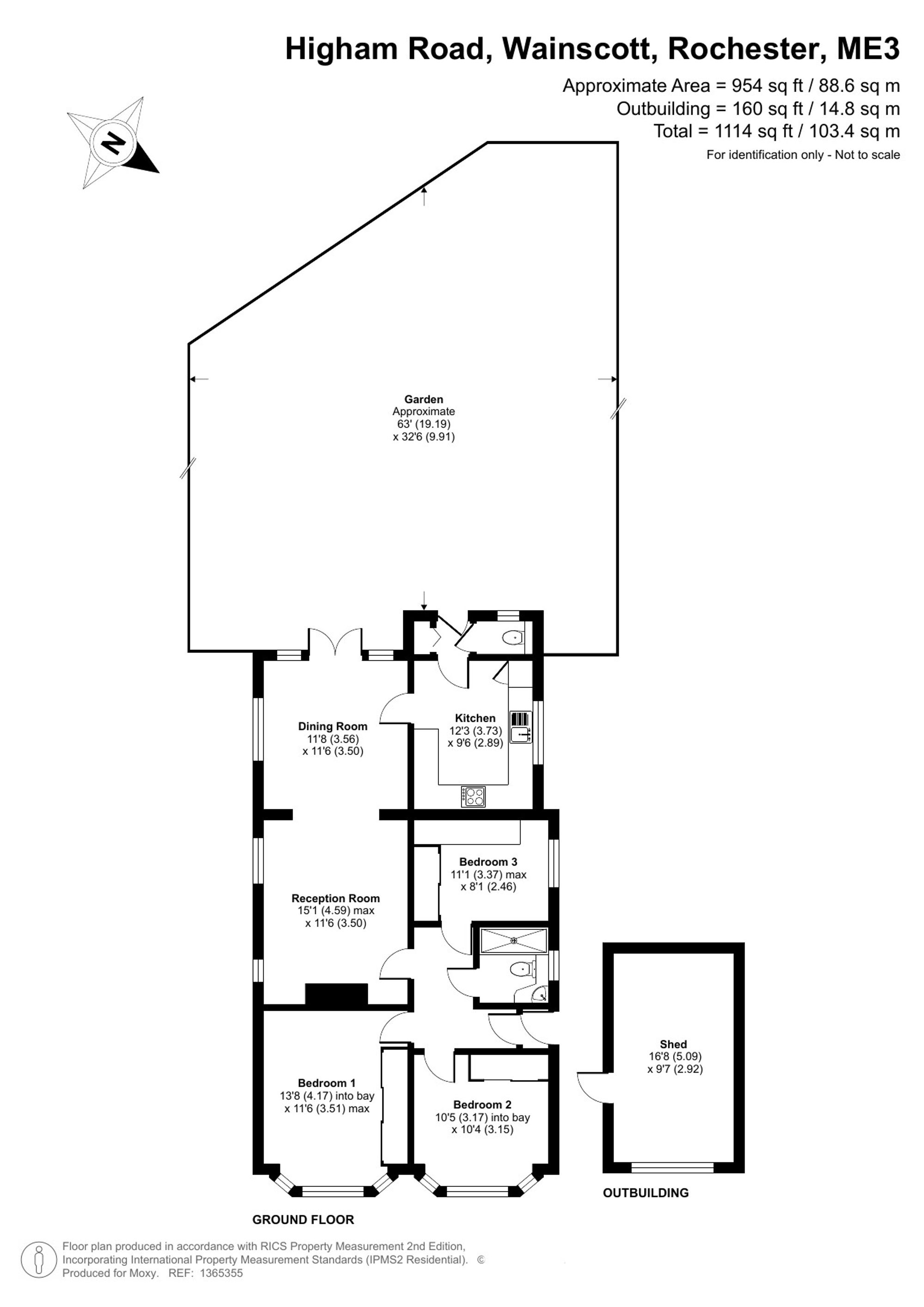
A three bedroom detached bungalow in Wainscott. Features a 25ft open-plan living/dining room, modern kitchen, shower room, 60ft garden and driveway. Close to schools, shops and road links to A2/M2.
Key Features:
- Detached bungalow on A generous plot
- Three bedrooms and shower room
- Fitted kitchen with garden views and access
- 25ft open plan living/dining room
- South west facing 60ft rear garden with outbuilding and shed
- Sizeable front driveway
- Brand new boiler fitted may 2025
- Walking distance to local schools and shops
- Potential for extending (STP)
- Easy access main road links to A2/M2
Full Details:
A three bedroom, detached bungalow on a generous plot in the sought after village of Wainscott and within walking distance to local schools and shops.
The heart of this home is the impressive 25ft open plan living/dining room with double doors opening into the rear garden. From the dining area, step into the fitted kitchen with units, work tops and a back porch with a guest WC and further access to the garden. There is also a good size shower room which is modern and bright and a brand new boiler fitted in May 2025 to put your mind at ease.
Step outside to discover the south west facing and approx. 60ft traditional rear garden, offering a tranquil retreat with patio area, lawn and mature plants and trees. This garden is ideal for buyers wanting to have a private outdoor space to enjoy and for those with hobbies or tools as there is a shed that will remain and an existing garage that is an ideal workshop or storage for bikes etc.
The property boasts a sizeable front driveway providing ample parking space for residents and guests. With easy access to main road links leading to A2/M2, commuting is a breeze.
This lovely home has a great flow to it already but also offers potential for buyers looking to create their own space and make this their forever home.
Contact moxy today and arrange your viewing!
EPC Grade E prior to the new boiler installation | Medway Council Tax D
A Conveyance dated 11 August 1937 contains restrictive covenants. All property details are provided by the Vendor and should be verified by the buyer’s solicitor and surveyor. Tenure and material information is based on the Vendor’s input and must be confirmed independently. Fixtures, fittings, and appliances have not been tested, and no assurances are given. Buyers should not rely solely on this information when making a decision and should review the full title documents, local planning applications and seek independent legal advice for a full understanding of rights, covenants, and restrictions prior to exchange of contracts.
EPC Rating: E
Garden (18.29m x 9.75m)
Parking - Driveway
Viewing & Disclaimer:
Please contact us on 01634 326036 if you wish to arrange a viewing appointment for this property, or require further information.
Energy Performance Certificate
Click here to view the Energy Efficiency Rating and Environmental Impact Rating for this property.
Moxy Property Consultants endeavour to maintain accurate depictions of properties in Virtual Tours, Floor Plans and descriptions, however, these are intended only as a guide and purchasers must satisfy themselves by personal inspection.
