Hilltop Road, Rochester, Kent. ME2
Summary:
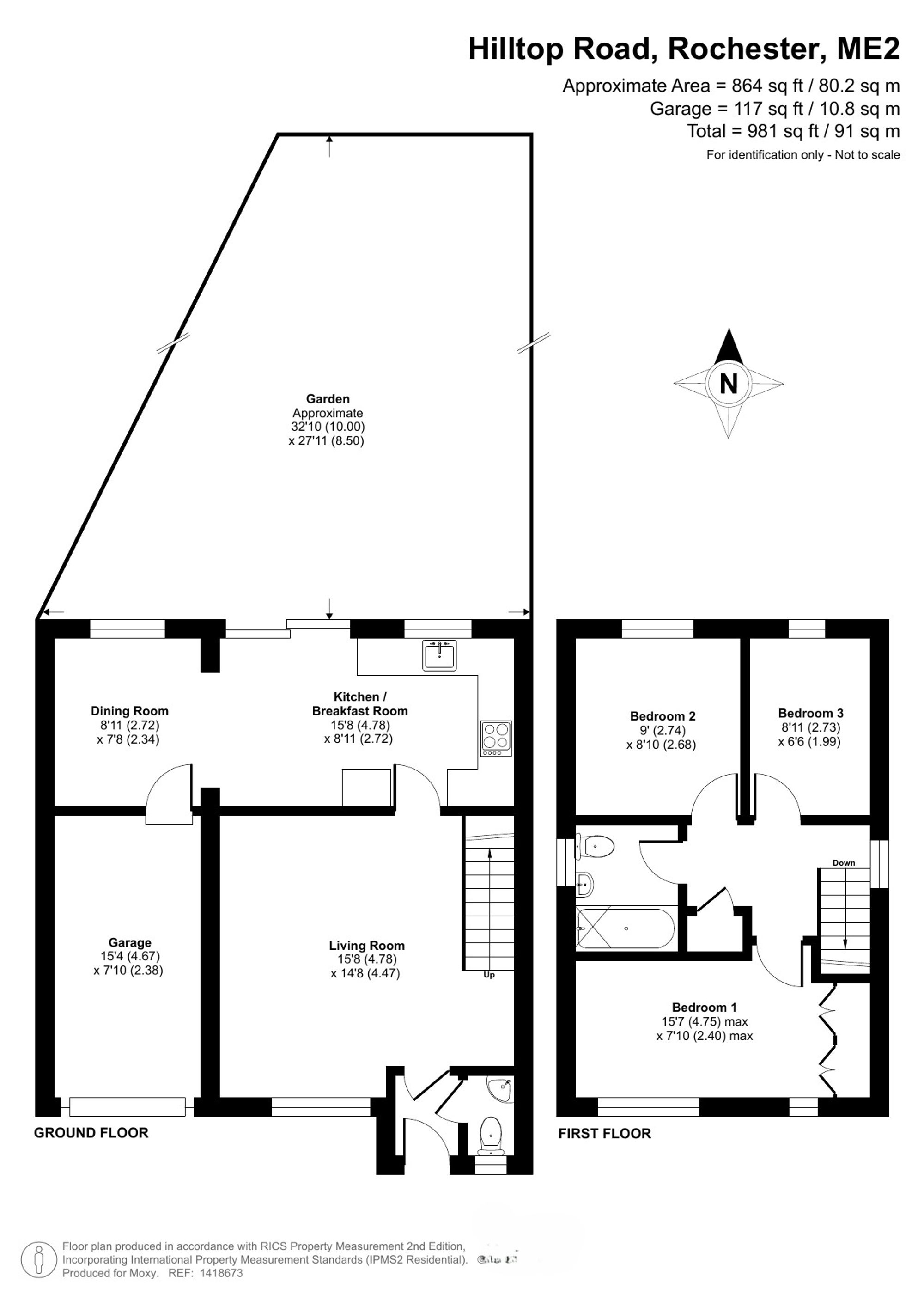
A three bed link-detached home with spacious lounge, open-plan kitchen/diner to garden, modern bathroom, integral garage, near schools, Strood station, 32-min London links. Contact moxy now.
Key Features:
- Link detached home
- Three bedrooms
- Garage
- Generous open plan kitchen/diner with garden access
- Front living room
- First floor bathroom and ground floor guest WC
- Walking distance to schools
- Central location for road links and bus routes
- Easy access to strood train station
- Strood to london high-speed links in just 32 minutes
Full Details:
This three bedroom, link detached house offers an excellent opportunity for buyers seeking a comfortable and conveniently located home.
The property features a spacious front living room and a generous open plan kitchen and dining area with direct access to the garden and internal access to the garage providing a practical and sociable space for family meals or gatherings.
Upstairs, you will find three well proportioned bedrooms and bathroom, ensuring ample accommodation for all members of the household.
The home also benefits from the added convenience of an integral garage, perfect for secure parking or additional storage.
The rear garden is a well maintained space to enjoy all year round and with side access, lawn area and patio whether you are a keen gardener or love to sit and chill then this garden is for you.
Situated within close proximity of Hilltop Primary school and in a restricted driving zone area resulting in keeping the area less busy during school drop off times this property is well suited for buyers wanting a central location whilst with excellent road links and easy access to local bus routes.
Commuters will appreciate the proximity to Strood train station, which provides high-speed rail connections to London in just 32 minutes, making this an ideal base for those who need to travel regularly for work.
With a practical layout, modern interiors, and a sought-after location, this link detached home represents a rare opportunity to acquire a property that combines comfort, convenience, and excellent transport links.
Viewing is highly recommended to fully appreciate all that this attractive home has to offer.
Medway Council Tax Band D | EPC Grade C | Freehold
A transfer in the title contains covenants to observe. All property details are provided by the Vendor and should be verified by the buyer’s solicitor and surveyor. Tenure and material information is based on the Vendor’s input and must be confirmed independently. Fixtures, fittings, and appliances have not been tested, and no assurances are given. Buyers should not rely solely on this information when making a decision and should review the full title documents, local planning applications and seek independent legal advice for a full understanding of rights, covenants, and restrictions prior to exchange of contracts.
EPC Rating: C
Parking - Garage
Viewing & Disclaimer:
Please contact us on 01634 326036 if you wish to arrange a viewing appointment for this property, or require further information.
Energy Performance Certificate
Click here to view the Energy Efficiency Rating and Environmental Impact Rating for this property.
Moxy Property Consultants endeavour to maintain accurate depictions of properties in Virtual Tours, Floor Plans and descriptions, however, these are intended only as a guide and purchasers must satisfy themselves by personal inspection.
