Register Saved Properties |
 
15

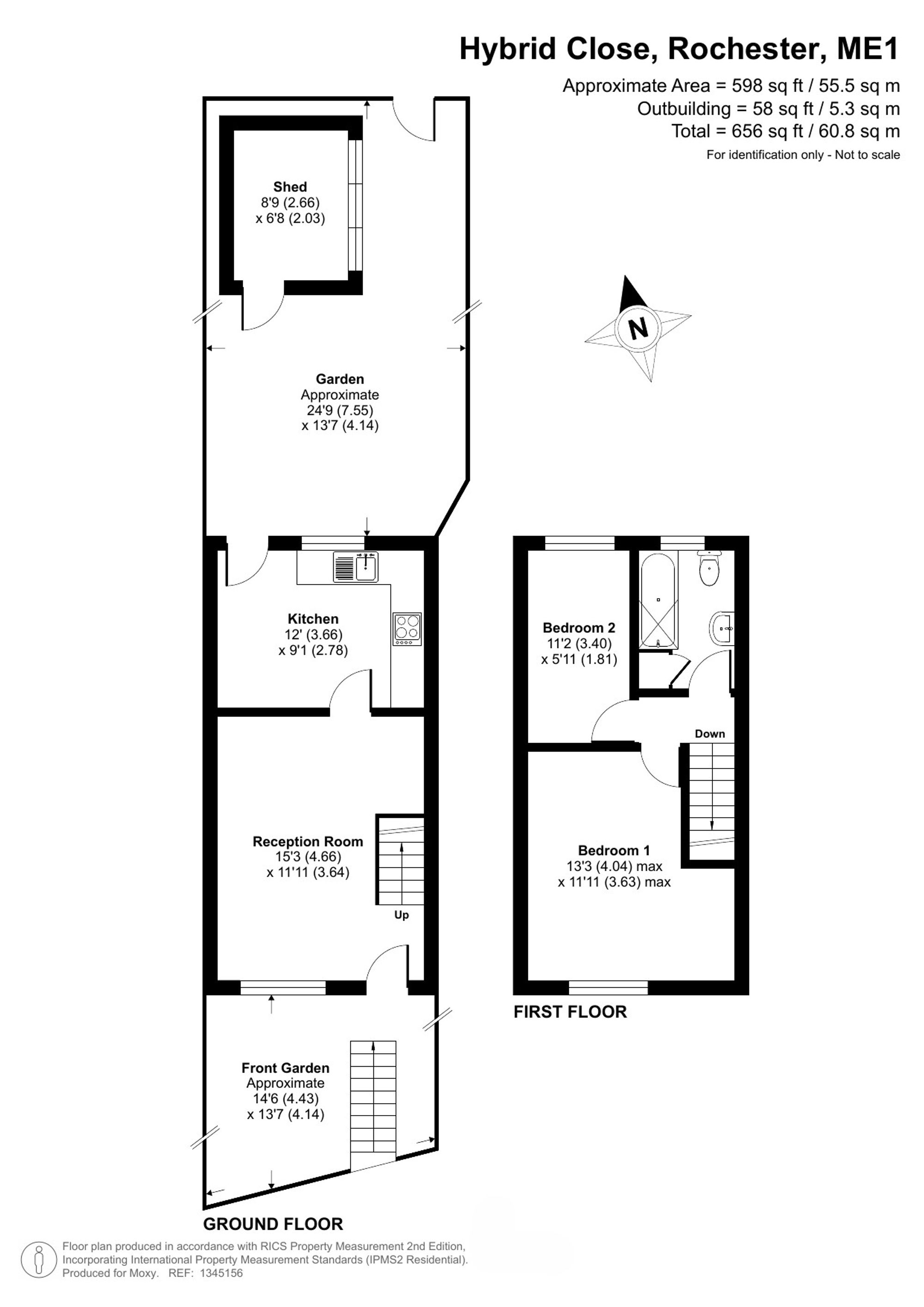
Hybrid Close, Rochester, Kent. ME1

SSTC
Offers over £250,000
2 bedrooms, 1 bathrooms, 1 receptions

Summary:


No forward chain - This two bedroom, end of terrace, freehold property in a prime Rochester location offers an excellent opportunity for buyers looking for a well-connected and practical home. The layout is well thought through with a spacious front living room providing a comfortable setting for relaxation kitchen with dining area that opens directly onto the rear garden, creating a functional space for everyday living. Top tick all your boxes, it even has an allocated parking space. The location provides easy access to Rochester High Street on foot, along with convenient bus routes and quick connections to the M2 and A2. Rochester train station is within reach, offering direct high-speed links to London in approximately 35 minutes, making this an attractive option for commuters. The rear garden offers a private outdoor area that can be adapted to suit individual preferences, whether for entertaining, gardening, or simply enjoying some fresh air. This property is well suited to first-time buyers and investors who want to own a home in a sought-after location. EPC Grade C l Medway Council Tax Band B Property details are provided by the Vendor and should be verified by the buyer’s solicitor and surveyor. Tenure and material information is based on the Vendor’s input and must be confirmed independently. Fixtures, fittings, and appliances have not been tested, and no assurances are given. Buyers should not rely solely on this information when making a decision and should review the full title documents, local planning applications and seek independent legal advice for a full understanding of rights, covenants, and restrictions prior to exchange of contracts. EPC Rating: CParking - Allocated Parking


Key Features:

  • No forward chain
  • End of terrace freehold property
  • Allocated parking space
  • Two bedrooms
  • Kitchen / diner with garden access
  • Rear garden
  • Living room
  • Ideal for first time buyers or investors / landlords
  • Walking distance to rochester high street and easy access to bus routes and M2/A2
  • Direct high speed links to london from rochester train station in just 35 minutes


Full Details:




No forward chain - This two bedroom, end of terrace, freehold property in a prime Rochester location offers an excellent opportunity for buyers looking for a well-connected and practical home.

The layout is well thought through with a spacious front living room providing a comfortable setting for relaxation kitchen with dining area that opens directly onto the rear garden, creating a functional space for everyday living.

Top tick all your boxes, it even has an allocated parking space.

The location provides easy access to Rochester High Street on foot, along with convenient bus routes and quick connections to the M2 and A2. Rochester train station is within reach, offering direct high-speed links to London in approximately 35 minutes, making this an attractive option for commuters.

The rear garden offers a private outdoor area that can be adapted to suit individual preferences, whether for entertaining, gardening, or simply enjoying some fresh air. This property is well suited to first-time buyers and investors who want to own a home in a sought-after location.

EPC Grade C l Medway Council Tax Band B

Property details are provided by the Vendor and should be verified by the buyer’s solicitor and surveyor. Tenure and material information is based on the Vendor’s input and must be confirmed independently. Fixtures, fittings, and appliances have not been tested, and no assurances are given. Buyers should not rely solely on this information when making a decision and should review the full title documents, local planning applications and seek independent legal advice for a full understanding of rights, covenants, and restrictions prior to exchange of contracts.

EPC Rating: C

Parking - Allocated Parking




Viewing & Disclaimer:


Please contact us on 01634 326036 if you wish to arrange a viewing appointment for this property, or require further information.

Energy Performance Certificate
Click here to view the Energy Efficiency Rating and Environmental Impact Rating for this property.


Moxy Property Consultants endeavour to maintain accurate depictions of properties in Virtual Tours, Floor Plans and descriptions, however, these are intended only as a guide and purchasers must satisfy themselves by personal inspection.

 
Free instant online valuation


IE8 Alert! Cookie Alert!

To get the best possible experience using our website we recommend you upgrade to a modern web browser. More info