Iden Road, Rochester, Kent. ME2
Summary:
No forward chain - Two bedroom, semi-detached bungalow with driveway, garage and scope to upgrade. Two receptions, kitchen to garden, near schools, shops and fast London links.
Key Features:
- Two bedrooms
- Semi-detached bungalow
- Driveway and garage
- Near hilltop school and excellent links to M2/A2
- West facing rear garden
- No forward chain
- Move with moxy
Full Details:
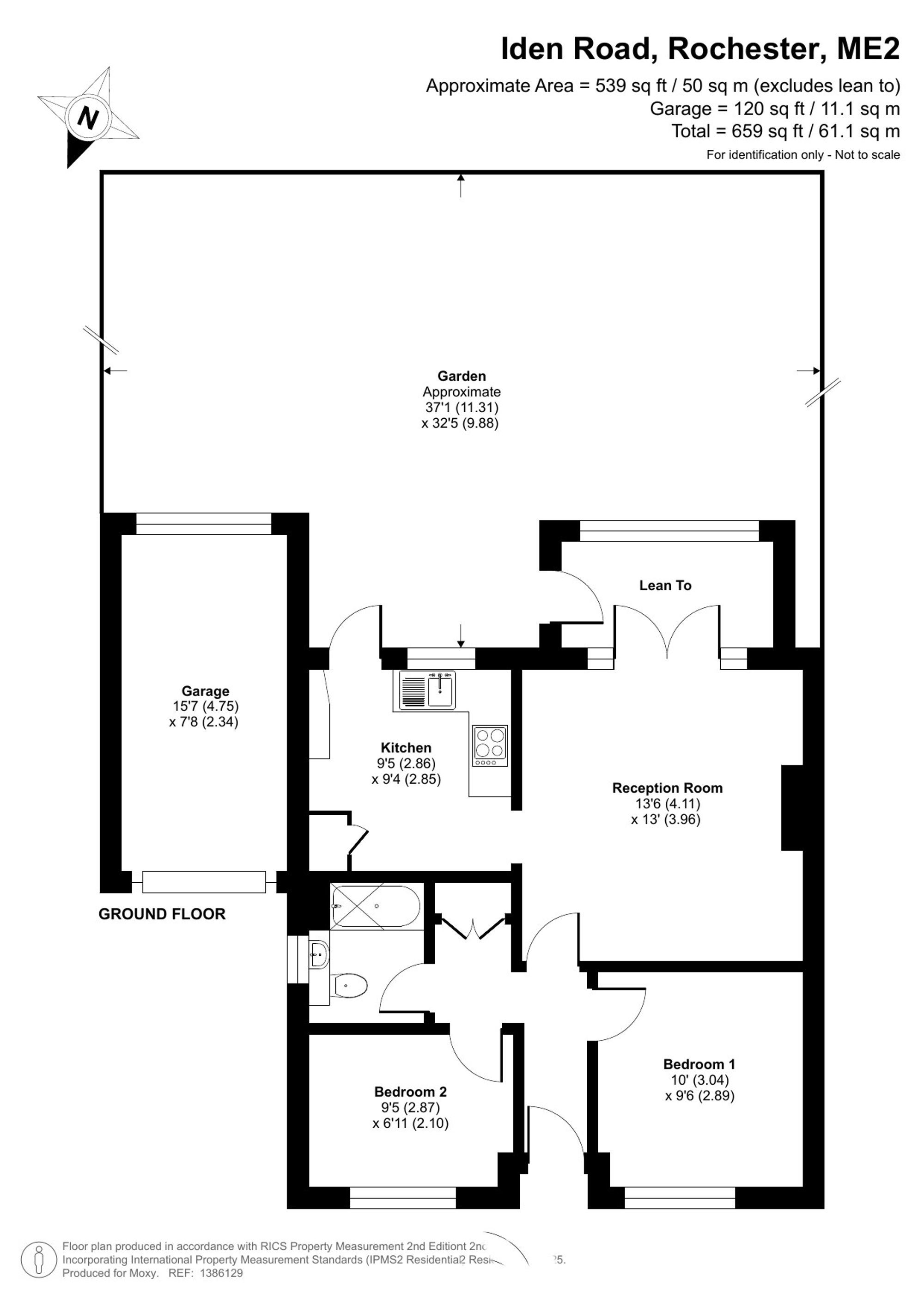
No forward chain - Located in a desirable location, this two bedroom, semi-detached bungalow offers lots of potential for any buyer looking to make their own stamp on a property.
Rarely available and on a good plot this property also includes a private driveway and garage, providing secure parking and useful storage.
Inside, the accommodation is arranged to suit a variety of needs all on the ground floor level featuring two reception rooms, a separate kitchen with garden access and the two double bedrooms.
Families will appreciate the proximity to Hilltop School, while there are many shopping opportunities around the Medway Towns as well as Bluewater and Hempstead Valley both within a short driving distance and easily accessed via M2/A2. Strood Train station is also close by providing direct and high-speed links into London in less than 40 minutes.
Contact moxy today to arrange your viewing and come and see what you can do to make this your perfect home!
Freehold | EPC grade D | medway council tax band D
A Transfer of the land in this title dated 2 October 1961 contains restrictive covenants. Property details are provided by the Vendor and should be verified by the buyer’s solicitor and surveyor. Tenure and material information is based on the Vendor’s input and must be confirmed independently. Fixtures, fittings, and appliances have not been tested, and no assurances are given. Buyers should not rely solely on this information when making a decision and should review the full title documents, local planning applications and seek independent legal advice for a full understanding of rights, covenants, and restrictions prior to exchange of contracts.
EPC Rating: D
Parking - Garage
Parking - Driveway
Viewing & Disclaimer:
Please contact us on 01634 326036 if you wish to arrange a viewing appointment for this property, or require further information.
Energy Performance Certificate
Click here to view the Energy Efficiency Rating and Environmental Impact Rating for this property.
Moxy Property Consultants endeavour to maintain accurate depictions of properties in Virtual Tours, Floor Plans and descriptions, however, these are intended only as a guide and purchasers must satisfy themselves by personal inspection.
