Iden Road, Strood, Rochester, Kent. ME2
Summary:
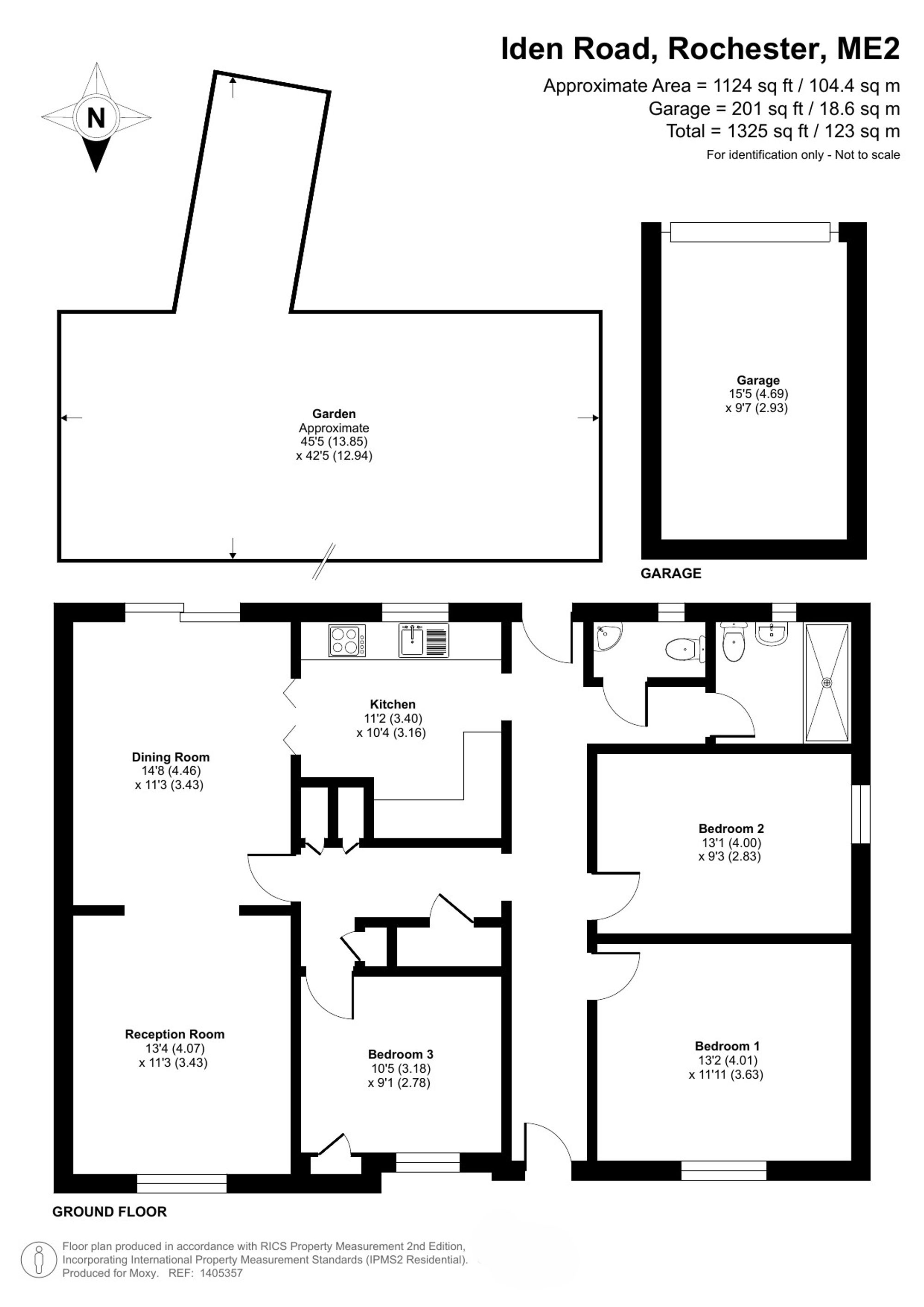
Three bedroom, semi-detached bungalow on a generous corner plot, with over 1,100 sq ft of flexible living space, a south-facing garden, driveway, garage, solar panels and energy-efficient upgrades.
Key Features:
- Extended, semi-detached bungalow on A substantial corner plot
- Three double bedrooms + two reception areas
- Driveway for three cars + garage
- Shower room and guest WC
- Separate fitted kitchen with garden views
- Over 1,100 sq ft of living space
- South facing garden with artificial lawn
- Solar panels- generated over £700 in 2025
- Boiler installed 2024 + serviced Jan 2026
- EPC C
Full Details:
Sold by moxy (stc) Set on a generous corner plot in a popular residential area, this three bedroom semi-detached bungalow offers over 1,100 sq ft of adaptable living space that works just as well for everyday life as it does for hosting friends and family.
Inside, the layout is refreshingly flexible. Three well-sized double bedrooms provide plenty of room to unwind, while two reception rooms allow you to shape the space around how you live, whether that’s relaxed evenings, entertaining, or working from home.
A modern shower room is paired with a separate WC, and the kitchen is practical, well laid out, and ready for busy days.
Energy saving upgrades add real value. We have been advised by the current owners that the Solar panels generated over £700 in 2025, helping keep running costs down, while a newly installed boiler in 2024 serviced in January 2026, ensures reliable, efficient heating. With an EPC rating of C, the home balances comfort with sensible energy performance.
Outside is where this property really stands out. The south-facing garden enjoys sun throughout the day and offers a private, peaceful setting for dining, gardening, or simply switching off.
The well positioned garage opens up endless possibilities from storage to a workshop or hobby space, whilst the driveway provides off-road parking with the vendors comfortably parking three cars.
The corner plot gives a real sense of breathing room, with artificial lawn, and enclosed borders creating privacy and a welcoming feel. There’s also clear potential to reimagine or extend the space, subject to the usual permissions.
A home that offers space, flexibility, and standout outdoor features, this is one that needs to be seen to be fully appreciated so contact moxy today to arrange your viewing.
Medway Council Tax D | EPC Grade C | Freehold
Property details are provided by the Vendor and should be verified by the buyer’s solicitor and surveyor. Tenure and material information is based on the Vendor’s input and must be confirmed independently. Fixtures, fittings, and appliances have not been tested, and no assurances are given. Buyers should not rely solely on this information when making a decision and should review the full title documents, local planning applications and seek independent legal advice for a full understanding of rights, covenants, and restrictions prior to exchange of contracts.
EPC Rating: C
Parking - Garage
Parking - Driveway
Viewing & Disclaimer:
Please contact us on 01634 326036 if you wish to arrange a viewing appointment for this property, or require further information.
Energy Performance Certificate
Click here to view the Energy Efficiency Rating and Environmental Impact Rating for this property.
Moxy Property Consultants endeavour to maintain accurate depictions of properties in Virtual Tours, Floor Plans and descriptions, however, these are intended only as a guide and purchasers must satisfy themselves by personal inspection.
