Jarrett Avenue, Wainscott, Rochester, Kent. ME2
Summary:
A three bedroom, semi-detached home with open-plan living, modern kitchen, versatile garden room and front driveway. Variety of schools nearby and excellent commuter links. Contact moxy.
Key Features:
- Three bedroom semi-detached home
- Front driveway and porch
- Downstairs guest WC
- Open plan, dual aspect living and dining room
- Separate kitchen with garden views
- Three first floor bedrooms
- First floor bathroom
- Large and sunny aspect garden south east facing with side access
- Existing garage converted to useful garden room
- Easy access to train station, nearby schools + main road links to M2/M2
Full Details:
Moxy presents this three bedroom, semi-detached home ideally situated for buyers seeking comfort, convenience, and versatile accommodation.
Upon entering, you are welcomed by a practical porch, providing a useful buffer from the elements and a space for coats and shoes.
The front driveway offers off road parking for at least one car, ensuring ease of access for residents and visitors alike.
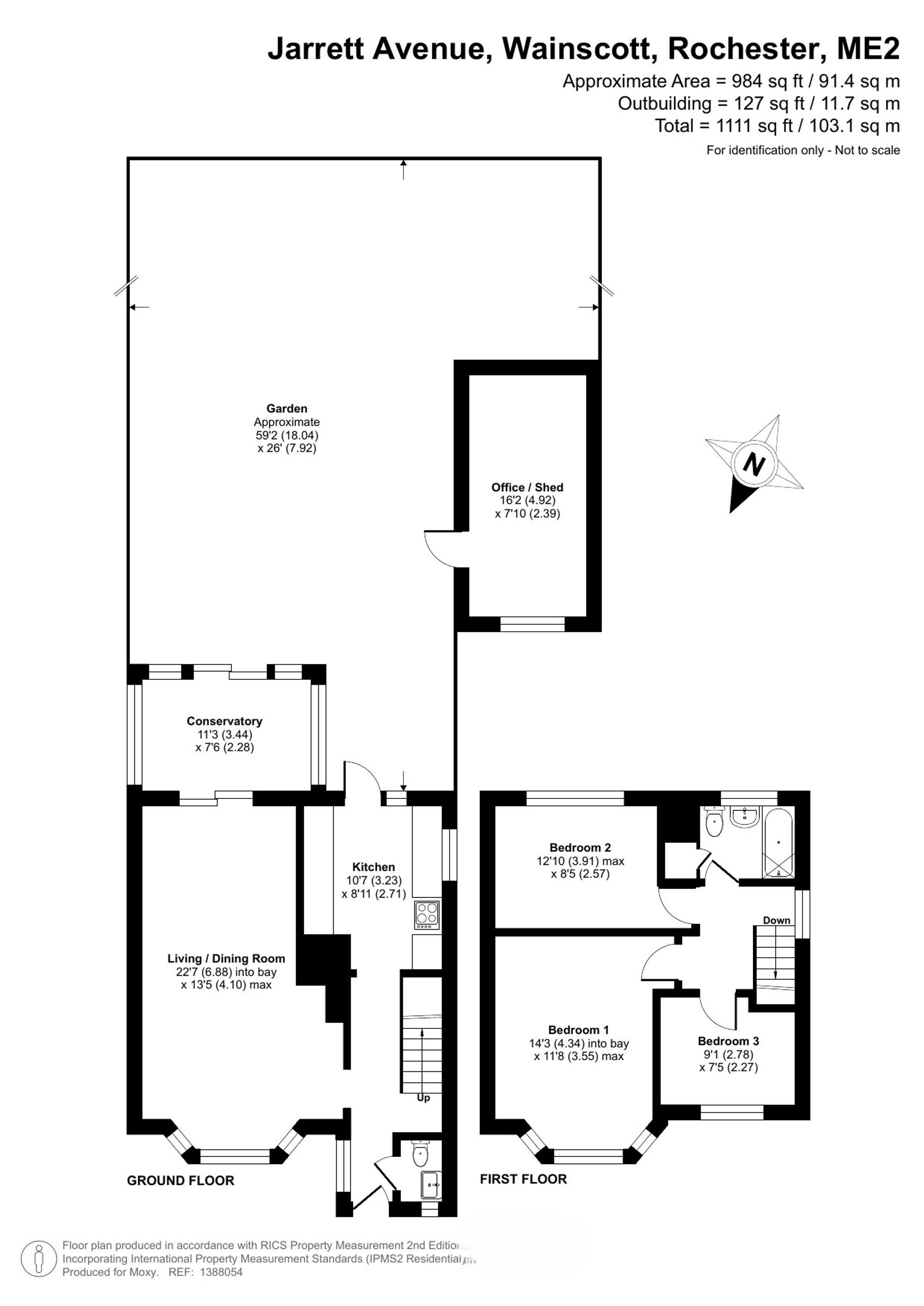
The ground floor features a thoughtfully designed layout, beginning with a spacious open plan living and dining room. This dual aspect space benefits from an abundance of natural light, creating a bright and inviting atmosphere that is perfect for both relaxing and entertaining. The generous proportions of this room allow for flexible furniture arrangements, accommodating both family gatherings and quiet evenings at home.
Adjacent to the living area, the separate kitchen enjoys pleasant views over the rear garden. The kitchen is well-appointed with ample storage and worktop space, making meal preparation a pleasure. A downstairs guest WC adds further practicality to the ground floor, providing convenience for both residents and guests.
Upstairs, the first floor hosts three well proportioned bedrooms, each offering comfortable accommodation and the first floor bathroom is fitted with a modern suite and is well positioned to serve all bedrooms efficiently.
A notable feature of this property is the converted garage, now serving as a versatile garden room. This additional space offers endless possibilities, whether you require a home office, gym, or hobby area. It provides valuable flexibility to adapt the home to your changing needs.
This property is ideally located for commuters, with easy access to the local train station, main road links to the M2 and M20, and a selection of well-regarded nearby schools. The combination of excellent transport connections and educational facilities ensures that this home is perfectly placed for both families and professionals.
With its spacious and flexible accommodation, practical features, and desirable location, this three bedroom semi-detached house represents an outstanding opportunity to secure a comfortable and stylish home. Early viewing with moxy is highly recommended to appreciate all that this property has to offer.
EPC Grade D | Freehold | Medway Council Tax Band D
This property benefits from vehicular side access to the garden room which was previously a garage. The side access area offers shared access for the neighbour to access their garage also. Property details are provided by the Vendor and should be verified by the buyer’s solicitor and surveyor. Tenure and material information is based on the Vendor’s input and must be confirmed independently. Fixtures, fittings, and appliances have not been tested, and no assurances are given. Buyers should not rely solely on this information when making a decision and should review the full title documents, local planning applications and seek independent legal advice for a full understanding of rights, covenants, and restrictions prior to exchange of contracts.
EPC Rating: D
Parking - Off Street
Viewing & Disclaimer:
Please contact us on 01634 326036 if you wish to arrange a viewing appointment for this property, or require further information.
Energy Performance Certificate
Click here to view the Energy Efficiency Rating and Environmental Impact Rating for this property.
Moxy Property Consultants endeavour to maintain accurate depictions of properties in Virtual Tours, Floor Plans and descriptions, however, these are intended only as a guide and purchasers must satisfy themselves by personal inspection.
