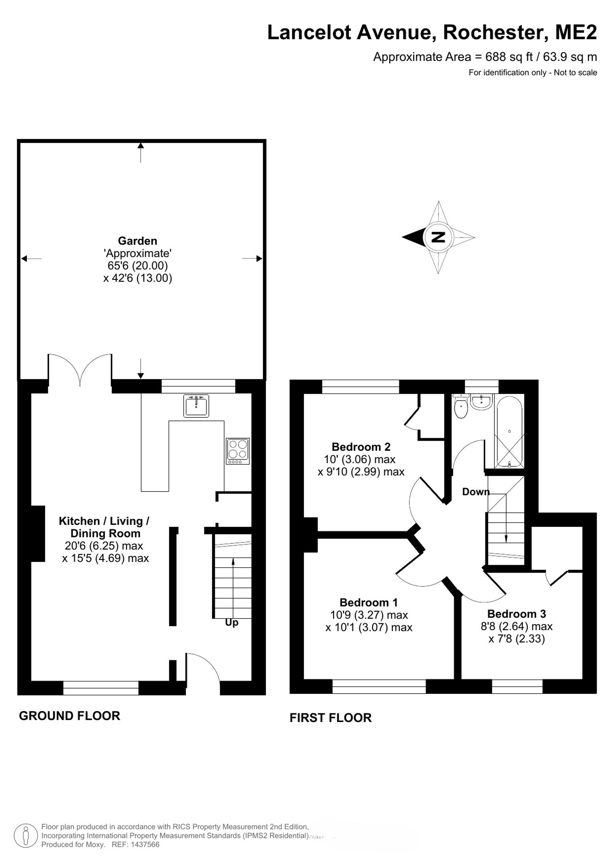
Lancelot Avenue, Rochester, Kent. ME2
Summary:
A three bed terraced home with bright living room, spacious kitchen/diner opening to an east-facing garden. Front driveway, close to schools, road links, station and plenty of green spaces to enjoy.
Key Features:
- Three bedroom home
- Front driveway
- Bright living area
- Fitted kitchen and dining area with garden access
- First floor bathroom
- East facing garden with side access
- Move in ready
- EPC grade C
- Close to schools and main road links
- Strood to london on high-speed links in just 33 minutes
Full Details:
This three bedroom terraced house is easy to settle into from the moment you walk through the door.
To begin with at the top of buyers lists is the front driveway currently providing off road parking for one car but with potential to upgrade to a double driveway subject to the necessary planning permissions.
As you enter the home you have a entrance area that leads into the front living room which is a bright, comfortable space to unwind, while the kitchen and dining area at the back is set up for real day to day living with plenty of workspace, good storage, and French doors that open up into garden; perfect for the summer and having people over to entertain.
Upstairs are three well sized bedrooms and a fresh, modern bathroom, all finished in a clean, simple style that won’t need changing any time soon.
The home is rated EPC C and the boiler has been recently serviced helping keep energy use and bills in check. There’s also a private driveway at the front, and the location works well for both schools and getting out and about easily. Strood station is within easy reach and provides a direct high-speed service into London in just 33 minutes. Bluewater Shopping Centre is just a short drive away and there are plenty of nearby greenspaces to enjoy all year round.
Outside, the rear garden faces East, so it catches the morning light, ideal if you like starting the day with a coffee outdoors. It’s mostly lawn with a patio just outside the dining area, giving you a natural spot for eating outside. There is also side access, which makes it easier for bikes, bins or guests coming round. At the front, the paved driveway is softened by a few established shrubs, adding a bit of greenery without extra upkeep.
Overall, it’s a straightforward, well-kept home that balances indoor comfort with usable outdoor space, in a spot that makes everyday life that bit easier.
Medway Council Tax Band B | Freehold | EPC Grade C
Please note that subject to inspection, the property is formed over ground floor and first floor with potential flying freehold in the area over the passageway. Subject to rights of Mines and Minerals and subject to rights and reserved rights with No 33 Lancelot Avenue and subject to contributing towards the repair and maintenance of a shared passage-way. All property details are provided by the Vendor and should be verified by the buyer’s solicitor and surveyor. Tenure and material information is based on the Vendor’s input and must be confirmed independently. Fixtures, fittings, and appliances have not been tested, and no assurances are given. Buyers should not rely solely on this information when making a decision and should review the full title documents, local planning applications and seek independent legal advice for a full understanding of rights, covenants, and restrictions prior to exchange of contracts.
EPC Rating: C
Garden
Potential for large shed or summer house at end of the garden.
Parking - Driveway
Viewing & Disclaimer:
Please contact us on 01634 326036 if you wish to arrange a viewing appointment for this property, or require further information.
Energy Performance Certificate
Click here to view the Energy Efficiency Rating and Environmental Impact Rating for this property.
Moxy Property Consultants endeavour to maintain accurate depictions of properties in Virtual Tours, Floor Plans and descriptions, however, these are intended only as a guide and purchasers must satisfy themselves by personal inspection.
