Maidstone Road, Rochester, Kent. ME1
Summary:
Three bed, mid-terrace home in central Rochester, walkable to High Street and railway station with 36-minute London links. Bright living spaces, extended kitchen, and a 70ft garden.
Key Features:
- Three bedroom terraced home
- Elevated position with natural light throughout
- Bay windows to front living room and principal bedroom
- First floor bathroom
- Extended kitchen with garden access
- 70ft + rear garden
- Walking distance to rochester high street and train station
- High speed direct service from rochester to st pancras in just 36 minutes
- Nearby to several schools including grammar and independants
- Close to local shops, parks and excellent main road links
Full Details:
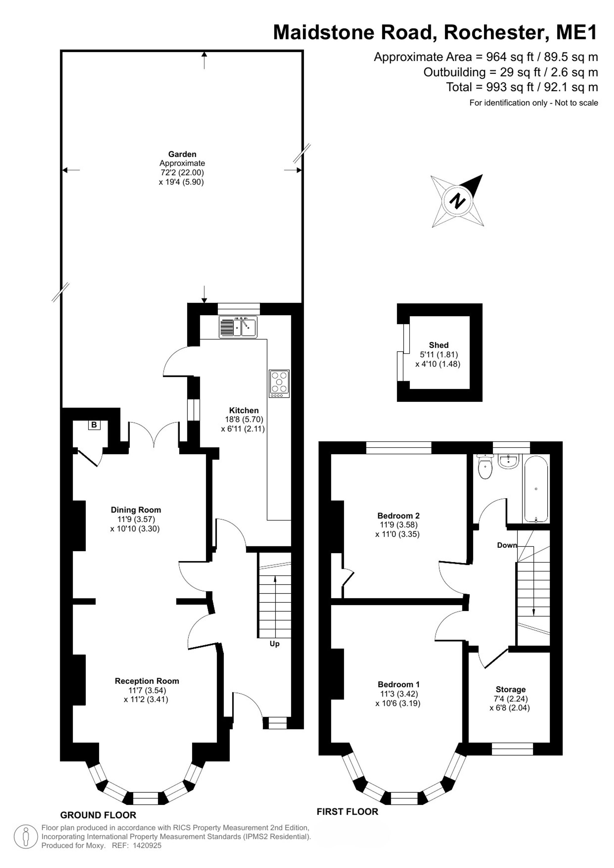
This three bedroom home is elevated away from the road and offers generous living accommodation in the heart of sought-after Rochester ME1
Just a short stroll from Rochester High Street and Rochester railway station, you’ll enjoy the perfect balance of character and convenience with high-speed services whisking you to London in as little as 36 minutes.
Highly regarded schools, including King's and St Andrew's are within easy walking distance, along with local grammar schools. From popping to the post office and picking up daily essentials to meeting friends for coffee or catching a bus across Medway, everything you need is quite literally on your doorstep.
Step inside and you’re welcomed by a bright and inviting front living room, beautifully lit by a traditional bay window that fills the space with natural light. To the rear, the dining area provides a sociable hub of the home, opening directly onto the patio and garden ideal for entertaining or relaxed family evenings. The extended kitchen offers excellent workspace and storage, with a pleasant outlook over the garden.
Upstairs, three well proportioned bedrooms two comfortable doubles and a versatile single provide flexible accommodation for growing families, guests, or those working from home.
The impressive 70ft rear garden is a true highlight. With a blend of patio and steps up to the large lawn, it offers the perfect setting for summer gatherings, gardening projects, or simply unwinding in your own private retreat.
Combining character, space, and an exceptional central location, this home presents a fantastic opportunity to enjoy the very best of Rochester living.
Contact moxy today to arrange your viewing.
EPC Grade D l Medway Council Tax Band C | Freehold
Please note: The title contains rights of way and restrictive covenants. The tenure and material information is based on the Vendor’s input and must be confirmed independently. Fixtures, fittings, and appliances have not been tested, and no assurances are given. Buyers should not rely solely on this information when making a decision and should review the full title documents, local planning applications and seek independent legal advice for a full understanding of rights, covenants, and restrictions prior to exchange of contracts.
EPC Rating: D
Viewing & Disclaimer:
Please contact us on 01634 326036 if you wish to arrange a viewing appointment for this property, or require further information.
Energy Performance Certificate
Click here to view the Energy Efficiency Rating and Environmental Impact Rating for this property.
Moxy Property Consultants endeavour to maintain accurate depictions of properties in Virtual Tours, Floor Plans and descriptions, however, these are intended only as a guide and purchasers must satisfy themselves by personal inspection.
