Portway Road, Cliffe Woods, Kent. ME3
Summary:
New to the market and a must view is this beautifully maintained, versatile, three/four double bedroom, terrace residence, ideally located on the sought-after Portway Road in Cliffe Woods. This impressive home offers a versatile and spacious accommodation, perfectly suited to modern family living, all within a peaceful village setting.
Key Features:
- Mid-terrace residence
- Four versatile bedrooms
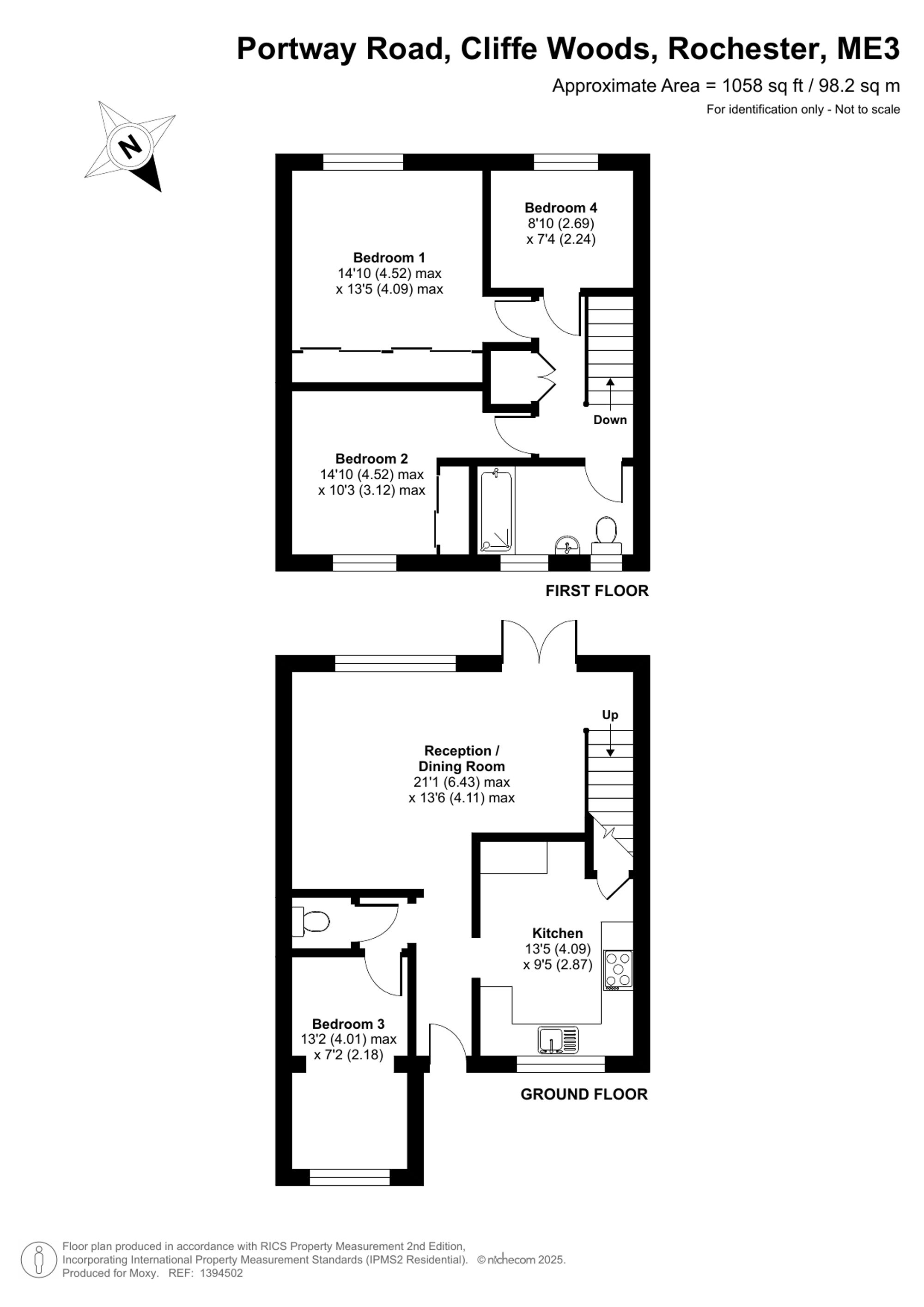
- Spanning over 1050 sqft of accommodation
- Separate kitchen
- Open-plan lounge/diner
- Low maintenance rear garden
- Private drive
- Semi-rural village location
- Move in ready
- Must view
Full Details:
New to the market and a must view is this beautifully maintained, versatile, three/four double bedroom, terrace residence, ideally located on the sought-after Portway Road in Cliffe Woods. This impressive home offers a versatile and spacious accommodation, perfectly suited to modern family living, all within a peaceful village setting.
The property opens onto a welcoming entrance hall, leading into the spacious kitchen that benefits from a plethora of natural space and storage. To the rear, an open-plan stylish lounge/diner forms the heart of the home, the perfect spot for entertaining and formal dining. The garage has been converted to create a fourth ground floor bedroom, offering flexibility for growing families or even a second reception room to serve as a much needed home office. If that wasn’t enough the ground floor benefits from a W/C.
Upstairs, the property features three generous sized bedrooms. The family bathroom has been tastefully upgraded and benefits from a three-piece suite.
Externally, this home benefits from a low-maintenance rear garden with a feature pergola and decking area, ideal for relaxing, entertaining, or enjoying summer evenings. To the front, a private driveway provides convenient off-road parking.
Set within the popular and well-established village of Cliffe Woods, this property enjoys a tranquil yet well-connected location.
Families will appreciate the excellent educational options, including Cliffe Woods Primary School, which is highly regarded locally, and several outstanding secondary schools in nearby Rochester, such as Sir Joseph Williamson’s Mathematical School and Rochester Grammar School.
For commuters, Strood Train Station is just a short drive away, providing high-speed services to London St Pancras in under 40 minutes. The property also offers easy access to major road links, including the A228, A289, and M2 motorway, connecting you swiftly to Rochester, Maidstone, and London.
Cliffe Woods is surrounded by beautiful countryside and woodland walks, making it ideal for those who love the outdoors. The nearby Hoo Peninsula and Cliffe Pools Nature Reserve provide scenic spots for walking, cycling, and birdwatching, while still being only a short drive from larger shopping and leisure facilities in Strood and Rochester.
This exceptional property combines modern comfort, flexible living space, and the peaceful charm of village life, making it a perfect choice for families, professionals, or those seeking a more relaxed pace without sacrificing convenience.
Call Moxy Property Consultants to arrange your private tour!
Freehold
medway council tax
council tax band C
EPC Rating: C
Viewing & Disclaimer:
Please contact us on 01634 326036 if you wish to arrange a viewing appointment for this property, or require further information.
Energy Performance Certificate
Click here to view the Energy Efficiency Rating and Environmental Impact Rating for this property.
Moxy Property Consultants endeavour to maintain accurate depictions of properties in Virtual Tours, Floor Plans and descriptions, however, these are intended only as a guide and purchasers must satisfy themselves by personal inspection.
