Powlett Road, Rochester, Kent. ME2
Summary:
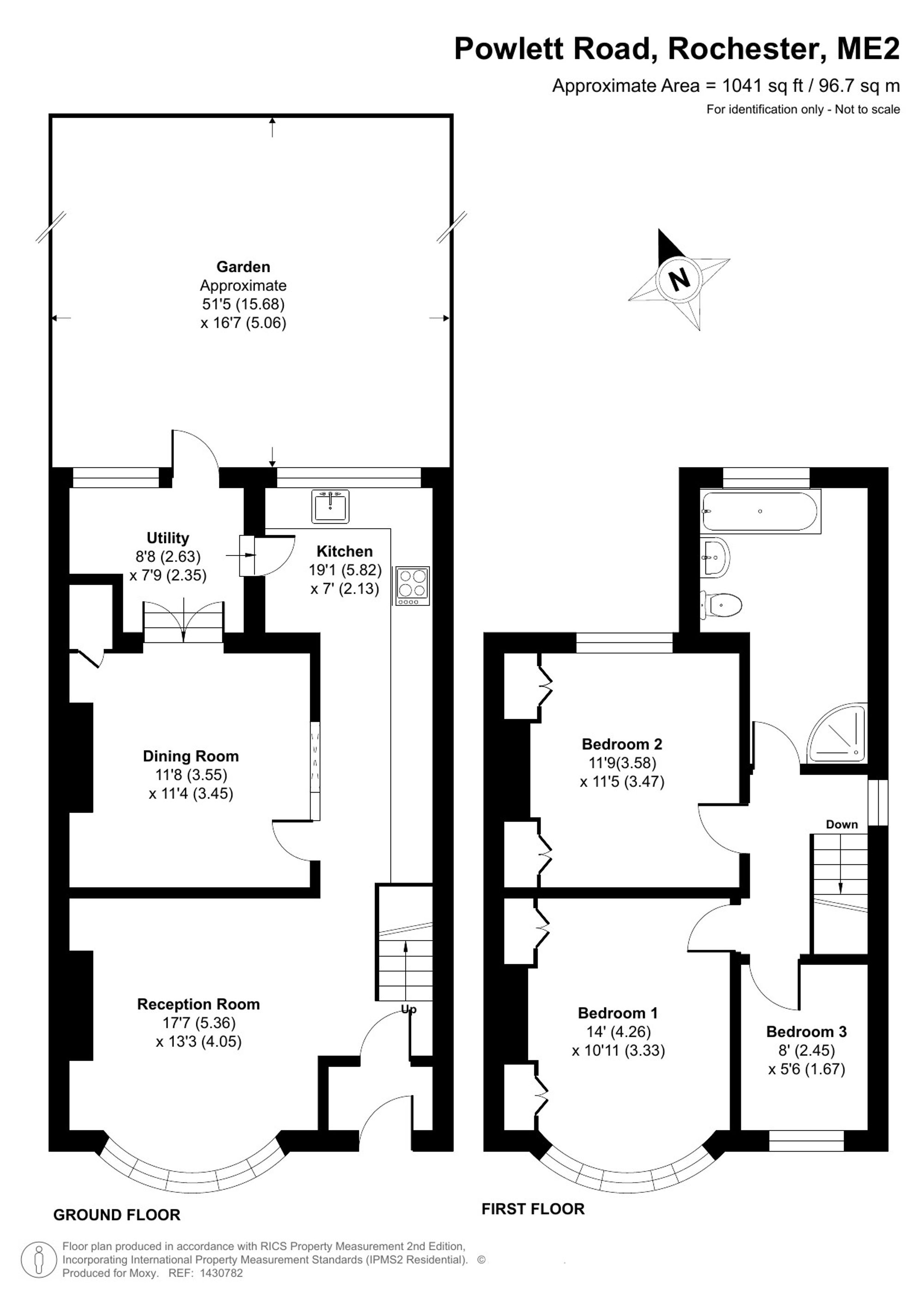
Three bedroom end of terrace home with off road parking in a convenient location close to Strood station with fast links to London in around thirty minutes, ideal for commuters needing space. EPC C
Key Features:
- Three bedorom home
- Front driveway
- Front living room with bay window
- Galley kitchen
- Dining room
- Three first floor bedrooms
- First floor bathroom with shower and bath
- Extended
- Lean to
- 50ft rear garden
- Walking distance to strood train station - train to london in just 33 minutes
- 2 year old boiler with 8 years left on warranty
Full Details:
This three bedroom end-of-terrace home offers a comfortable and practical living space in a location that makes day to day life easy.
Just a short walk from Strood station, you can be in London on this high speed line in around half an hour making it ideal for commuters who don’t want to compromise on space.
Priced to reflect the need for refurbishment, this property could be the home of your dreams, a perfect place to make your own exactly how you want it. A new boiler was installed two years ago and with a warranty of 8 years remaining plus an EPC Grade of C you can take ownership of this home with peace of mind that the energy is efficient.
At the front, there is off road parking, so you won’t need to worry about finding a spot after a long day. Step inside and you’re greeted by a bright living room, where a bay window draws in plenty of natural light and gives the space an open, relaxed feel, somewhere you’ll actually want to spend time, whether it’s a quiet evening or having friends over.
The kitchen is arranged in a practical galley layout, making good use of the extension with plenty of storage and worktop room.
The separate dining room creates a natural hub for meals, conversations, or even working from home. There’s also a lean-to, which adds useful extra space for storage, laundry, or the everyday bits and pieces that need a home.
Upstairs, you’ll find three well sized bedrooms that can easily adapt to your needs whether that’s sleeping space, a home office, or something in between. The bathroom is set up with both a bath and a separate shower, making it easy to suit different routines.
Out the back, the garden stretches to around 50 feet, offering plenty of room to shape it into whatever you want whether that’s a space for entertaining, gardening, or simply unwinding.
Overall, it’s a home that balances space, convenience, and flexibility, in a spot that keeps you well connected without feeling rushed.
Medway Council Tax Band C | EPC Grade C | Freehold
A conveyance of the land in this title dated 5 November 1936 contains covenants details of which are set out in the schedule of restrictive covenants on the title. All property details are provided by the Vendor and should be verified by the buyer’s solicitor and surveyor. Tenure and material information is based on the Vendor’s input and must be confirmed independently. Fixtures, fittings, and appliances have not been tested, and no assurances are given. Buyers should not rely solely on this information when making a decision and should review the full title documents, local planning applications and seek independent legal advice for a full understanding of rights, covenants, and restrictions prior to exchange of contracts.
EPC Rating: C
Parking - Off Street
Viewing & Disclaimer:
Please contact us on 01634 326036 if you wish to arrange a viewing appointment for this property, or require further information.
Energy Performance Certificate
Click here to view the Energy Efficiency Rating and Environmental Impact Rating for this property.
Moxy Property Consultants endeavour to maintain accurate depictions of properties in Virtual Tours, Floor Plans and descriptions, however, these are intended only as a guide and purchasers must satisfy themselves by personal inspection.
