Rede Court Road, Strood, Rochester, Kent. ME2
Summary:
No chain! South-facing garden and great potential to extend (STP) on this spacious bungalow; a rare chance to create your perfect home in a sought-after location.
Key Features:
- Detached bungalow
- Three bedrooms
- South-facing private rear garden
- Separate kitchen with ample storage
- Well-maintained with versatile living space
- Bright flexible garden room
- Boarded and accessible loft for extra storage
- Large private driveway and garage
- Scope to extend or reconfigure (subject to planning)
- Close to major road links, stations, and local schools
- No onward chain for A smooth purchase
Full Details:
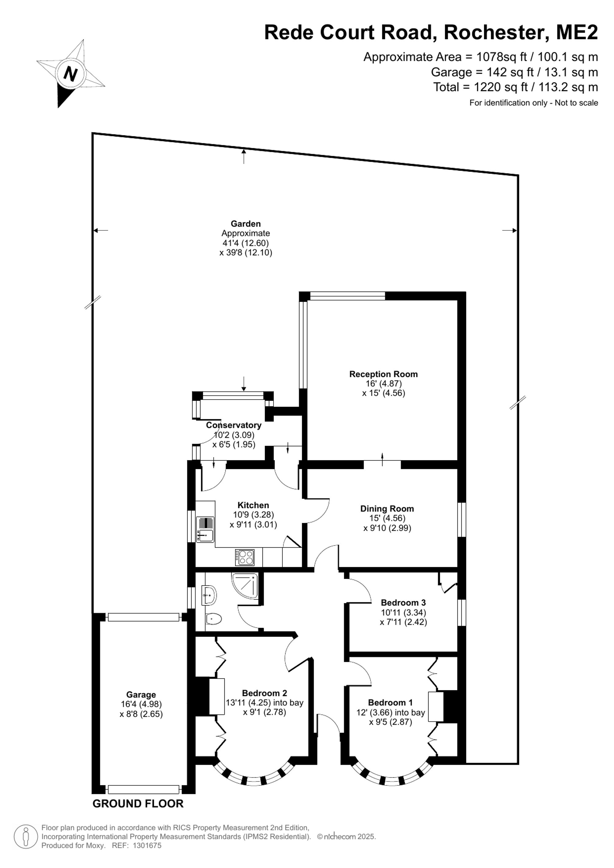
Full of potential and perfectly placed on one of Strood’s most desirable roads, this detached three-bedroom bungalow comes with a generous south-facing garden, a wide driveway, garage, and no forward chain.
Set on a sizeable plot, this home offers excellent scope to extend or reconfigure (subject to planning permission), making it a great option for buyers looking to create something tailored to their needs. The sunny rear garden is private and peaceful – ideal for outdoor dining, gardening, or simply relaxing in the sunshine.
Inside, the layout is well thought out and ready to adapt. A spacious lounge/diner provides a central living space, with plenty of room for both everyday life and hosting guests. The separate kitchen is practical and well-kept, with ample cupboard and counter space.
There are three comfortable double bedrooms, all well-sized, along with a neutrally finished family shower room. A bright garden room adds another versatile area – ideal as a home office, hobby room or reading spot. The loft is fully boarded and easily accessible, providing extra storage or future potential.
Further benefits include a large private driveway, a garage, and a rear yard offering additional storage options or workspace.
Located on the ever-popular Rede Court Road, the property is well connected – with easy access to the A2/M2, and just a short distance from Strood and Rochester railway stations, both offering high-speed links into London. Bluewater Shopping Centre and Ebbsfleet International are also around 15 minutes away by car.
Families will also appreciate the excellent local schools nearby, including Hilltop and Temple Mill primaries, as well as secondary options in Strood and Rochester.
Call Moxy Property Consultants to arrange your private tour!
Freehold | medway council tax | council tax band D | chain free
EPC Rating: D
Viewing & Disclaimer:
Please contact us on 01634 326036 if you wish to arrange a viewing appointment for this property, or require further information.
Energy Performance Certificate
Click here to view the Energy Efficiency Rating and Environmental Impact Rating for this property.
Moxy Property Consultants endeavour to maintain accurate depictions of properties in Virtual Tours, Floor Plans and descriptions, however, these are intended only as a guide and purchasers must satisfy themselves by personal inspection.
