Ridley Road, Rochester, Kent ME1
Summary:
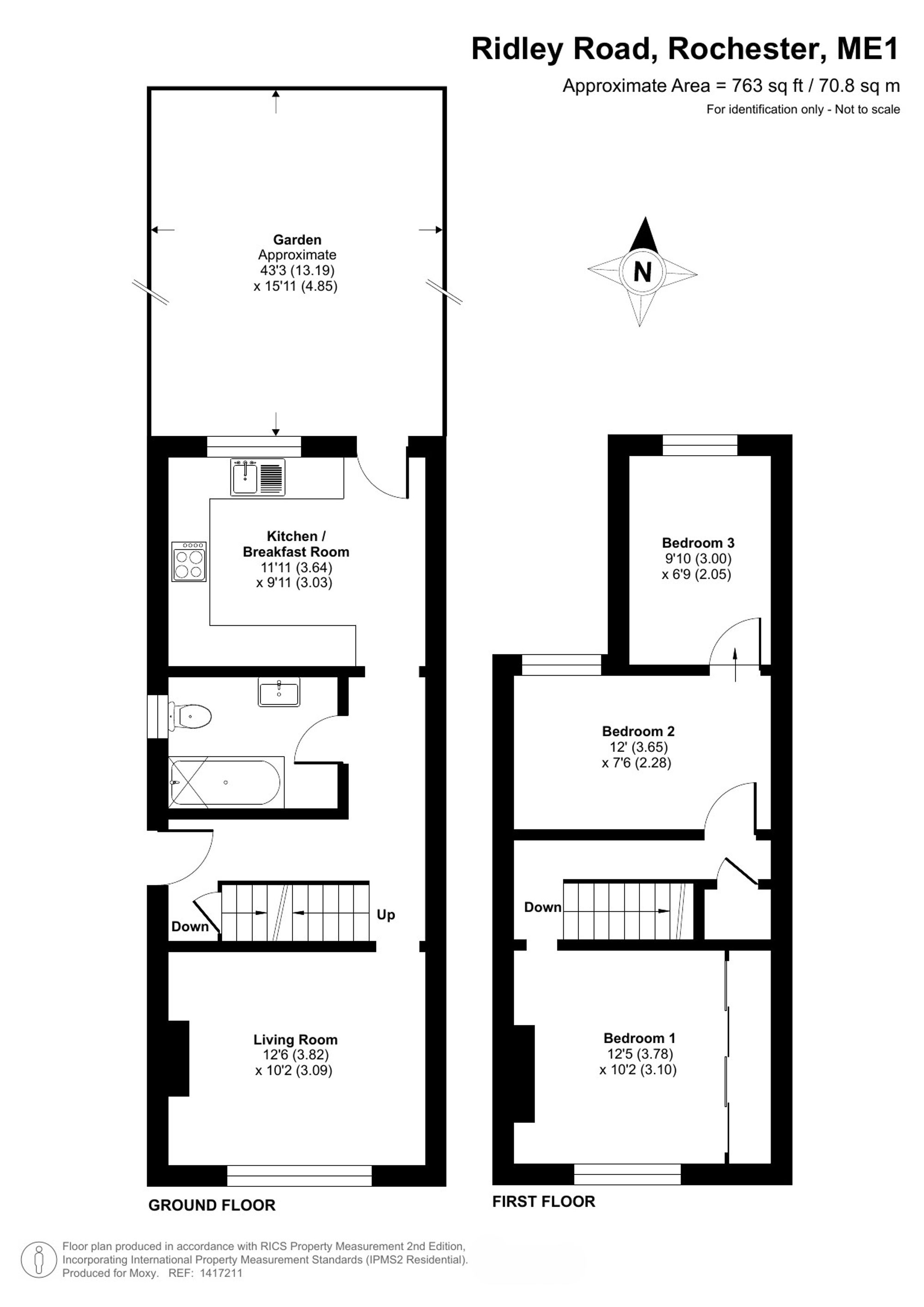
A spacious three bed, end of terrace in ME1 within walking distance to Rochester High Street and station. Kitchen & bathroom fitted in 2022, private garden with side access, close to schools.
Key Features:
- Three bedroom end of terrace
- Kitchen installed 2022
- Separate living room with front aspect
- Rear garden with side access
- First floor bedroom with third off the second
- Ground floor bathroom installed 2022
- Cellar for storage
- Commiunity minded location nearby to kings, st andrew and grammar schools
- Radiators fitted 2022 with indvidual heating controls
- Walking distance to historic rochester high street and train station
Full Details:
This three bedroom end of terrace house provides spacious living areas and is move in ready. Ridley Road is a popular ME1 location set just off of St. Margarets Street and residents who live there benefit from the strong sense of community as well as the close proximity to the Historic Rochester High Street, Train Station and several schools including Grammar and Independent schools such as Kings and St. Andrews, making it a superb choice for those seeking excellent local amenities and transport links.
The ground floor level features a separate front living room with gas fire and feature fireplace and a modern eat-in kitchen, installed in 2022 and with direct access to the rear garden. The ground floor bathroom was also installed in 2022 with a contemporary finish.
Head up to the first floor and you will find two separate double bedrooms. In keeping with the tradition of the era, the third bedroom is accessed via the second making it suitable as a bedroom, nursery, home office, or dressing room.
The current EPC is grade E however since this was done, new radiators have been installed with individual heating controls ensuring comfort throughout the year and may enhance the energy efficiency.
The outside space includes a private rear garden which benefits from useful side access, making it easy to store bikes, bins, or gardening equipment.
Freehold | EPC Grade E | Medway Council Tax Band B
EPC Rating: E
Viewing & Disclaimer:
Please contact us on 01634 326036 if you wish to arrange a viewing appointment for this property, or require further information.
Energy Performance Certificate
Click here to view the Energy Efficiency Rating and Environmental Impact Rating for this property.
Moxy Property Consultants endeavour to maintain accurate depictions of properties in Virtual Tours, Floor Plans and descriptions, however, these are intended only as a guide and purchasers must satisfy themselves by personal inspection.
