Rochester Road, Burham, Rochester, Kent. ME1
Summary:
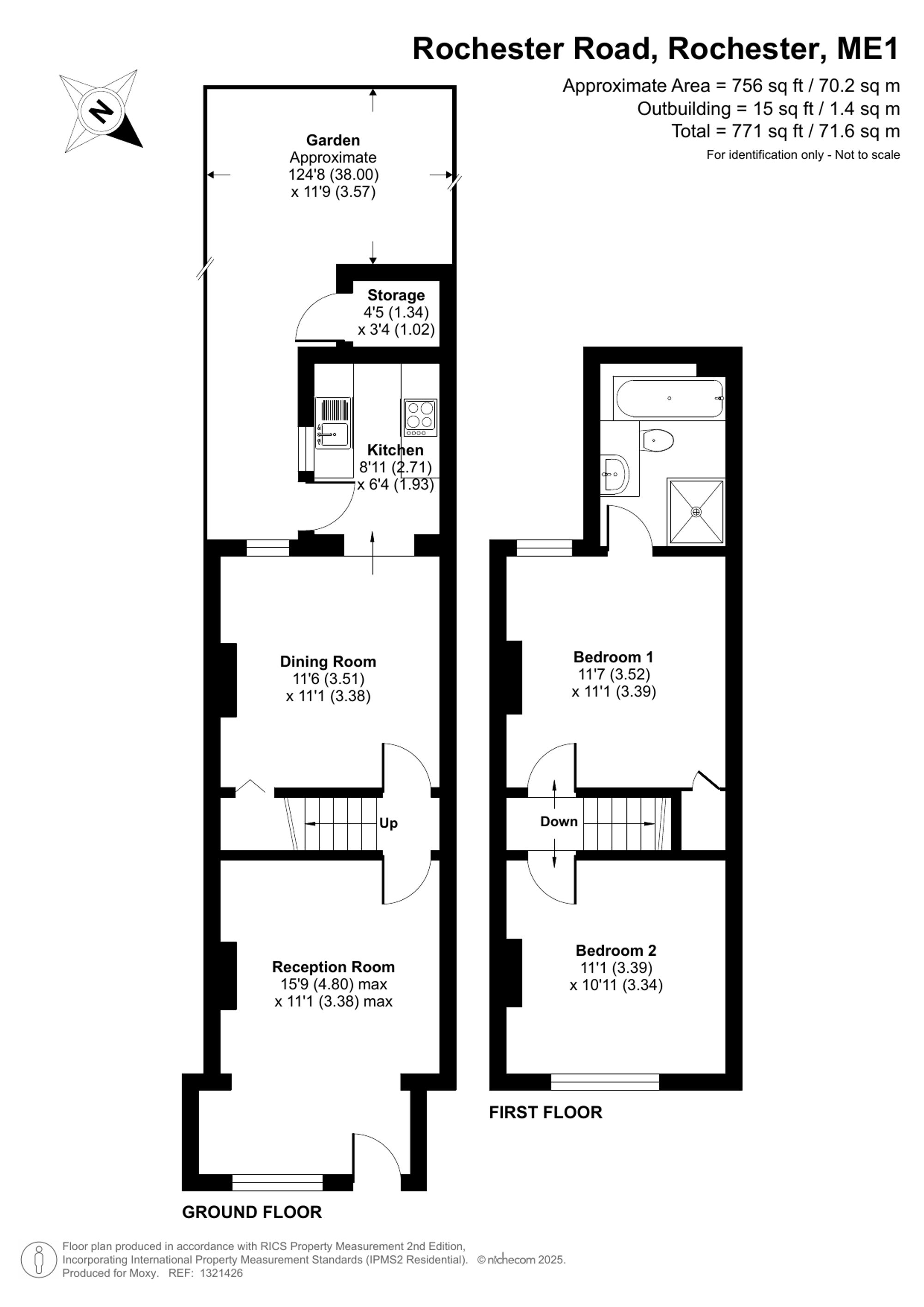
Nestled in a semi-rural village setting, this charming, two double bedroom, mid-terrace residence effortlessly combines contemporary comforts with the timeless allure of a cottage-style home and should be top of your list to view!
Key Features:
- Mid-terrace residence
- Two bedrooms
- Sizeable rear garden
- Cottage character and charm
- Ideal first time home or investment
- Move in ready
- Semi-rural village location
- Fantastic commucting links
- Variety of schools and amenities
- Must view
Full Details:
Nestled in a semi-rural village setting, this charming, two double bedroom, mid-terrace residence effortlessly combines contemporary comforts with the timeless allure of a cottage-style home and should be top of your list to view!
Upon entering, the warmth of the cottage character envelops you, inviting you to discover all this home has to offer. The airy living spaces seamlessly flow from room to room, creating a sense of openness and fluidity throughout the property. The cosy sizeable lounge is located at the front of the property and benefits from a feature fireplace with a decorative log-burner, creating the perfect space to relax and unwind with the family after a long day. The second reception room offers versatility but would make an ideal dining area or home office. The kitchen is located at the rear of the property giving easy access to the dining area for those that like to entertain and dine.
Ascending to the top floor you will find two well proportioned double bedrooms both services by a stylish family bathroom located off the second bedroom. Tastefully upgraded the family bathroom is sleek and stylish and features a four-piece suite.
Not to be overlooked, the sizeable, south-westerly facing rear garden extends the living space outdoors, providing a tranquil oasis for al fresco dining or peaceful contemplation. With multiple areas including a patio area, summer-house/cabin and laid to lawn area the garden caters for all the family.
This delightful property is move-in ready, with every detail meticulously thought out to ensure a seamless transition into your new home. The charm of the cottage-style architecture is complemented by modern amenities, creating a harmonious blend of old-world charm and contemporary convenience.
Situated in a sought-after location, this home offers fantastic commuting links to nearby urban centres while maintaining a peaceful village ambience. A variety of schools and amenities are within easy reach, making this property an ideal choice for families or professionals looking for a convenient lifestyle.
With its irresistible blend of character, convenience, and comfort, this property is a must-view for anyone seeking a harmonious balance of rural tranquillity and modern living.
Call Moxy Property Consultants to arrange your private tour !
Freehold
tonbridge and malling council tax
council tax band B
EPC Rating: D
Viewing & Disclaimer:
Please contact us on 01634 326036 if you wish to arrange a viewing appointment for this property, or require further information.
Energy Performance Certificate
Click here to view the Energy Efficiency Rating and Environmental Impact Rating for this property.
Moxy Property Consultants endeavour to maintain accurate depictions of properties in Virtual Tours, Floor Plans and descriptions, however, these are intended only as a guide and purchasers must satisfy themselves by personal inspection.
