Spire Way, Wainscott, Rochester, Kent. ME3
Summary:
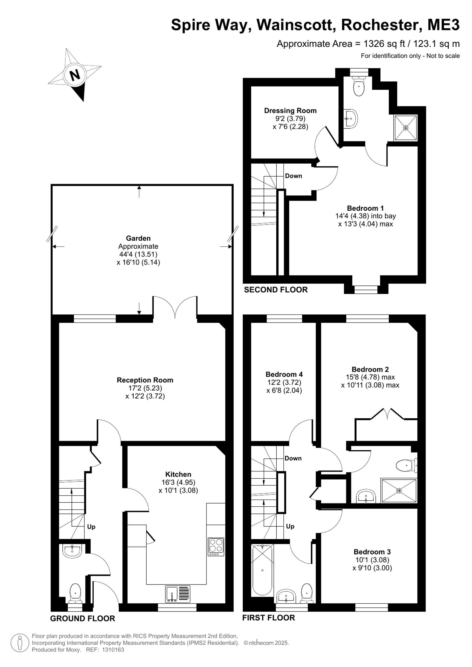
Nestled in the highly desirable village of Wainscott is this stunning four double bedroom, three bathroom, town house that should be top of your list to view! Not to be overlooked this stunning residence boasts a south-facing rear garden with two allocated parking spaces.
Key Features:
- Mid-terrace residence
- Eat-in kitchen/diner
- Four bedrooms
- Three bathrooms including two en-suites
- South facing low maintenance rear garden
- Spanning three floors
- Two allocated parking spaces
- Move in ready
- Fantastic village location
- Ideal access to amenities, schools and commuting links
Full Details:
Nestled in the highly desirable village of Wainscott is this stunning four double bedroom, three bathroom, town house that should be top of your list to view! Not to be overlooked this stunning residence boasts a south-facing rear garden with two allocated parking spaces.
As you step into the property, you are greeted by the inviting ambience of the living space highlighted by the eat-in kitchen/diner, perfectly designed for entertaining guests or enjoying family meals. The separate lounge located at the rear of the property creates the perfect spot to unwind with the family after a long day. If that wasn’t enough the ground floor benefits from the convenience of a W/C.
This stunning home effortlessly spans three floors, accommodating four generously sized double bedrooms, creating ample space for privacy and relaxation. The first floor accommodated three of the four bedrooms with the second bedroom offering its very own stylish en-suite whilst the other bedrooms are serviced by the family bathroom with its three-piece suite. The principle bedroom spans the entire top floor and not only benefits from a fantastic size but its very own walk in wardrobe and en-suite for a touch of luxury!
Outside, the south-facing low maintenance rear garden provides a tranquil retreat, ideal for unwinding after a long day or hosting outdoor gatherings with family and friends. Completing this offering are two allocated parking spaces, ensuring hassle-free parking in this sought-after location.
Meticulously maintained throughout, this home is move-in ready, allowing you to settle in seamlessly and start enjoying the comforts of your new home immediately.
The property's location offers fantastic access to transport links, making commuting a breeze for busy professionals. Additionally, the area boasts an excellent choice of schools and amenities, providing residents with everything they need right at their doorstep.
Call Moxy Property Consultants to arrange your private tour!
Freehold
medway council tax
council tax band E
Estate charge £250.00 per annum (approx)
EPC Rating: C
Viewing & Disclaimer:
Please contact us on 01634 326036 if you wish to arrange a viewing appointment for this property, or require further information.
Energy Performance Certificate
Click here to view the Energy Efficiency Rating and Environmental Impact Rating for this property.
Moxy Property Consultants endeavour to maintain accurate depictions of properties in Virtual Tours, Floor Plans and descriptions, however, these are intended only as a guide and purchasers must satisfy themselves by personal inspection.
