Tamar Drive, Strood, Rochester, Kent. ME2
Summary:
Chain free! This charming, three bedroom, mid-terrace property offers a thoughtful balance of modern comfort and everyday practicality, making it an inviting choice for first-time buyers that want to be well connected within a tranquil, town location.
Key Features:
- Mid-terrace residence
- Three bedrooms
- Separate kitchen
- Contemporary kitchen and bathroom
- Low maintenance rear garden
- Blank canvass
- Chain free
- Ideal first time buyer home or investment property
- Fantastic access to transport links and amenities
- Must view
Full Details:
Step into a home that feels like a fresh page waiting for your story to unfold. This charming, three bedroom, mid-terrace property offers a thoughtful balance of modern comfort and everyday practicality, making it an inviting choice for first-time buyers and savvy investors alike.
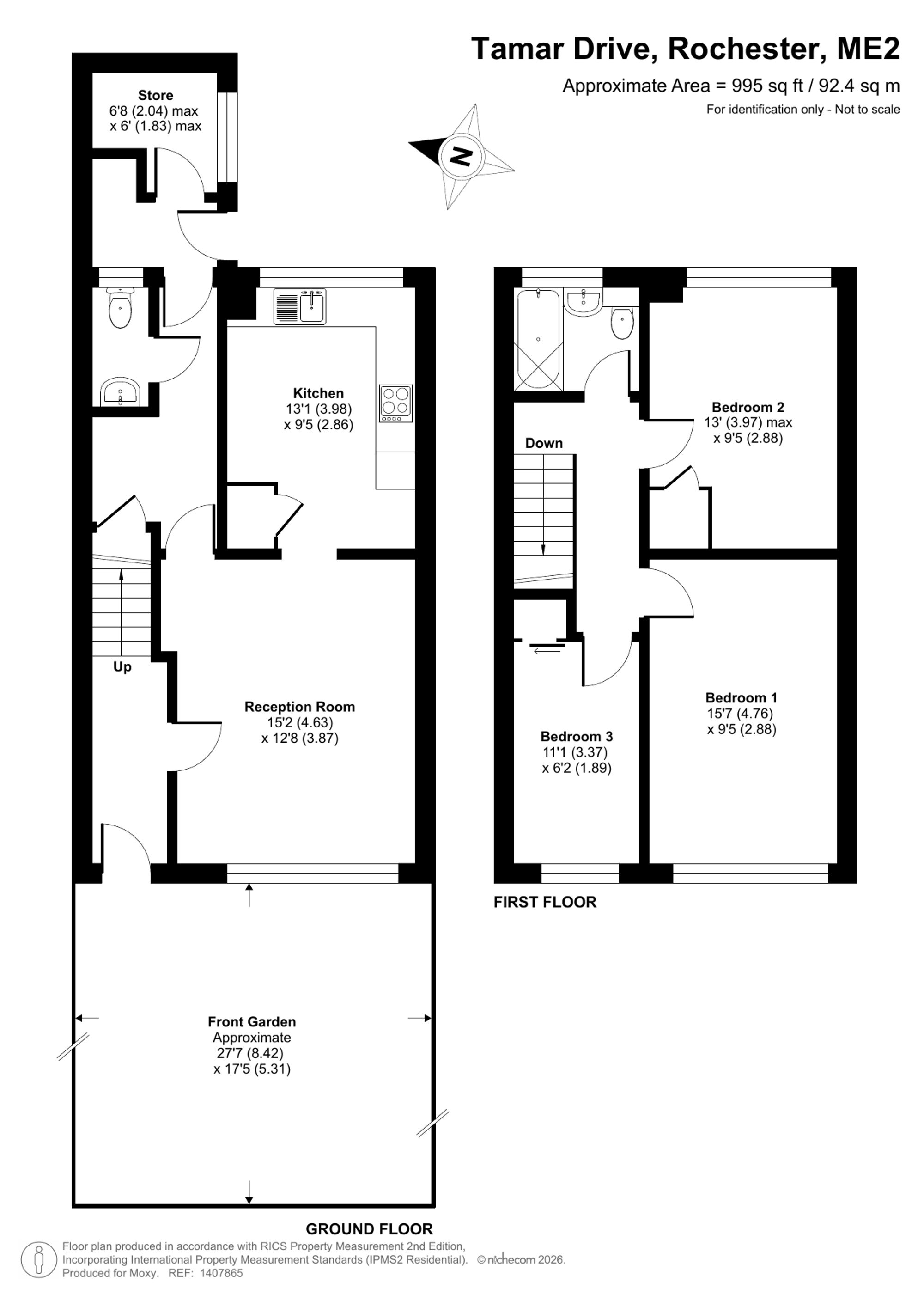
At its heart lies a contemporary eat-in kitchen, a sociable space where morning coffees and evening meals naturally come together. Just beyond, a separate dining area provides the perfect setting for hosting, whether it’s relaxed family dinners or lively gatherings with friends. The ground floor is further enhanced by a convenient W/C and a versatile store area, ready to adapt to your needs, be it a pantry, hobby nook, or clever storage solution.
Upstairs, three well-proportioned bedrooms offer a comfortable nights sleep, complemented by a stylish family bathroom designed with a modern touch and three-piece suite.
Outside, the low-maintenance rear garden creates a private outdoor haven without the upkeep, ideal for enjoying a quiet moment or a summer barbecue.
Offered chain free, this property is a true blank canvas, ready for you to shape into something special. Whether you’re stepping onto the property ladder or expanding your portfolio, this home is full of potential and promise.
Set within a quiet residential part of ME2, Tamar Drive strikes a natural balance between everyday convenience and a calm, tucked-away feel.
Transport links are straightforward and reliable. Strood station offers regular high-speed services to London St Pancras, making commuting more predictable than pressured. Road connections are equally strong, with easy access to the A2 and M2 for routes to London, the Kent coast, and beyond.
The area is well suited to families, with reputable schools such as St Nicholas Church of England Infant School and Strood Academy nearby, alongside a wider choice across Strood and Medway for all age groups.
Local amenities are close at hand, including Strood Retail Park with its mix of supermarkets, shops, and dining options. For a wider choice, historic Rochester is just a short trip away, offering riverside walks, cafés, and notable landmarks including its castle and cathedral.
Overall, Tamar Drive offers a well-connected yet peaceful setting, ideal for commuters, families, and those seeking convenience without compromising on a quieter residential atmosphere.
Call Moxy Property Consultants to arrange your private tour!
Freehold
medway council tax
council tax band C
chain free
EPC Rating: C
Viewing & Disclaimer:
Please contact us on 01634 326036 if you wish to arrange a viewing appointment for this property, or require further information.
Energy Performance Certificate
Click here to view the Energy Efficiency Rating and Environmental Impact Rating for this property.
Moxy Property Consultants endeavour to maintain accurate depictions of properties in Virtual Tours, Floor Plans and descriptions, however, these are intended only as a guide and purchasers must satisfy themselves by personal inspection.
