Templars Drive, Rochester, Kent. ME2
Summary:
Modern 4 bed detached home in a secluded spot with off road parking. Bright, spacious living, flexible loft conversion and access to communal green spaces and with a friendly community atmosphere.
Key Features:
- Four bedroom detached house with loft conversion
- Over 1,100 sq ft of living space
- Two reserved parking spaces to the rear of the property
- Sought after managed development with communal areas to enjoy
- Close to highly regarded schools
- Easy access to motorway links, shopping and parks
- Move in ready interior
- Private position set back from the road
Full Details:
This beautifully presented four bedroom detached home, built less than 10 years ago, offers the perfect balance of space, privacy, and effortless modern living, ideal for buyers ready to move straight in and feel at home from day one.
Tucked away from the main road in a secluded position within the sought-after Templars Drive development, the property enjoys a real sense of tranquillity while still being part of a welcoming, community focused environment. Residents benefit from thoughtfully maintained communal green spaces, perfect for relaxing outdoors, children to play, or simply connecting with neighbours and enjoying the strong community spirit that makes this setting so special.
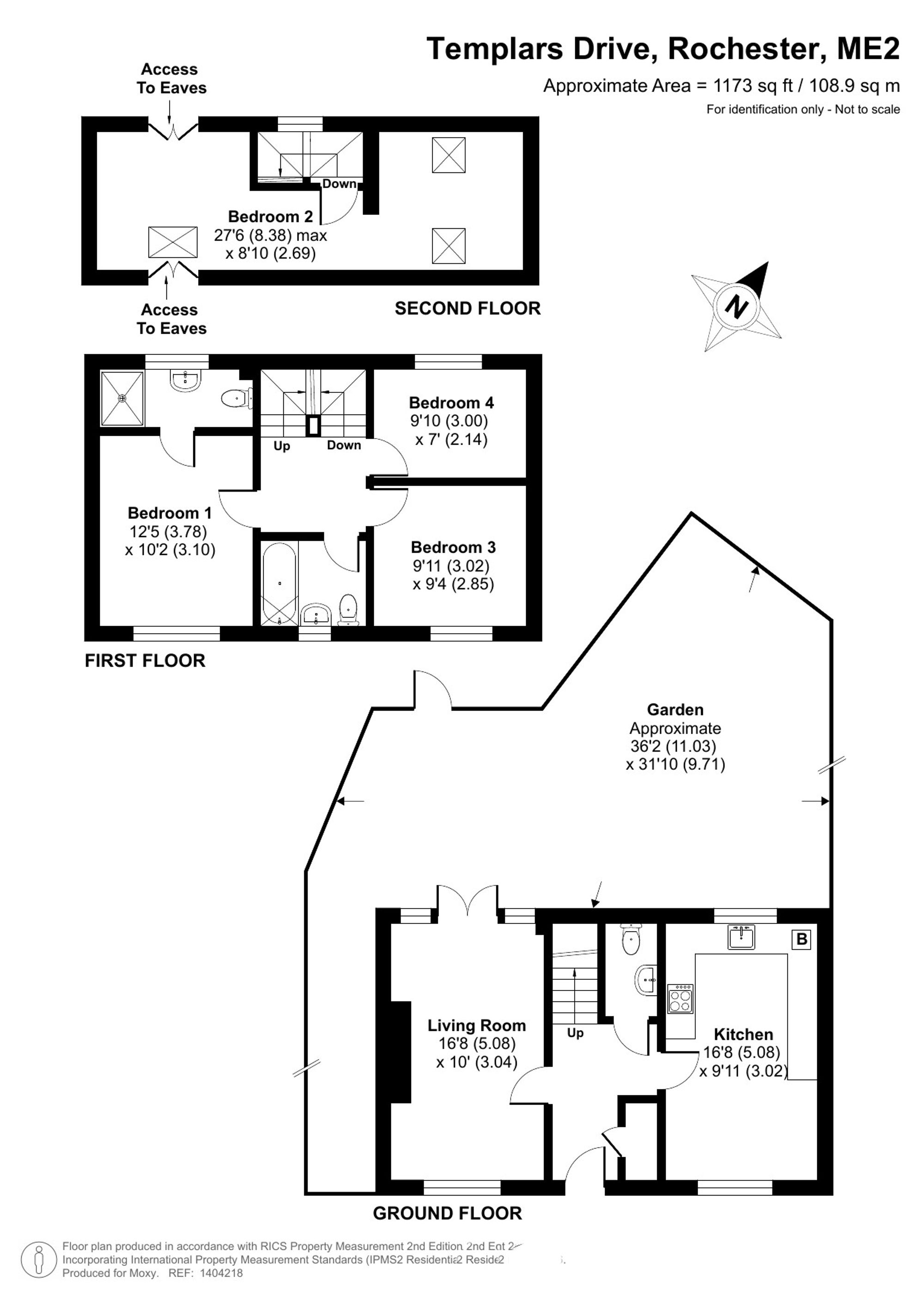
The home itself spans over 1,100 sq ft of well-designed living space, including a generous loft conversion that offers fantastic flexibility, whether as a spacious bedroom, playroom, or a stylish home office.
Step inside to a bright entrance hall with a central staircase setting the tone for the home. To the right, the modern dual-aspect kitchen/diner is both practical and inviting, featuring ample worktop space, integrated appliances, and plenty of room for cooking, dining, and entertaining with ease. To the left, the dual-aspect lounge provides a cosy yet airy retreat, complete with garden access, perfect for quiet evenings or hosting friends and family. A convenient guest cloakroom completes the ground floor.
Upstairs on the first floor you’ll find three well proportioned bedrooms. The main bedroom benefits from fitted storage and a private en suite shower room, while the remaining bedrooms are served by a contemporary family bathroom.
Heading up the top floor and you will find the generous 29ft x 8ft loft conversion which currently provides a super sized bedroom but could easily be luxurious home office or guest room.
The décor throughout the home is fresh, neutral, and finished to a high standard, allowing new owners to personalise with ease.
Additional practical features include generous built-in storage and two allocated parking spaces to the rear, perfectly positioned by the back gate for your convenience.
This beautiful home is close to highly regarded schools, local amenities, parks, and shops, with excellent motorway links making commuting straightforward.
A wonderful opportunity to enjoy modern living in a peaceful yet connected setting, with community at its heart.
EPC Grade B | Freehold With Managed Areas | Service Charge £40pm | Medway Council Tax Band E
Restrictive covenants apply. All property details are provided by the Vendor and should be verified by the buyer’s solicitor and surveyor. Tenure and material information is based on the Vendor’s input and must be confirmed independently. Fixtures, fittings, and appliances have not been tested, and no assurances are given. Buyers should not rely solely on this information when making a decision and should review the full title documents, local planning applications and seek independent legal advice for a full understanding of rights, covenants, and restrictions prior to exchange of contracts.
EPC Rating: B
Parking - Allocated Parking
Viewing & Disclaimer:
Please contact us on 01634 326036 if you wish to arrange a viewing appointment for this property, or require further information.
Energy Performance Certificate
Click here to view the Energy Efficiency Rating and Environmental Impact Rating for this property.
Moxy Property Consultants endeavour to maintain accurate depictions of properties in Virtual Tours, Floor Plans and descriptions, however, these are intended only as a guide and purchasers must satisfy themselves by personal inspection.
