Wainscott Road, Rochester, Kent. ME2
Summary:
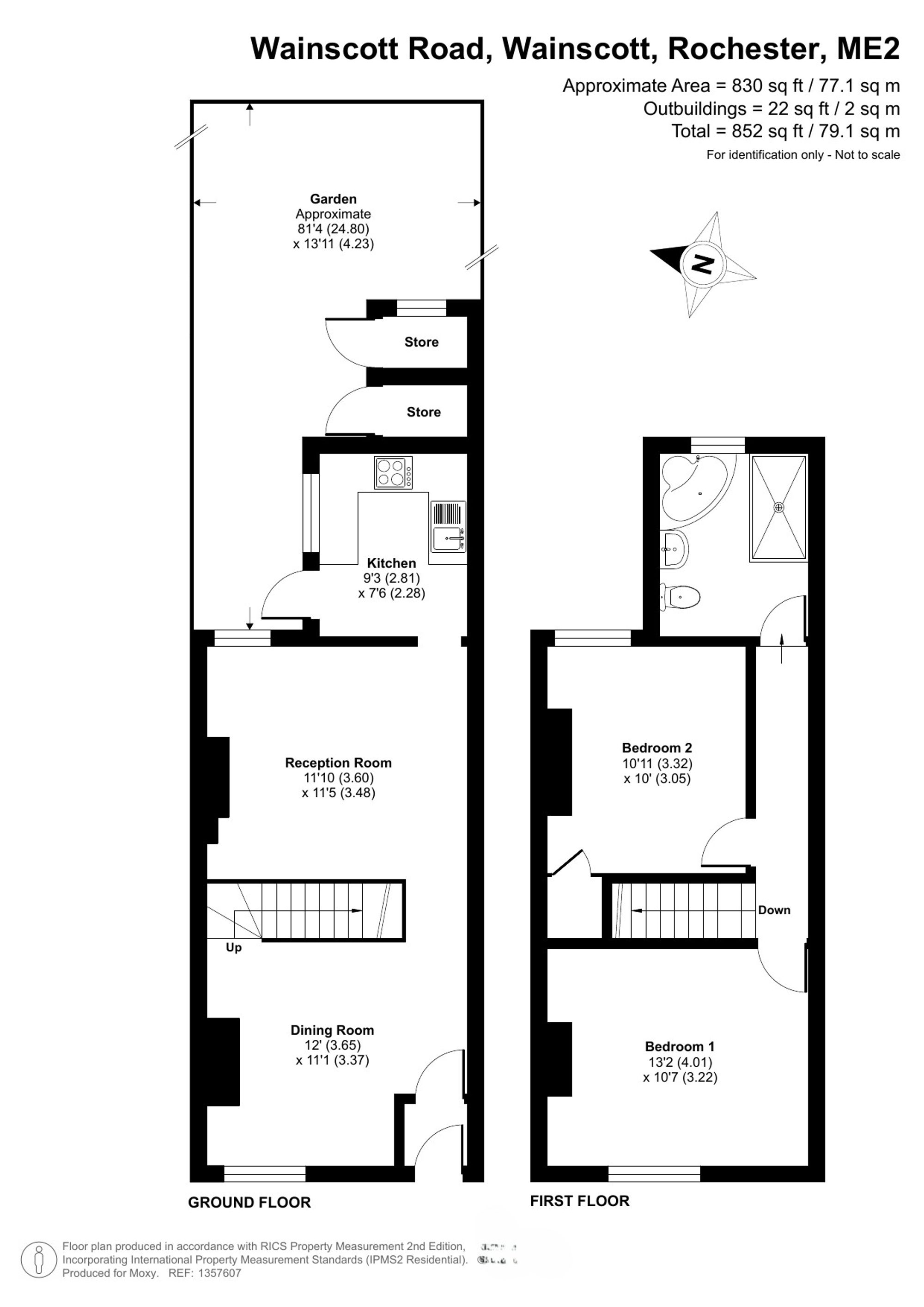
A spacious two double bedroom, mid-terraced home with open plan living, fitted kitchen, first floor separate bathroom, and 80ft east-facing garden, close to schools, Strood station, and the A2/M2.
Key Features:
- Mid-terrace home
- Two double bedrooms
- First floor separate bathroom with bath and shower
- Open plan living / dining room
- Fitted kitchen
- 80ft east facing rear garden
- Walking distance to primary and secondary schools
- Easy access to strood train station and M2/A2
Full Details:
This two double bedroom mid-terraced home offers a fantastic balance of space, comfort, and convenience.
The reconfigured layout provided two good sized double bedrooms and a first floor bathroom complete with both a bath and a separate shower, giving flexibility for busy mornings or relaxed evenings.
On the ground floor, the open plan living and dining room leads directly into a fitted kitchen with garden access.
The real highlight is the impressive 80ft east-facing garden, providing plenty of room for outdoor dining, gardening, or simply enjoying the sunshine. With its generous size, the garden offers the opportunity to design a space that suits your lifestyle, whether that’s a peaceful retreat or an area for children to play.
Conveniently situated within walking distance of local primary and secondary schools, the home is also just minutes from Strood train station and the A2/A2, making travel into London or surrounding areas straightforward. This is an excellent opportunity for families, professionals, or first-time buyers looking for a home that combines practical features with room to grow.
Medway Council Tax Band B | EPC Grade C
Property details are provided by the Vendor and should be verified by the buyer’s solicitor and surveyor. Tenure and material information is based on the Vendor’s input and must be confirmed independently. Fixtures, fittings, and appliances have not been tested, and no assurances are given. Buyers should not rely solely on this information when making a decision and should review the full title documents, local planning applications and seek independent legal advice for a full understanding of rights, covenants, and restrictions prior to exchange of contracts.
EPC Rating: C
Viewing & Disclaimer:
Please contact us on 01634 326036 if you wish to arrange a viewing appointment for this property, or require further information.
Energy Performance Certificate
Click here to view the Energy Efficiency Rating and Environmental Impact Rating for this property.
Moxy Property Consultants endeavour to maintain accurate depictions of properties in Virtual Tours, Floor Plans and descriptions, however, these are intended only as a guide and purchasers must satisfy themselves by personal inspection.
