Weston Road, Strood, Rochester, Kent. ME2
Summary:
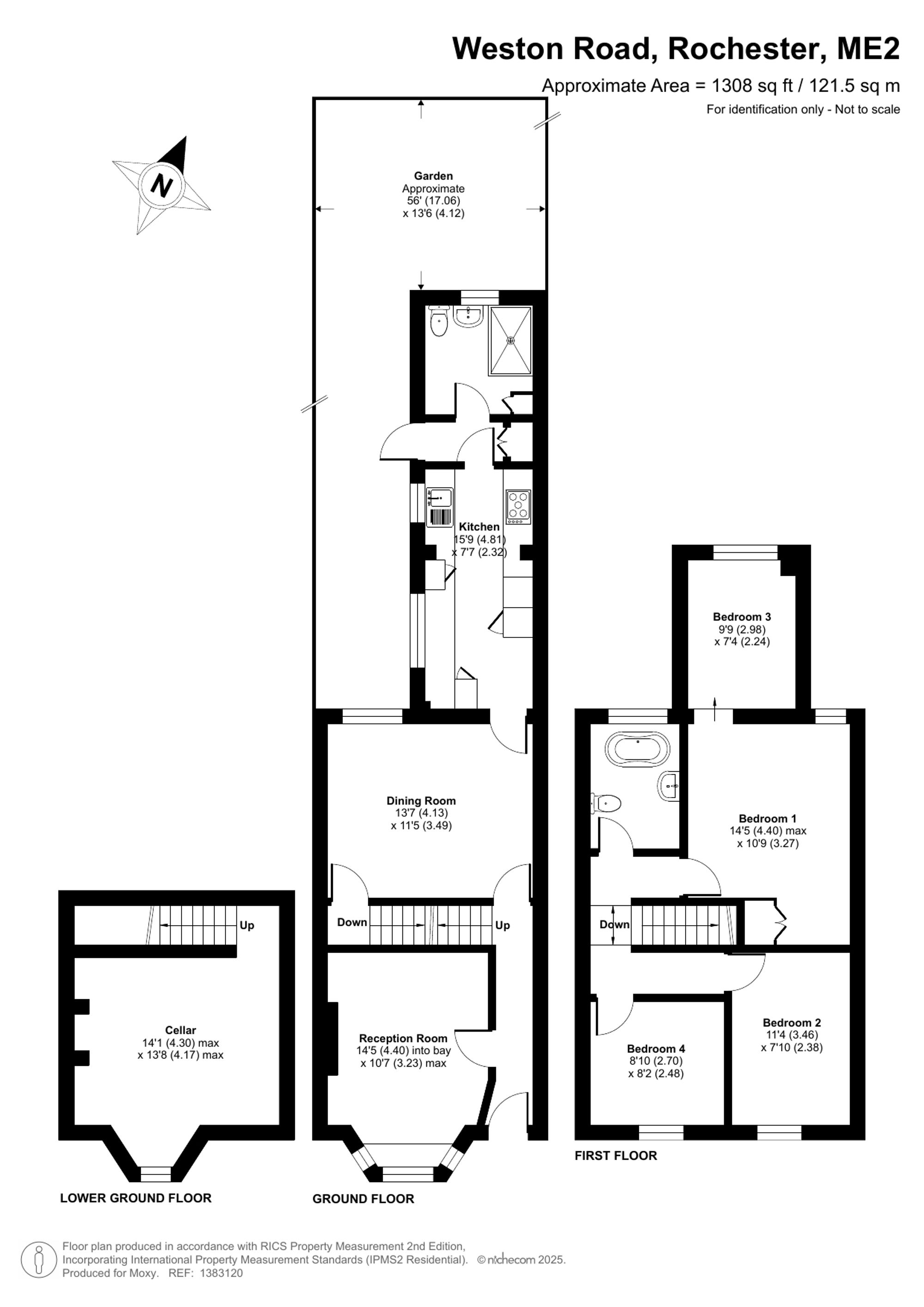
This charming, four bedroom, mid-terrace property presents an excellent opportunity for those seeking a spacious, characterful home with modern comforts. Extending to over 1,300 sq ft, the home offers an impressive amount of living accommodation arranged over multiple levels, making it perfectly suited to growing families or buyers wanting generous, versatile space.
Key Features:
- Mid-terrace residence
- Four bedrooms
- Low-maintenance rear garden
- Two reception rooms
- Two bathrooms
- Tanked-out versatile cellar
- Must view
- Fantastic access for transport links
- Ideally positioned for amenities and schooling
- Complete chain
Full Details:
This charming, four bedroom, mid-terrace property presents an excellent opportunity for those seeking a spacious, characterful home with modern comforts. Extending to over 1,300 sq ft, the home offers an impressive amount of living accommodation arranged over multiple levels, making it perfectly suited to growing families or buyers wanting generous, versatile space.
On entering the property, you are greeted by a welcoming cosy lounge, thoughtfully designed to create a warm and inviting atmosphere-ideal for unwinding after a long day. Beyond this, the home opens into a formal dining area, providing an elegant setting for family meals, dinner parties, or special occasions. The flow between these living spaces offers both comfort and practicality. Towards the rear of the property you can find the contemporary and tastefully upgraded kitchen with a plethora of storage and worktop space. The property benefits from a ground floor shower room that has been stylishly fitted, adding convenience for busy households and complementing the overall layout of the home.
A particular feature of the property not to be overlooked is the tanked cellar, offering a dry and secure area ideal for storage, hobbies, or even future conversion potential (subject to the appropriate consents).
The first floor is home to four well-proportioned bedrooms, each offering plenty of natural light and flexibility. The fourth bedroom is located of the principal bedroom so ideal for young children, a walk-in wardrobe or even home office. The internal accommodation is completed by a modern family bathroom, tastefully appointed to cater to everyday needs.
Externally, the property enjoys a low-maintenance rear garden, providing a pleasant outdoor retreat with space for seating or summer dining, all without the requirement for extensive upkeep. With both a patio area and artificial lawn the garden caters for all the family.
Beautifully balanced between traditional charm and contemporary convenience, this impressive home offers generous space, versatility, and a highly comfortable lifestyle in a sought-after residential setting.
Nestled in the heart of Strood’s popular ME2 postcode, Weston Road enjoys a well-established suburban setting with strong transport links and a wide selection of local amenities. Just a short walk away is Strood Railway Station, which offers step-free access and convenient rail services into London and across the South East. Road connections are equally impressive, with easy access to the A2/M2 corridors and the nearby Medway Tunnel, making commuting by car straightforward.
In terms of everyday convenience, the area around Weston Road is well-served: Residents benefit from numerous supermarkets, gp surgeries and dental practices within easy reach. Leisure-time amenities are also strong - with the neighbouring Medway Valley Park retail complex offering shops, a gym and cinema, and green open-spaces such as Rede Common providing walks and outdoor escape.
With this great combination of excellent connectivity, plentiful services and pleasant local character, Weston Road offers a well-balanced lifestyle in the Medway towns.
Call Moxy Property Consultants to arrange your private tour!
Freehold
Complete chain
Medway Council tax
Council tax band B
EPC Rating: D
Viewing & Disclaimer:
Please contact us on 01634 326036 if you wish to arrange a viewing appointment for this property, or require further information.
Energy Performance Certificate
Click here to view the Energy Efficiency Rating and Environmental Impact Rating for this property.
Moxy Property Consultants endeavour to maintain accurate depictions of properties in Virtual Tours, Floor Plans and descriptions, however, these are intended only as a guide and purchasers must satisfy themselves by personal inspection.
