Wilson Avenue, Rochester ME1
Summary:
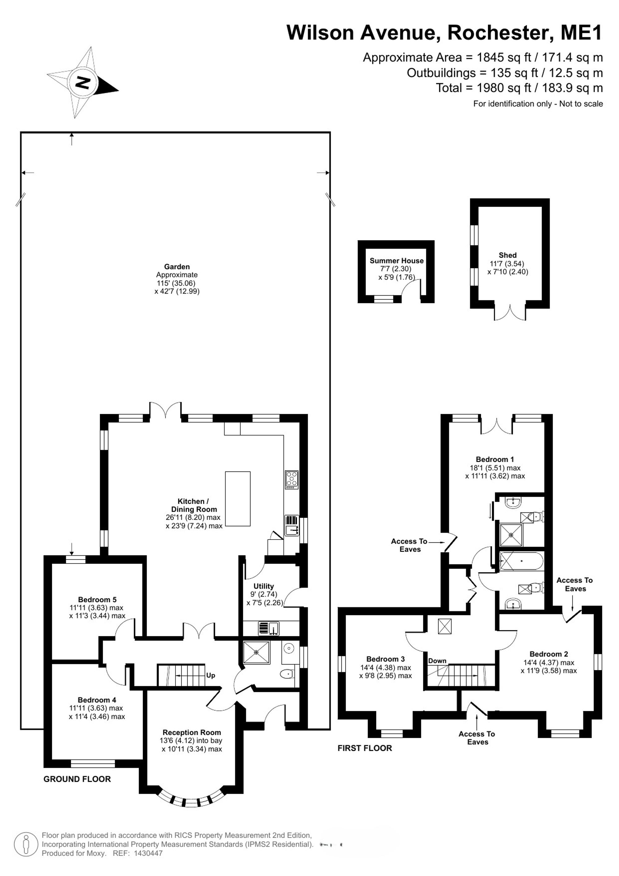
Beautifully renovated and extended 4/5 bedroom detached home with driveway and West facing garden. 1800 sq ft with versatile layout, stunning kitchen/living spaces, easy access to station and schools.
Key Features:
- Four / five bedroom detached home
- Recently renovated and extended
- Generous front driveway
- Over 1800 sq ft with versatile layout and flexible living spaces
- Spacious open plan kitchen/living area with garden access
- Three ground floor recptions or one reception and two ground floor bedrooms
- Ground floor wet room and first floor bathroom
- Principal bedroom with en-suite shower and juliete balcony overlooking garden
- Walking distance to schools including grammars
Full Details:
Sold with no forward chain, move in ready and with ‘brand new’ vibes this detached four/five bedroom chalet style property has been beautifully extended and renovated to provide a stunning home with over 1,800 sq of versatile living space and has been tastefully finished throughout.
Step inside to a bright, contemporary hallway leading to the three ground floor rooms and the generous kitchen/dining area.
If ground floor bedrooms are a must then we think this house is perfect as two out of the three receptions can easily accommodate as bedrooms with one also providing garden access and the ground floor wet room helping to create an easy space to live without compromise or difficulty.
The extension at the rear of the property is a real head turner and provides an enviable and sociable cooking, eating and living space. With direct access to the West facing rear garden, this space is ideal for entertaining with room for everyone to relax.
The kitchen area has good amount of units and workspaces with a central island and fitted appliances including a double oven, hob and dishwasher. Set back from the kitchen is a super handy utility room with side access.
Heading up to the first floor you will notice the staircase has been beautifully finished with a glass balustrade and there are three further bedrooms. The luxurious principal suite boasts an en-suite shower and West facing Juliet balcony overlooking the rear garden, while two further bedrooms are served by a contemporary main bathroom.
The rear garden is perfect for buyers looking for a sizeable out door space. West facing and over 100ft with side access it has a generous patio area leading to a large lawn with mature trees, shrubs. The shed and play house will remain.
Buyers looking for an energy efficient home will appreciate the C grade EPC and a connection ready for an EV charger to be fitted.
Wilson Avenue is a popular location in Rochester. Within close walking distance to several amenities such as chemists, doctors surgery, pubs and convenience shops as well as a petrol garage. There are also plenty of options for those who love the outdoors with a choice of parks and green spaces to enjoy. For larger shops, there is a a retail park just a short bus ride or drive away. There are a great variety of schools withing walking distance and easy reach including a choice of Grammar Schools.
Medway Council Tax Band E (maybe subject to change) | EPC Grade C | Freehold
The property has been extended/altered with planning permission approved Ref. No: MC/24/1717. The building control completion certificate is pending, however the vendor has advised this is expected imminently. A Conveyance dated 12 May 1938 made contains restrictive covenants. All property details are provided by the Vendor and should be verified by the buyer’s solicitor and surveyor. Tenure and material information is based on the Vendor’s input and must be confirmed independently. Fixtures, fittings, and appliances have not been tested, and no assurances are given. Buyers should not rely solely on this information when making a decision and should review the full title documents, local planning applications and seek independent legal advice for a full understanding of rights, covenants, and restrictions prior to exchange of contracts.
EPC Rating: C
Parking - Driveway
Viewing & Disclaimer:
Please contact us on 01634 326036 if you wish to arrange a viewing appointment for this property, or require further information.
Energy Performance Certificate
Click here to view the Energy Efficiency Rating and Environmental Impact Rating for this property.
Moxy Property Consultants endeavour to maintain accurate depictions of properties in Virtual Tours, Floor Plans and descriptions, however, these are intended only as a guide and purchasers must satisfy themselves by personal inspection.
