Windmill Street, Strood, Rochester, Kent. ME2
Summary:
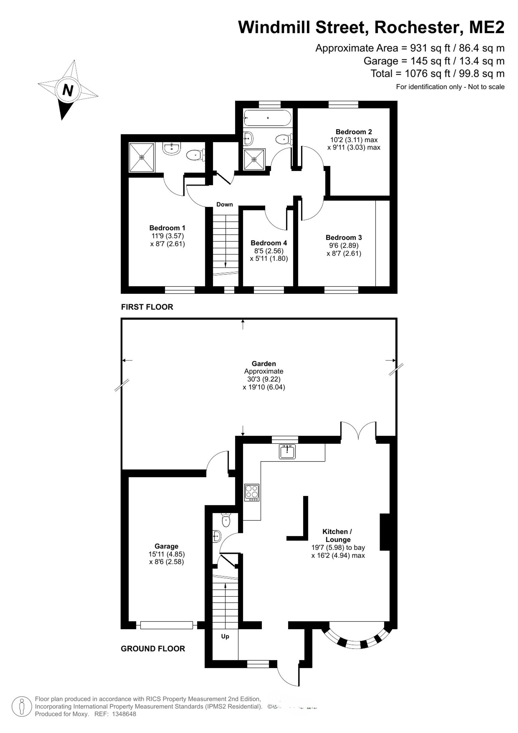
A four bedroom, two bath, semi-detached home with driveway for two cars, garage, and a sunny south-facing garden. Ensuite master, upgraded throughout, close to Strood Station, schools, and shops.
Key Features:
- Four bedroom, semi-detached home
- Front driveway for two cars
- South facing rear garden
- Boiler installed 2022 recently serviced and with 6 years warranty remaining
- Interior upgraded throughout including new flooring in living area
- Ground floor cloakroom
- First floor bathroom
- Principal bedroom with ensuite shower room
- Walking distance to strood station and high street
- Nearby to several schools and excellent main road links nearby
Full Details:
Stop your property search! Book your viewing today on this four bedroom, semi-detached home in a prime residential area.
With a sleek modern design and generous layout, this property offers style and practicality in equal measure.
A private driveway for two cars and garage adds real convenience and further potential, while the south-facing garden is the ultimate space for relaxing or entertaining outdoors.
Inside, every detail has been considered. Fresh flooring elevates the living space, while a new boiler installed in 2022 (with a six-year warranty) provides peace of mind. The ground floor includes a handy cloakroom, and upstairs you’ll find a stylish bathroom plus an ensuite in the principal bedroom for a touch of luxury.
Perfectly positioned within walking distance of Strood Station, the High Street, schools, and excellent road links, this home is ideal for families and commuters alike.
Enjoy modern living, outdoor space, and an unbeatable location - all in one impressive property.
EPC Grade D l Medway Council Tax Band D
Property details are provided by the Vendor and should be verified by the buyer’s solicitor and surveyor. Tenure and material information is based on the Vendor’s input and must be confirmed independently. Fixtures, fittings, and appliances have not been tested, and no assurances are given. Buyers should not rely solely on this information when making a decision and should review the full title documents, local planning applications and seek independent legal advice for a full understanding of rights, covenants, and restrictions prior to exchange of contracts.
EPC Rating: D
Parking - Garage
Parking - Driveway
Viewing & Disclaimer:
Please contact us on 01634 326036 if you wish to arrange a viewing appointment for this property, or require further information.
Energy Performance Certificate
Click here to view the Energy Efficiency Rating and Environmental Impact Rating for this property.
Moxy Property Consultants endeavour to maintain accurate depictions of properties in Virtual Tours, Floor Plans and descriptions, however, these are intended only as a guide and purchasers must satisfy themselves by personal inspection.
