Woodview Rise, Rochester, Kent ME2
Summary:
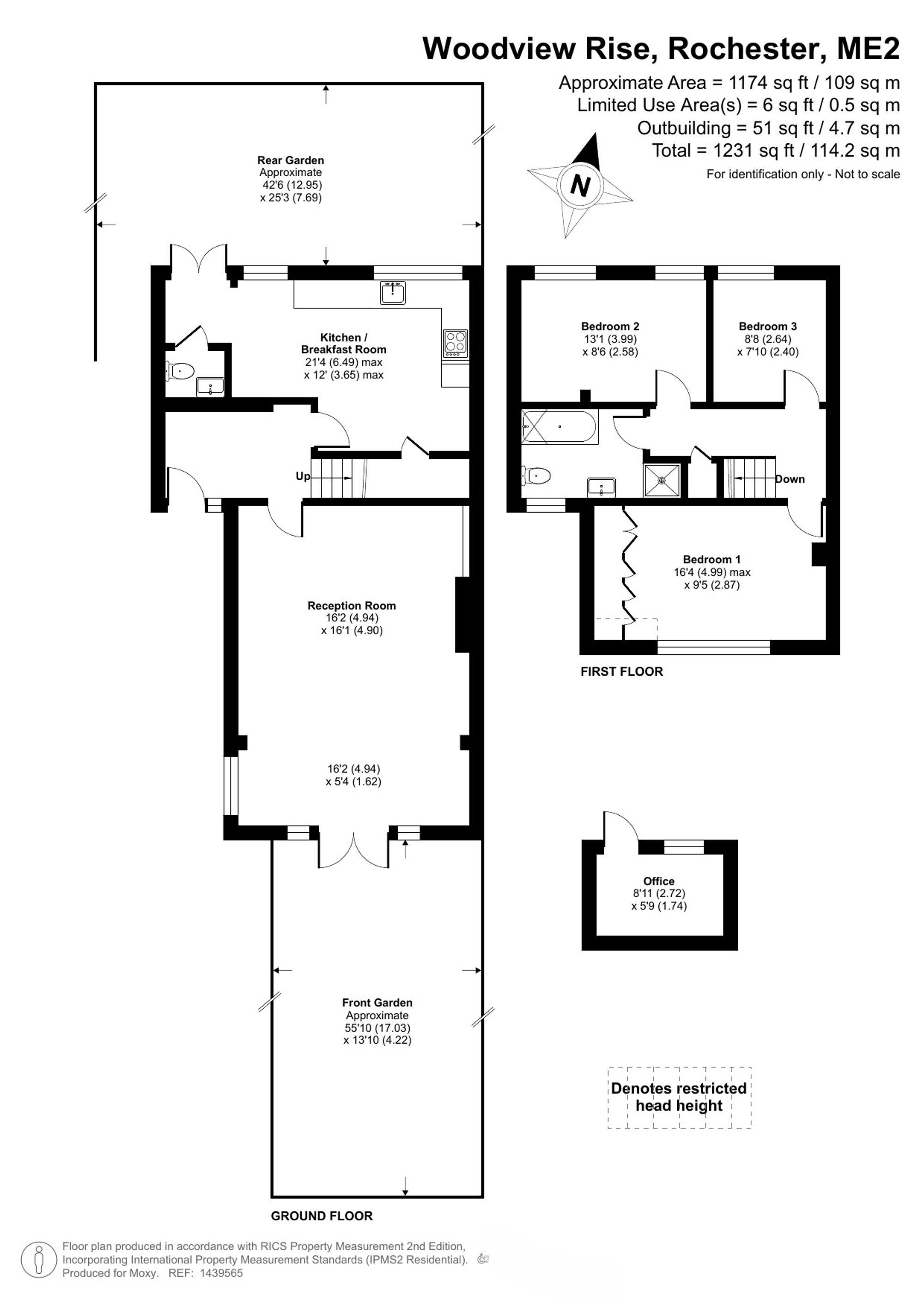
Three bedroom. Semi-detached home with over 1,100 sq ft. Upgraded throughout, kitchen/diner, bright living room, underfloor heating, large gardens, driveway parking and garden room office/gym.
Key Features:
- Three double bedroom semi-detached house
- Extended and over 1,100 sq ft of living space
- Substantial private front driveway
- 40ft + rear garden with side access and 50ft + south facing front garden
- Generous living room with double doors to front garden
- Upgraded and fitted kitchen/diner
- Ground floor guest WC
- First floor bathroom with bath and separate shower
- Under floor heating in kitchen and entrance hall
- Close to schools, main road links and green spaces
Full Details:
This attractive three-bedroom, semi-detached home is positioned in a sought after Cul-de-sac just off Brompton Farm Road and close to schools, green spaces, main road links and within easy access to Strood Train Station with direct links to London in just over 30 minutes.
With a pre-existing two storey side extension and over 1,100 sq ft of well-maintained living space we thinkg this property would suit buyers looking for space without compromise and the three generously sized double bedrooms, provides plenty of room for both residents and guests.
The welcoming entrance hall, complete with underfloor heating, leads into a stylishly upgraded kitchen and dining area and also with under floor heating. Here, you’ll find modern appliances and ample worktop space, ideal for everyday cooking as well as entertaining. A convenient guest WC and direct access to the garden makes this the hub of the home.
The spacious front living room is filled with natural light and benefits from double doors opening onto the 55ft front garden, creating a bright and airy atmosphere with a seamless indoor-outdoor feel.
Upstairs, the property offers three well proportioned double bedrooms and a contemporary family bathroom, fitted with both a bathtub and a separate shower to suit all needs.
Externally, the home continues to impress. A large private tandem driveway at the front provides off-street parking for multiple vehicles.
To the rear, the generous garden offers excellent space for relaxing, entertaining, or family activities, along with side access for added convenience and a garden room fitted with electrics that is currently being used as a home office/gym. With plenty of potential for landscaping or personal touches, it presents a fantastic outdoor extension of the home.
Combining space, comfort, and practicality, this move-in ready property is an excellent opportunity for buyers seeking a well-balanced home without compromising on space.
Early viewing is highly recommended, contact moxy to arrange yours.
Freehold | EPC Grade D | Medway Council Tax Band D
The property is subject to restrictive covenants contained within a Transfer dated 26 March 1965 and benefits from and is subject to rights set out in the Transfer, which may include rights of access, services, or other third-party rights affecting the land. The 1965 Transfer includes provisions relating to light and air, which may restrict development or alterations that could impact neighbouring properties. All property details are provided by the Vendor and should be verified by the buyer’s solicitor and surveyor. Tenure and material information is based on the Vendor’s input and must be confirmed independently. Fixtures, fittings, and appliances have not been tested, and no assurances are given. Buyers should not rely solely on this information when making a decision and should review the full title documents, local planning applications and seek independent legal advice for a full understanding of rights, covenants, and restrictions prior to exchange of contracts.
EPC Rating: D
Parking - Driveway
Tandem drive
Viewing & Disclaimer:
Please contact us on 01634 326036 if you wish to arrange a viewing appointment for this property, or require further information.
Energy Performance Certificate
Click here to view the Energy Efficiency Rating and Environmental Impact Rating for this property.
Moxy Property Consultants endeavour to maintain accurate depictions of properties in Virtual Tours, Floor Plans and descriptions, however, these are intended only as a guide and purchasers must satisfy themselves by personal inspection.
