Buckthorne Road, Minster On Sea, Sheerness, Kent. ME12
Summary:
Presenting this immaculate, three-bedroom residence! A truly remarkable move in ready home that should be top of your list to view! A must-see for those seeking a tranquil abode with excellent access to transport links and amenities.
Key Features:
- Mid-terrace residence
- Three bedrooms
- Tranquil low-maintenance rear garden
- Principle bedroom with en-suite
- Parking and en-bloc garage
- Immaculate condition through-out
- Fantastic access to transport links and amenities
- Ideal ftb home or investment property
- Move in ready
- Must view
Full Details:
Presenting this immaculate, three-bedroom residence! A truly remarkable move in ready home that should be top of your list to view! A must-see for those seeking a tranquil abode with excellent access to transport links and amenities.
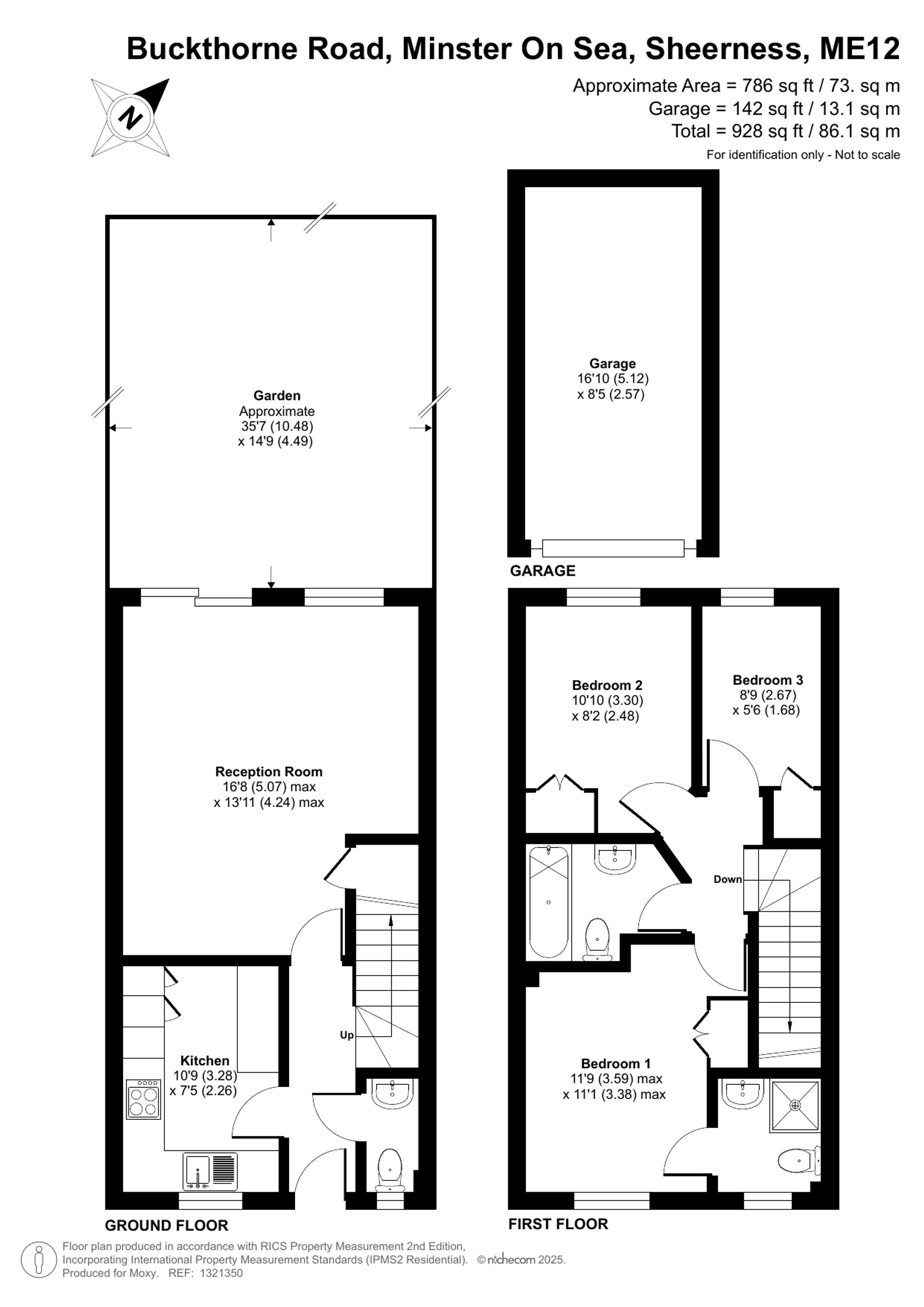
Upon entering, residents and guests are greeted by a meticulously cared-for interior that exudes a sense of comfort and style. The seamless flow from room to room enhances the practicality of the layout, offering a space that is both aesthetically pleasing and highly functional. The ground floor is comprised of a spacious living area creating the perfect space to relax and unwind with the family. With a designated dining area the property is ideal for those that like to host and entertain. A well-appointed kitchen located at the front of the property creates the perfect space for those looking to unleash their culinary creations. The kitchen is equipped with modern appliances and ample storage space, making meal preparation a breeze. If that wasn’t enough the property benefits from a ground floor W/C.
Ascending the stairs, the three bedrooms await, each offering a peaceful retreat at the end of the day. The principal bedroom stands out with its en-suite bathroom, providing a private sanctuary for relaxation and rejuvenation. The remaining two bedrooms are equally inviting and versatile, catering to a variety of living arrangements. Both bedroom two and three are serviced by the stylish family bathroom with three-piece suite.
The property's low-maintenance rear garden provides a tranquil outdoor space ideal for unwinding or al fresco dining. With minimal upkeep required, residents can enjoy the benefits of a garden without the hassle of extensive maintenance.
For added convenience, the property features parking facilities and an en-bloc garage, ensuring that residents have ample space for their vehicles and additional storage needs. The garage offers a secure area for storing belongings and provides peace of mind for homeowners.
Situated in a sought-after location, this residence offers fantastic access to transport links and amenities, making daily errands and commutes a breeze. Whether you're looking for shopping, dining, or leisure activities, everything you need is within reach of a short drive.
Whether you're a first-time buyer looking for your dream home or an investor seeking a lucrative opportunity, this property ticks all the boxes. Its immaculate condition, desirable location, and versatile living spaces make it a standout choice.
Call Moxy Property Consultants to arrange your private tour!
Freehold
swale borough
council tax band C
EPC Rating: C
Viewing & Disclaimer:
Please contact us on 01634 326036 if you wish to arrange a viewing appointment for this property, or require further information.
Energy Performance Certificate
Click here to view the Energy Efficiency Rating and Environmental Impact Rating for this property.
Moxy Property Consultants endeavour to maintain accurate depictions of properties in Virtual Tours, Floor Plans and descriptions, however, these are intended only as a guide and purchasers must satisfy themselves by personal inspection.
 
                        