Poulter Court, Castle Hill, Ebbsfleet Valley, Swanscombe, Kent. DA10
Summary:
Nestled within the tranquil Castle Hill development, this exquisite 3-bedroom, semi-detached residence presents a prime opportunity for those seeking a peaceful yet well-connected lifestyle. This property effortlessly combines serene surroundings with convenient access to a plethora of local amenities, schools, and transport links, offering the ideal balance between retreat and practicality.
Key Features:
- Semi-detached residence
- Three bedrooms
- Principle bedroom with en-suite
- Sizeable rear garden
- Private drive with car port
- Complete chain
- Moments from ebbsfleet interantional station
- Fantastic access to amenities and transport links
- Move in ready
- Must view
Full Details:
Nestled within the tranquil Castle Hill development, this exquisite 3-bedroom, semi-detached residence presents a prime opportunity for those seeking a peaceful yet well-connected lifestyle. This property effortlessly combines serene surroundings with convenient access to a plethora of local amenities, schools, and transport links, offering the ideal balance between retreat and practicality.
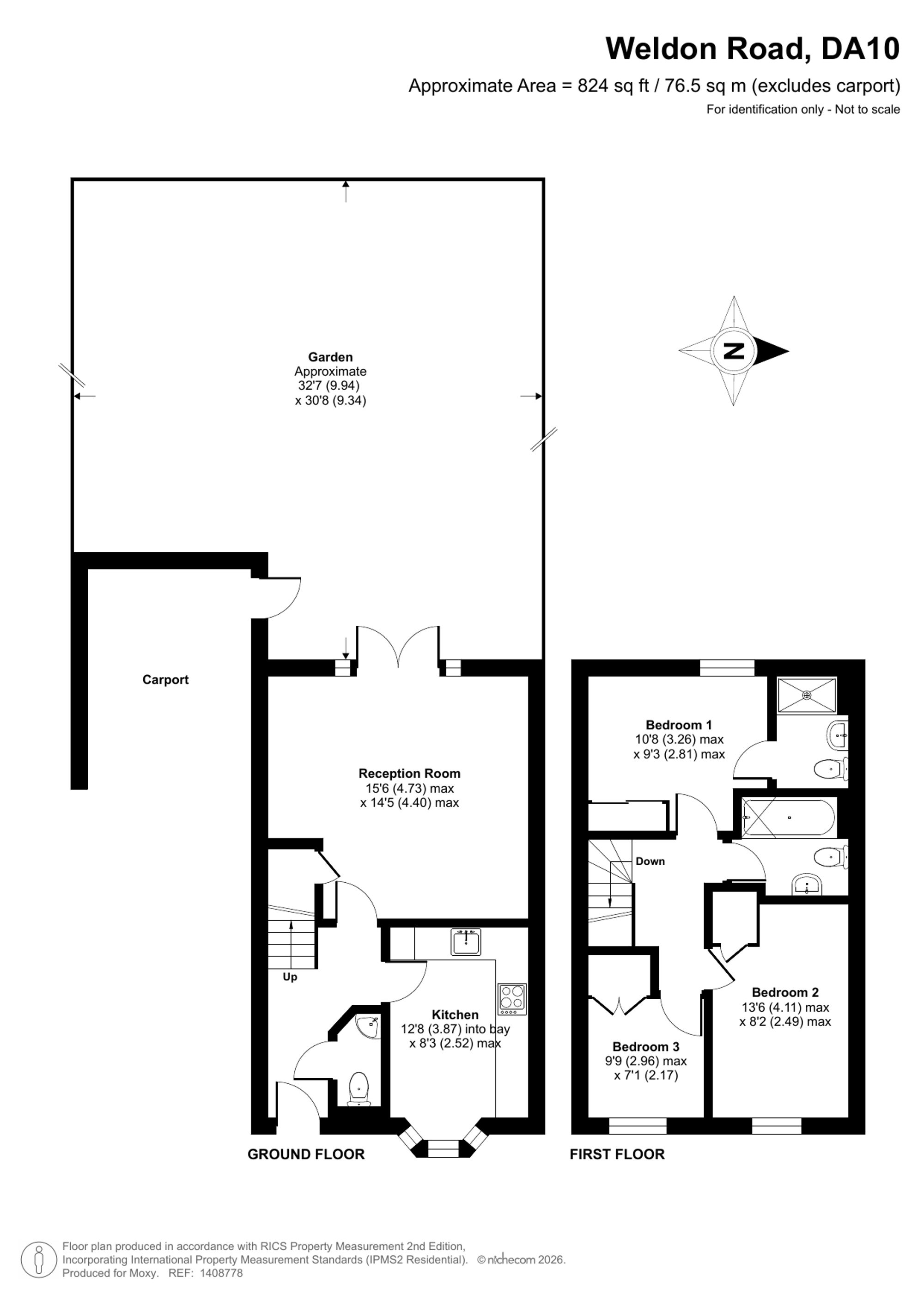
Stepping into the property, you are greeted by a spacious and inviting interior that exudes warmth and comfort. The focal point of the home is the generously proportioned eat-in kitchen/diner located at the rear of the property, providing a central hub for gatherings and culinary delights. The seamless flow between the kitchen and dining area creates a harmonious space for both every-day living and entertaining guests. The spacious open-plan lounge/diner makes an ideal space to relax and unwind with the family or for hosting gatherings. If that wasn't enough the ground floor benefits from a W/C.
Ascending to the first floor the property boasts three double bedrooms, each offering ample space and natural light to create a soothing sanctuary for relaxation. The principle bedroom features the added luxury of an en-suite bathroom whilst the two further bedrooms are serviced by the stylish family bathroom with three-piece suite.
Embracing the best of indoor-outdoor living, the private rear garden offers a tranquil retreat where you can unwind, entertain, or simply enjoy the fresh air. The outdoor space enhances the overall appeal of the property and provides a seamless extension of the interior living areas.
Further enhancing the appeal of this residence is the private drive and car-port, ensuring convenience and security for your vehicles and belongings.
With a complete chain, this property is primed for a smooth and stress-free transition into your new home.
From the inviting interiors to the tranquil setting, every element of this property has been thoughtfully designed to offer a harmonious living experience. Whether you are enjoying a peaceful evening in the comfort of your new abode or exploring the nearby amenities and attractions, this property provides the perfect backdrop for your desired lifestyle.
Ideally positioned in a convenient location for commuters, Castle Hill development provides fantastic access to major transportation links, including Swanscombe train station, A2 and M25 motorway. Whether you work in London or other major cities, your daily commute will be a breeze given the surrounding area is well connected having Ebbsfleet International nearby offering highspeed trains into areas of London such as Stratford in under 10 minutes.
Offering the perfect balance between tranquillity, scenic views and convenience, Castle Hill development not only offers everyday essentials at the on-site Co-op, but with Bluewater Shopping Centre nearby for extensive retail, dining, and leisure experiences. With a fantastic sense of community the on-site lake, walks, play areas and surrounding views are a few of the many reasons people are so keen to move here!
Call Moxy Property Consultants to arrange your private tour!
Freehold
dartford council tax
council tax band D
Service charge £600.00 per annum
EPC Rating: C
Viewing & Disclaimer:
Please contact us on 01634 326036 if you wish to arrange a viewing appointment for this property, or require further information.
Energy Performance Certificate
Click here to view the Energy Efficiency Rating and Environmental Impact Rating for this property.
Moxy Property Consultants endeavour to maintain accurate depictions of properties in Virtual Tours, Floor Plans and descriptions, however, these are intended only as a guide and purchasers must satisfy themselves by personal inspection.
